-
Eat Beef....Is this true?
Hello Master Cecil, I was once told by a roadside fortune teller that if one want to strike 4D/ToTo meaning better wealth luck, one should not eat beef....is this true ? I just can't see the logic of this....so wanted to seek your opinion. Thanks
-
Animal and Element
Dear Master Cecil, I was told tat Cow represent the element Earth and Rat represent the element Water, is this true ? Where could I get all the representation of all animals chart ?Whatabout Rabbit and Dog ? If a person need more "earth" to enhance his luck, does wearing a "Cow Pendant" helps? Thanks
-
STRONG FIRE person
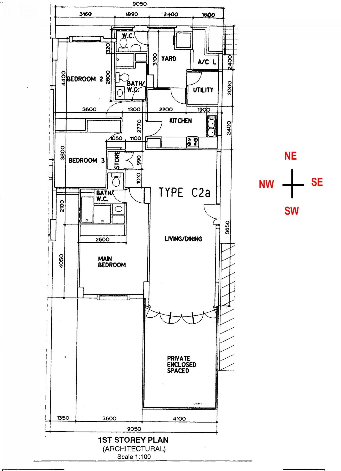
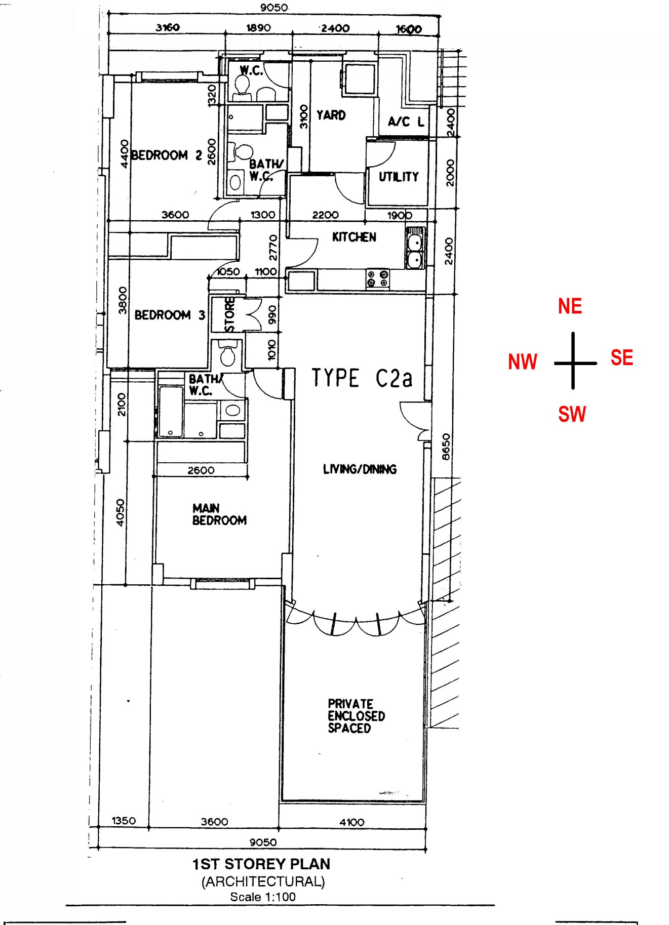
Hi Master Cecil, Attached is the floorplan of my second-hand condo brought from open market. I have the following questions and hope you could kindly advise. (1) Is this GROUND FLOOR house consider SE facing (Front Door) or SW facing (Patio) ? (2) Is a STRONG FIRE person suitable for this house? Thanks
-
Advise Needed.
Hi Master Cecil, Attached is the floorplan of my second-hand condo brought from open market. I have the following questions and hope you could kindly advise. (1) Is this GROUND FLOOR house consider SE facing (Front Door) or SW facing (Patio) ? (2) Due to strong wind (practically every minute) blowing from NW to SE, the swimming pool water just infront of the patio is very cold all the time.....is there any fengshui implication ? Not so much wind flowing from SW direction due to a nearby building infront but strong wind most of the timefrom the Kitchen/Yard. (3) Is a STRONG FIRE person suitable for this house? Thanks
-
Door facing Irritation or Spook direction
Hello Master Cecil, What can I do if my door is facing Irritation or Spook direction according to the free report ? Other than moving out of the house, what else can I do to correct the situation ? Thanks
-
Questions on Element
Hi Master Cecil, When a person is a strong FIRE, his most favorable element should be EARTH according to the report. What colors represent EARTH ? Is Brown consider EARTH color or WOOD color ? Thanks
-
Advise Needed on locating Center and Facing
Hello Cecil, I'm using my wife account as I 'm having problem with the posting with my account. I will like to seek your kind advise on the locating the center location of the attached floor plan. This is a ground floor unit. DoI need to include the PES (Private Enclosed Space) when locating the center ? And do I take the main door which is NE direction or the PCS which is the SW direction as the facing of this condo unit ? I remember you mentioned that facing need not to be a position of the main door. Great thanks ! David
myfs_106865
Members
-
Joined
-
Last visited

