Jump to content
View in the app

A better way to browse. Learn more.

FengShui.Geomancy.Net

A full-screen app on your home screen with push notifications, badges and more.

To install this app on iOS and iPadOS
  1. Tap the Share icon in Safari
  2. Scroll the menu and tap Add to Home Screen.
  3. Tap Add in the top-right corner.
To install this app on Android
  1. Tap the 3-dot menu (⋮) in the top-right corner of the browser.
  2. Tap Add to Home screen or Install app.
  3. Confirm by tapping Install.
About Feng Shui at Geomancy.Net
Sponsored Link
 

myfs_139563

Members
  • Joined

  • Last visited

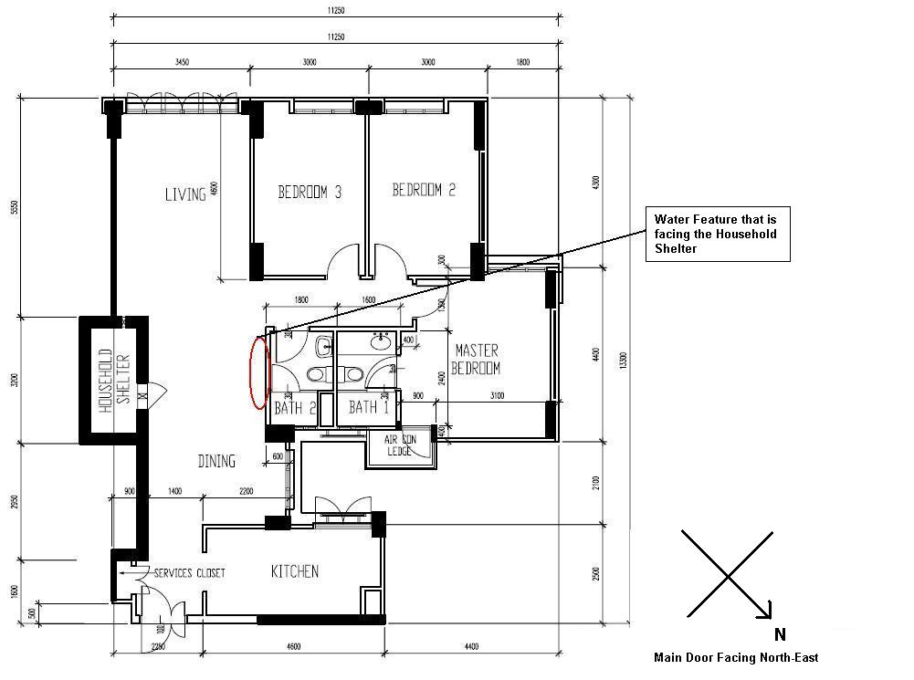
  1. Hi Master Cecil, Could i find out from you whether is it ok to place a water feature over the location stated in the pic attached? My concern is that the wall behind the water feature is facinga toilet. Could you kindly advise me on the partition for the main door which is facing the living room windows? Read up alot and understand that its not so good to have the main door facing directly to the living room window. Thanks alotfor the advise.. Warmest Regards Melvin
Sponsored Link
 

Configure browser push notifications

Chrome (Android)
  1. Tap the lock icon next to the address bar.
  2. Tap Permissions → Notifications.
  3. Adjust your preference.
Chrome (Desktop)
  1. Click the padlock icon in the address bar.
  2. Select Site settings.
  3. Find Notifications and adjust your preference.