Skip to content
View in the app

A better way to browse. Learn more.

FengShui.Geomancy.Net

A full-screen app on your home screen with push notifications, badges and more.

To install this app on iOS and iPadOS
  1. Tap the Share icon in Safari
  2. Scroll the menu and tap Add to Home Screen.
  3. Tap Add in the top-right corner.
To install this app on Android
  1. Tap the 3-dot menu (⋮) in the top-right corner of the browser.
  2. Tap Add to Home screen or Install app.
  3. Confirm by tapping Install.
About Feng Shui at Geomancy.Net
Sponsored Link
 

myfs_145347

Members
  • Joined

  • Last visited

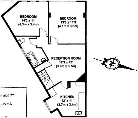
  1. Thank you for getting back to me on this. This is a top view of the flat, our other concern is that it is above a successful celeb cosmetic dental clinic. The main door/enterance for the whole building is exactly in the south where you see the point is level from the left hand bedroom. Also there is a railway line and train station that runs along the main side of the bedrooms but a good 100 meters away and it goes parrell to south west wall. We would plan to have our bedroom in the smaller room. Our entrance to the flat is directly where the stairs are in the pictire via a 3 sided fenced pavid yard. the stairs goes up into the flat Would you recommend moving there ? Thank you for your time on this as it is a real concern of ours.
  2. Hi there, Thanks for taking the time to view my post I am new to this. We are looking at renting a property but have read that trianglur shapes are not good. The only thing is this is the perfect flat in the perfect area. Would you say the shape is a triangle or trapezoid or diamond. As you can see from the picture alot of the rooms also have 5 sides. any help on this would be great Many Thanks Rob
Sponsored Link
 
Background Picker

Account

Navigation

Search

Search

Configure browser push notifications

Chrome (Android)
  1. Tap the lock icon next to the address bar.
  2. Tap Permissions → Notifications.
  3. Adjust your preference.
Chrome (Desktop)
  1. Click the padlock icon in the address bar.
  2. Select Site settings.
  3. Find Notifications and adjust your preference.