-
Understanding the facing direction of an apartment or high-rise unit: is it based on the front door?
Dear master, i have been following your channel from long time and thank you for providing such priceless knowledge. my building was built in period 8 and i moved in it in month of december... currently my house main door is facing NE 31 degree (we created new main door 2 months back)...as we joined two flats and created a common main door as you can see in the plan. but before that there was no main door and two separate entry. I have experienced myself after doing main door there has being problems in our financial condition for last 2 months and before that it was kind of smooth from the day we entered. Is the main door reason for that...as you can see there is unwanted airflow (2) which is kind of open space as show in image.... is there any remedy for this?
-
Feng Shui for bedroom
Dear master I am attaching plan of apartment with its north facing direction. My dad kua number - 1 My mom kua number - 2 Bed is located facing south east in bedroom which actually suits for my dad in terms of sleep and wealth wise but this arrangement doesn't suits my mom and she keeps on complaining about unsounded sleep. Can you please tell direction to place bed which can be suited for both of them or can we use feng Shui cure. And also south east is in bedroom what cure can i use to attract wealth Thanks
-
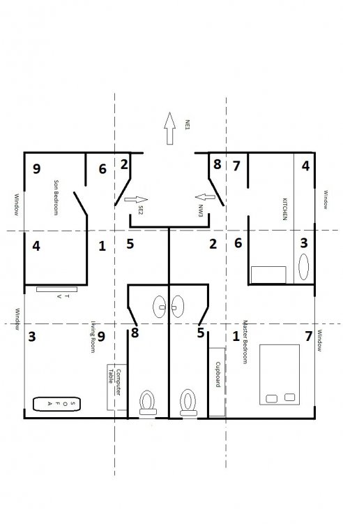
Feng Shui for my Home
Dear sir, Currently i am having two apartments facing each other but me trying to merge them by installing a common door facing NE1 direction. can you please suggest me will this direction provide me better result as currently with separate doors i am facing legal issues and financial troubles. I have attached image of floor map of my two apartments with flying star chart. My dad DOB 11/12/1954 My DOB 09/04/1992 My Mother DOB 31/10/1960 House was build in period 8
-
Feng shui gone wrong in my factory according
Dear sir, I have a factory which was feng shui from a feng shui consultant many years back. There has been no as such improvement in work and year by year debts are growing rapidly. Currently I am taking over work from my father. One thing I noticed is during rainy season our business starts flourishing and suddenly get halted when rains stop. I have noticed this many times and thus out of my curiosity I am writing this to you. is there any specific place where we can apply water element or any other feature to replicate rain. rain water pours from our main gates in north , north west sector I have attached my factory map and chart done by feng shui consultant. factory faces N2 at 6 degree period 5 Sir please provide suggestion your valuable tips would be very helpful.
Kunal
Members
-
Joined
-
Last visited

