Jump to content
View in the app

A better way to browse. Learn more.

FengShui.Geomancy.Net

A full-screen app on your home screen with push notifications, badges and more.

To install this app on iOS and iPadOS
  1. Tap the Share icon in Safari
  2. Scroll the menu and tap Add to Home Screen.
  3. Tap Add in the top-right corner.
To install this app on Android
  1. Tap the 3-dot menu (⋮) in the top-right corner of the browser.
  2. Tap Add to Home screen or Install app.
  3. Confirm by tapping Install.
About Feng Shui at Geomancy.Net
Sponsored Link
 

Featured Replies

Posted

Hi


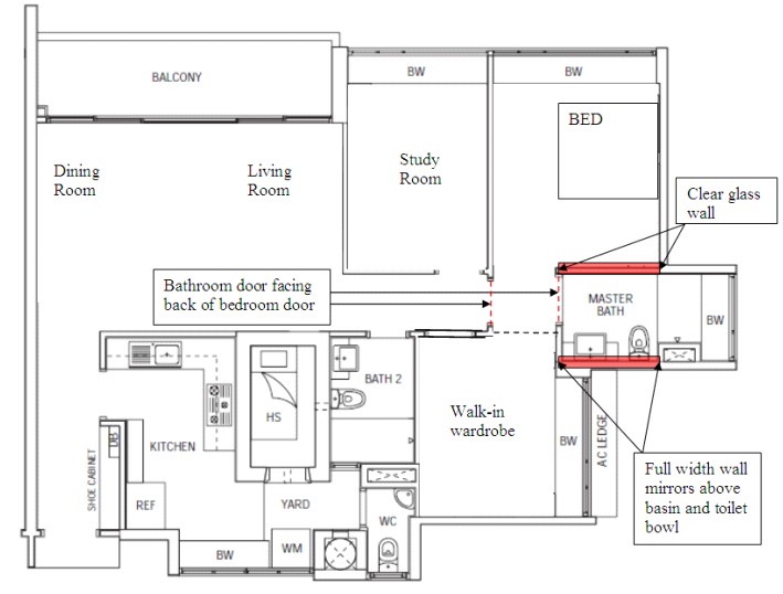
1) Is it ok tobuild a glass wall instead of the concretewallsuch that the master bed room / bed will have the view of the toilet.


2) With the glass wall, the toilet bowl will be facing the bed. Is that bad for feng Shui? If so, is there any cure? or can i place a bathtub at the glass wall so the toilet bowl will be block.


3) There is a huge full width mirror . It is at the height of the basin. I heard that having a mirror at the side of the bed is bad for feng Shui. Is this layout bad for fengshui? Any cure?


4) The back of the masterbed room door is facing the toilet door is that bad for feng shui?


Thanks a million and looking forward to hearing from you.


Posted
  • Staff

1. All your questions are centered towards:


1.1. Culture


In the past, the Chinese and most cultures consider the toilet "dirty". Thus, toilets are never found in the home. Much less so "open" and so full of glass.


In fact, yesterday, just walking along the latest Executive Condo: The Quartz and saw many toilets literaly boxed in full glass even the exterior walls!


In the past, toilets only have a single door and even there are openings, they are top rung small ventilation windows that's all.


Thus things have changed.


1.2. Shapes and Forms Feng Shui


Under Shapes and Forms Feng Shui; it is preferred that when we immediately enter into "something" e.g. main door we don't immediately see a toilet door or a toilet bowl.


Thus, opening a bedroom door only to see the toilet door and things like toilet bowl etc... has more to do with this concept. However, this is a plus point in that the attached toilet door will never face the bedroom bed -anymore since it is facing antoher direction. BUT beware! if this is the case, avoid placing a bed next to the wall of the toilet - especially if the toilet bowl sewerage pipe is sharing the opposite wall.


1.3. Commonsense approach


Having the glass piece of the toilet facing the bed is as common as a wardrope with glass doors that have some reflection. Or a plasma tv screen facing the door. Technically, it is still fine.


Except that if you have one or two unfavourable comments eg. from relatives, friends that it looks inauspicious... then one starts to be feel concerned ...Otherwise, some of us can have mirrors or reflections all around our bed and we still sleep very well. But there are those who feel uncomfortable, most likely from personal "fear" or comments that it is unfavourable.


Anonymous wrote:

Hi


1) Is it ok tobuild a glass wall instead of the concretewallsuch that the master bed room / bed will have the view of the toilet.


2) With the glass wall, the toilet bowl will be facing the bed. Is that bad for feng Shui? If so, is there any cure? or can i place a bathtub at the glass wall so the toilet bowl will be block.


3) There is a huge full width mirror . It is at the height of the basin. I heard that having a mirror at the side of the bed is bad for feng Shui. Is this layout bad for fengshui? Any cure?


4) The back of the masterbed room door is facing the toilet door is that bad for feng shui?


Thanks a million and looking forward to hearing from you.



Posted
  • Staff

This toilet is on the ground floor.


Just peer into the picture and one can literally see the shower head and bath-tub!


A totally full clear glass (exterior) toilet! And this development has lots of it at all levels!



Posted

Hi


I am actually concern about the view from my bed as i will have full view of the toilet because of the glass wall. The exterior of my condodo not have a glass wall.


I have the choice of a concrete wall or a glass wall for my toilet. Was wondering which will be more ideal. (It is thewall facing the side of my bed.)


My full width mirror(height above the basin)will also be facing the side ofmy bed. Have read from somewhere that it will affect relationship of couples if they side of ur bed has something reflective facing it.Is there a cure for it ?


Also i m concern, with the glass wall the toilet bowl will be facing the side of my bed. I will have full view of the toilet bowl from my bed. Is that bad fo feng shui? Will it affect anything?


Thanks


Posted
  • Staff

Please read my original reply.


Since you are so concern about the glass piece; and as I had mentioned earlier, it just takes one or two friends or relatives to "spoill" the *YOUR* mood.


In Feng Shui, it is still acceptable, since when you close the toilet door, it will still be air-tight. Please re-read my past message.


Human beings are always like this: if someone gives you an inauspicious comment, followed by some other people, would you feel uncomfortable!


Thus has more to do with human factors - feel good or feel bad...


Create an account or sign in to comment

Recently Browsing 0

  • No registered users viewing this page.
Sponsored Link
 

Configure browser push notifications

Chrome (Android)
  1. Tap the lock icon next to the address bar.
  2. Tap Permissions → Notifications.
  3. Adjust your preference.
Chrome (Desktop)
  1. Click the padlock icon in the address bar.
  2. Select Site settings.
  3. Find Notifications and adjust your preference.