Jump to content
View in the app

A better way to browse. Learn more.

FengShui.Geomancy.Net

A full-screen app on your home screen with push notifications, badges and more.

To install this app on iOS and iPadOS
  1. Tap the Share icon in Safari
  2. Scroll the menu and tap Add to Home Screen.
  3. Tap Add in the top-right corner.
To install this app on Android
  1. Tap the 3-dot menu (⋮) in the top-right corner of the browser.
  2. Tap Add to Home screen or Install app.
  3. Confirm by tapping Install.
About Feng Shui at Geomancy.Net
Sponsored Link
 

Featured Replies

Posted
  • Staff

Soon to be launched NeWest mixed development.
NeWest is built on the former Hong Leong Garden Shopping Centre with an highly unusual 956 Years Tenure.
Consisting of 141 Shops and 136 Residential Units.
Commercial: Supermarket: 1 unit
Restaurants: 44 units
Kiosk: 31 units
Retail: 65 units
Residential: Triplex 3-Storey Villa: 77 units
Apartments: 51 units
Penthouse: 8 units
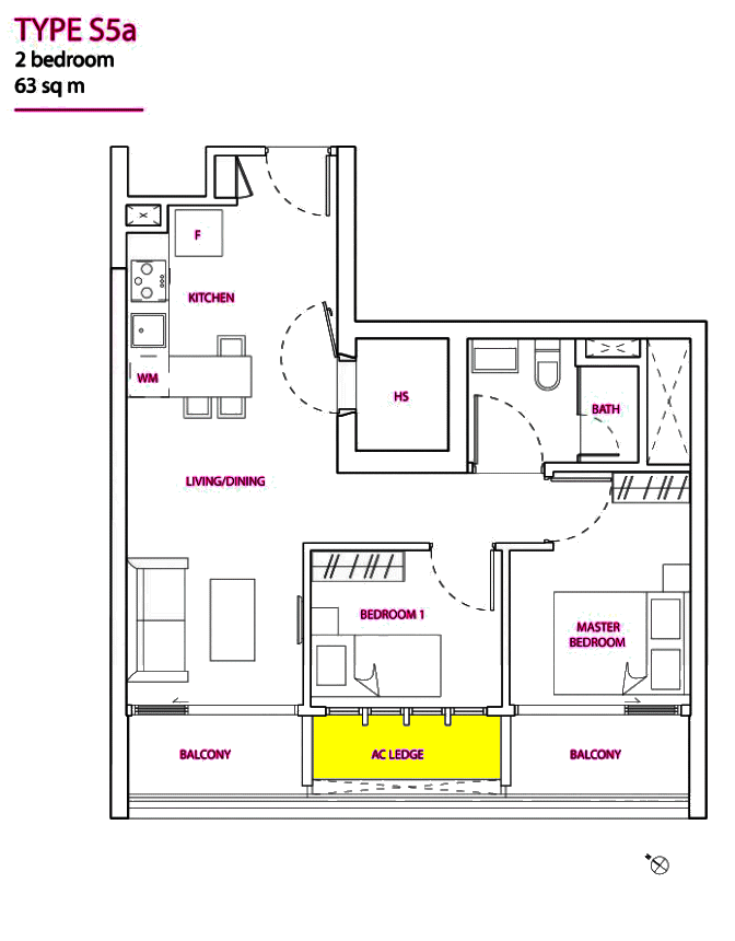
This two bedroom layout shows the air-con ledge (BRIGHT YELLOW) at the frontage of the unit. In fact, the air-con compressors are just outside of Bedroom 1: what a waste of the FRONTAGE.

Create an account or sign in to comment

Recently Browsing 0

  • No registered users viewing this page.
Sponsored Link
 

Configure browser push notifications

Chrome (Android)
  1. Tap the lock icon next to the address bar.
  2. Tap Permissions → Notifications.
  3. Adjust your preference.
Chrome (Desktop)
  1. Click the padlock icon in the address bar.
  2. Select Site settings.
  3. Find Notifications and adjust your preference.