Skip to content
View in the app

A better way to browse. Learn more.

FengShui.Geomancy.Net

A full-screen app on your home screen with push notifications, badges and more.

To install this app on iOS and iPadOS
  1. Tap the Share icon in Safari
  2. Scroll the menu and tap Add to Home Screen.
  3. Tap Add in the top-right corner.
To install this app on Android
  1. Tap the 3-dot menu (⋮) in the top-right corner of the browser.
  2. Tap Add to Home screen or Install app.
  3. Confirm by tapping Install.
About Feng Shui at Geomancy.Net
Sponsored Link
 

Coincidence or What? Similar type of layout plans

Featured Replies

  • Staff

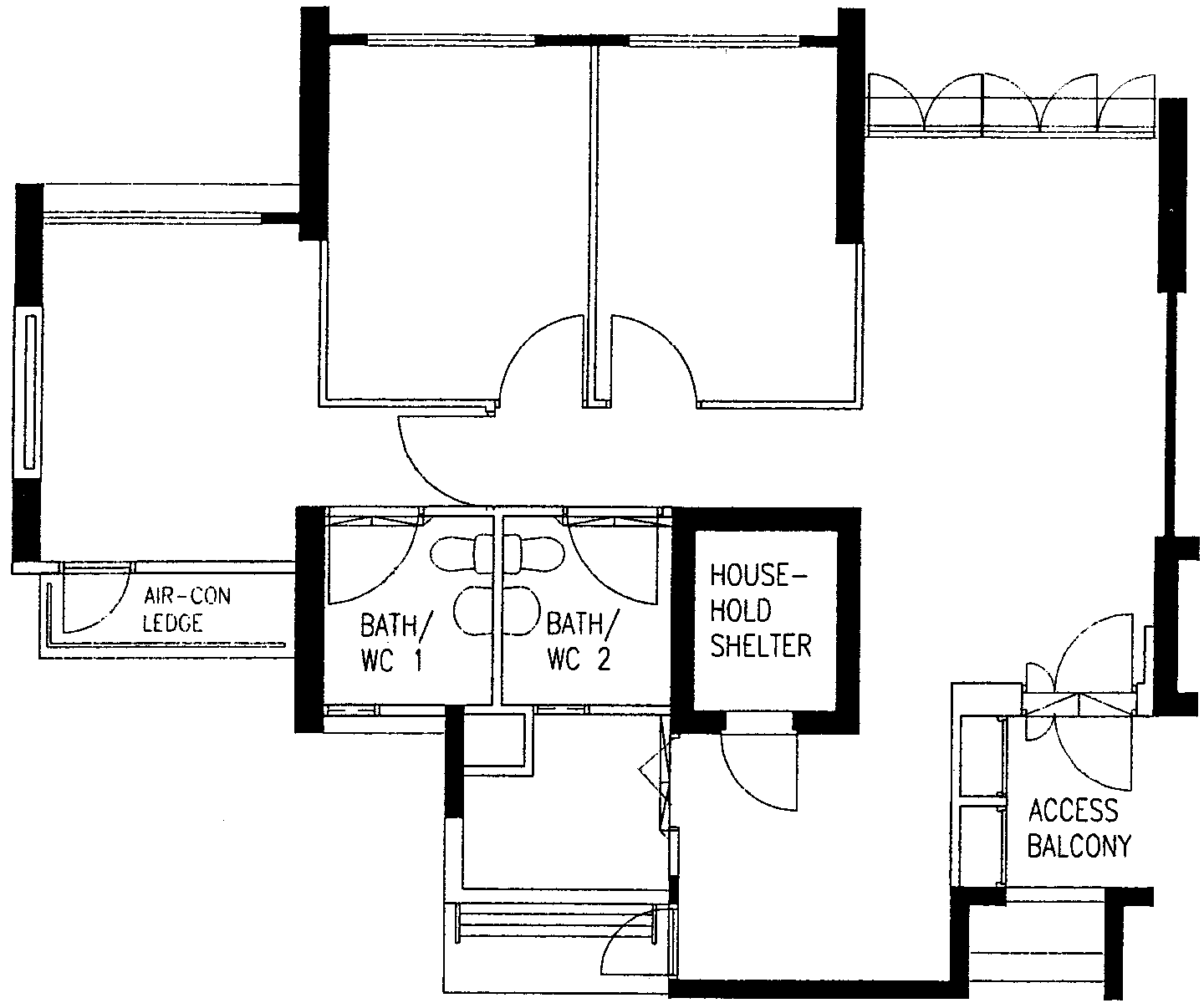
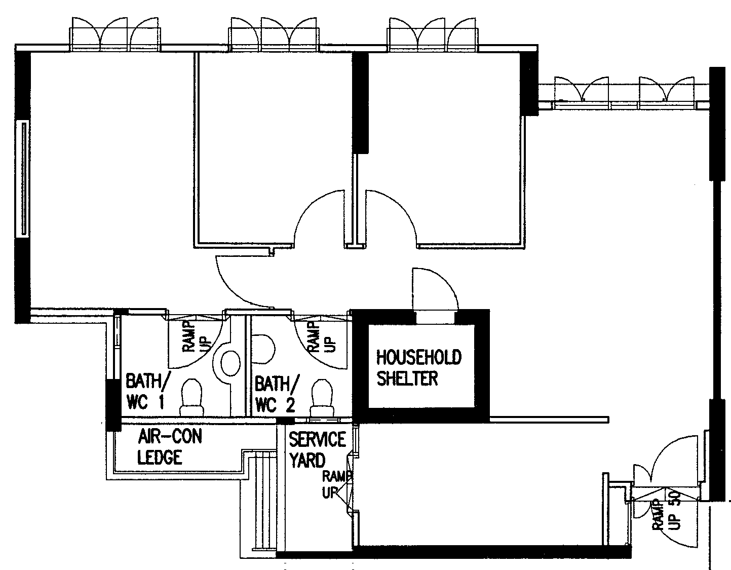
Although the attached layout plans are very common for Singapore government board flats (HDB);
When I first received a copy of one of them; at first glance, I thought they were the same!
While, they are not exactly the same identical layout plan; as there are slight differences especially the entrance to the kitchen; but, overall, they are very similar in many ways!
Can you see the differences?
There are some who are concerned with the kitchen entrance visible to the main entrance door of the Bukit Panjang unit.
By the way; both blocks/units TOP at thes ame time: one is in Bukit Panjang and the other at Ang Mo Kio.

Create an account or sign in to comment

Recently Browsing 0

  • No registered users viewing this page.
Sponsored Link
 
Background Picker

Account

Navigation

Search

Search

Configure browser push notifications

Chrome (Android)
  1. Tap the lock icon next to the address bar.
  2. Tap Permissions → Notifications.
  3. Adjust your preference.
Chrome (Desktop)
  1. Click the padlock icon in the address bar.
  2. Select Site settings.
  3. Find Notifications and adjust your preference.