Skip to content
View in the app

A better way to browse. Learn more.

FengShui.Geomancy.Net

A full-screen app on your home screen with push notifications, badges and more.

To install this app on iOS and iPadOS
  1. Tap the Share icon in Safari
  2. Scroll the menu and tap Add to Home Screen.
  3. Tap Add in the top-right corner.
To install this app on Android
  1. Tap the 3-dot menu (⋮) in the top-right corner of the browser.
  2. Tap Add to Home screen or Install app.
  3. Confirm by tapping Install.
About Feng Shui at Geomancy.Net
Sponsored Link
 

Boutique Freehold development with good layouts

Featured Replies

  • Staff

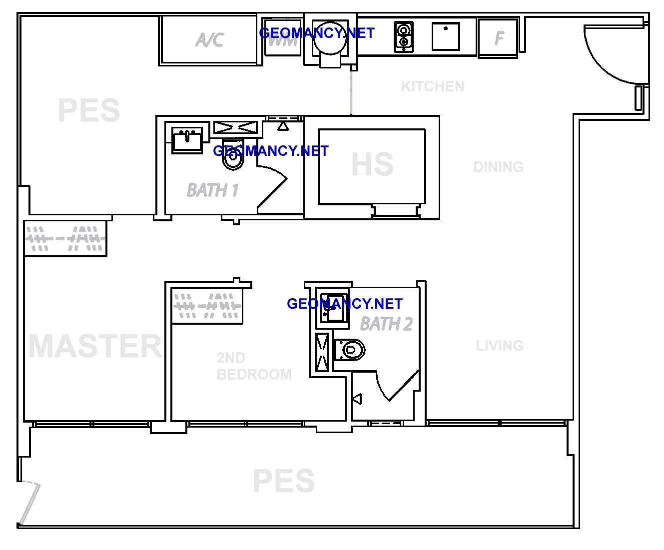
This boutique freehold development located in district 15 has interior layouts that are well-thought out.
Even if it is a 1 bedder, 2 bedder or 3 bedders; the architect has managed to fully maximize the floor area.
If one can see, in this 2 bedder illustration; the entire unit is a rectangular shape with a minor extension at the main entrance area. The rest of this small development's other layouts also share a well thought out design. By the way, the small size of the unit is made-up by huge

Quote
4 metre high ceilings particularly in all bedrooms, living and dining room.

Create an account or sign in to comment

Recently Browsing 0

  • No registered users viewing this page.
Sponsored Link
 
Background Picker

Account

Navigation

Search

Search

Configure browser push notifications

Chrome (Android)
  1. Tap the lock icon next to the address bar.
  2. Tap Permissions → Notifications.
  3. Adjust your preference.
Chrome (Desktop)
  1. Click the padlock icon in the address bar.
  2. Select Site settings.
  3. Find Notifications and adjust your preference.