Jump to content
View in the app

A better way to browse. Learn more.

FengShui.Geomancy.Net

A full-screen app on your home screen with push notifications, badges and more.

To install this app on iOS and iPadOS
  1. Tap the Share icon in Safari
  2. Scroll the menu and tap Add to Home Screen.
  3. Tap Add in the top-right corner.
To install this app on Android
  1. Tap the 3-dot menu (⋮) in the top-right corner of the browser.
  2. Tap Add to Home screen or Install app.
  3. Confirm by tapping Install.
About Feng Shui at Geomancy.Net
Sponsored Link
 

Featured Replies

Posted
  • Staff

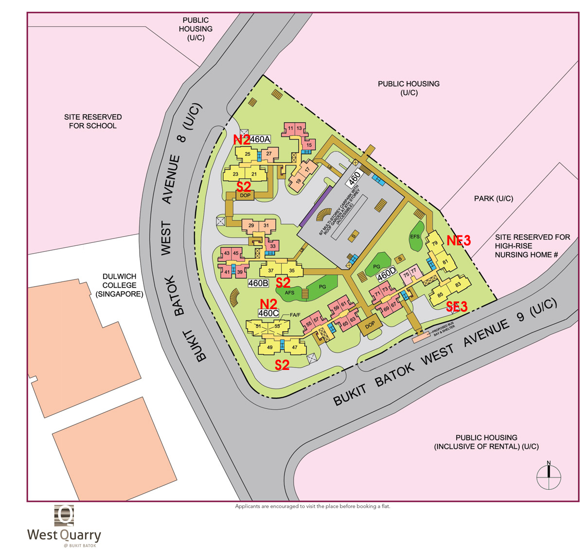
HDB West Quarry Sales Brochure: Site Plan and Floor Plans

west-quarry-@-bukit-batok.pdf

 

1. HDB West Quarry and Flying Star Feng Shui of 4 bedroom type:-

 

2. N2 = stacks 25, 51 & 53 with S2 = stacks 21, 23, 35, 37, 47 & 49. Under Flying stars; there is a difference between a N2 facing vs a S2 facing chart.

2.1 Here, under N2 facing; the combined auspicious wealth stars are wasted at the rear of the home. Here, "rear" often means wasted at the kitchen / yard area in stead of at the frontage like that of an S2 chart.

2.2 S2 = stacks 21, 23, 35, 37, 47 & 49. Stacks are the best stacks for a East group person. As both frontage enjoys the double auspicious #8 wealth stars. And furthermore their facing directions has water. Bring great wealth.

3. NE3 = stacks 79 & 81. NE3 stacks has the mountain star #8 is at the frontage; In order to activate the pearl string effect; best not to have a water position at the frontage. Unfortunately, all the stacks in this facing (Sky Patio) have pool(s) of water at the frontage.

4. SE3 = stacks 83 & 85 facing has the water wealth star at it's frontage. Thus, it would be good if the unit faces a pool of water. Or enhanced with a water feature at the balcony area of the living room.

4.1 Therest of the stars in other sectors are inauspicious. And may need to be disarmed

4.2 Good, if the rear of the house has a "mountain" support.

 

hdb_west_quarry_flying_stars.png

 

hdb_west_quarry_flying_stars_total.png

west-quarry-@-bukit-batok.pdf

  • 3 years later...
  • Cecil Lee changed the title to HDB West Quarry BTO launched in November 2015

Create an account or sign in to comment

Recently Browsing 0

  • No registered users viewing this page.
Sponsored Link
 

Configure browser push notifications

Chrome (Android)
  1. Tap the lock icon next to the address bar.
  2. Tap Permissions → Notifications.
  3. Adjust your preference.
Chrome (Desktop)
  1. Click the padlock icon in the address bar.
  2. Select Site settings.
  3. Find Notifications and adjust your preference.