Jump to content
View in the app

A better way to browse. Learn more.

FengShui.Geomancy.Net

A full-screen app on your home screen with push notifications, badges and more.

To install this app on iOS and iPadOS
  1. Tap the Share icon in Safari
  2. Scroll the menu and tap Add to Home Screen.
  3. Tap Add in the top-right corner.
To install this app on Android
  1. Tap the 3-dot menu (⋮) in the top-right corner of the browser.
  2. Tap Add to Home screen or Install app.
  3. Confirm by tapping Install.
About Feng Shui at Geomancy.Net
Sponsored Link
 

Featured Replies

Posted
  • Staff

Part 1: Resource Bank

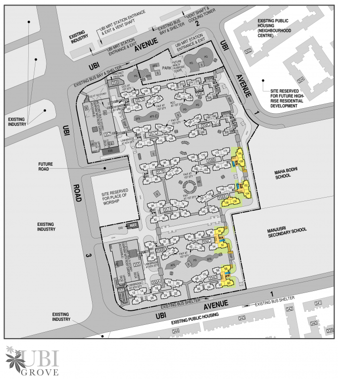
Sales Brochure: Site Plan and Floor Plans

ubi-grove.pdf

 

HDB Ubi Grove launched in February 2018

layoutideas_gl_N6C29.pngtfp_gl_N6C29.thumb.png.90ab52fc8b68516ff3240893cc405dc2.pngsiteplan_gl_N6C29.pngtownmap_gl_N6C29.png

Although the majority applies to a condo unit, but many of what to look out for also can apply to BTO flats:-

 

  • Author
  • Staff

Part 2 - Case Study: Is it advisable to have my home facing a school?

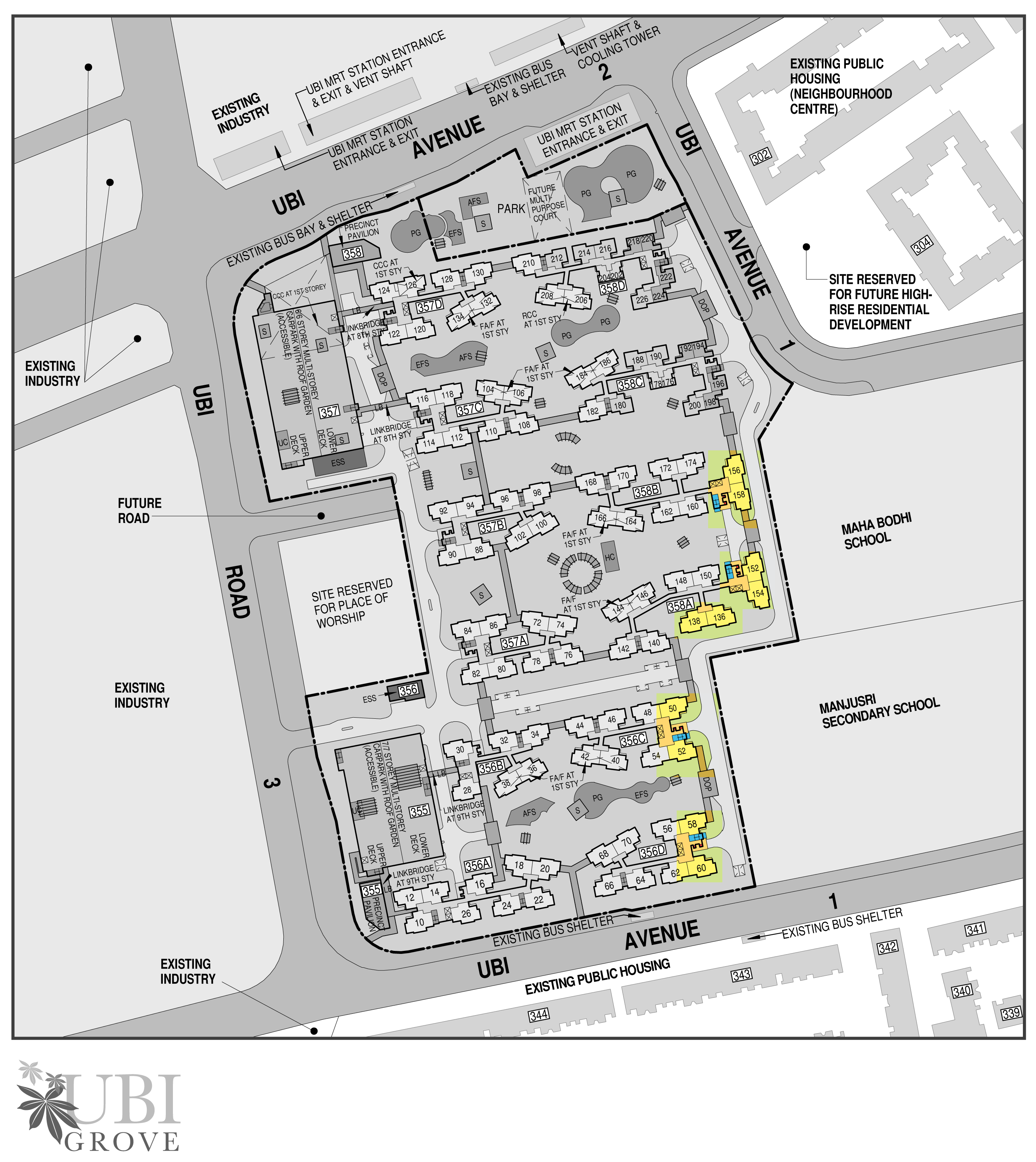
1. The sitemap below highlighting in colour stacks / units facing or close-by to the school(s).

5a7cd671cb163_ubigroveandschool.thumb.png.ed2705f1950979ea5ccf3ac3854452d6.png

2. There is some truth in saying that currently, for all Primary and Secondary schools, often after 5pm it is always deserted.

2.1  And some geomancers say this is unlucky as after dark, the school becomes a Yin location. Thus not ideal to have a home not necessarily facing a school. Homes that are next-to it may come under the above category.

2.2 So far, these fears are often missed-placed. Thus if one is still too concerned about this, then try to select a higher unit.

3. What esle to look out if I want to purchase a unit facing a school?

3.1 One concern has to do with the roof-line of the school. Avoid having a unit with the school roof-line slicing towards one's home opening such as the main door, living room windows and/or bedroom windows. Very hard to cure.

3.2 As the homes are yet to be built, safest to go on-site to do a site visit. Plus get a unit that is often at least 6 or more storeys high. Higher the better to clear the roof-line. Level 8 and above are often the safest.

3.3 Not many schools have a clock tower. If the school has a clock tower, then avoid purchasing a unit with the clock face facing one's unit. This is considered inauspicious. And if it does face a living room window.. hard to cure given that one often literally have to open the living rooom windows.

3.3.1 Fortunately, many local schools do not have a clock tower nowadays.

3.4 Better stacks are 136, 154 and 156.

3.5 Next best are 152 and 158. These two stacks slighly loose out because of the consideration of where the central rubbish bins are in their respective blocks.

3.6 There is a stigma attached to stack 138 especially lower floors as it is somewhat similar to facing a "T-junction" or perceived to be so.. especially if one had purchased a lower floor unit such as 2nd or 3rd storeys. As these two units may be harder to sell in the future. With this stigma in mind.

4. Noisy? Often, it is during assembly time and depending on how loud the accoustics may filter into the unit. Usually, this is a non-issue.. unless one finds it disturbing or want to catch some sleep in the morning etc... Also depends on where one's bedroom is.

4.1. During school hours.. as usually, boys are boys.. and children are children.. and during recess.. it can be rowdy at times .. when children start playing or the bell rings.

5. Stacks 50, 52, 58 and 60 to some is considered close to the school. But, in my opinion, for these four stacks.. they are a "non-issue" as to the above subject matter.

6. For stacks 152, 154, 156 and 158, there is the concern that it's back is where the proposed new place of worship is. Thus, this is another consideration to consider!

P.S. Do look at stacks/units facing the Park / MRT station .... although slight afternoon sun all year round....

  • Author
  • Staff

Part 3 - There are two Precinct Pavilions in this development

It is good that the planners place the two precinct pavilions to the side of the development.

Only one stack Block 357D #124 directly faces a pavilion. While it's sister stack #126 is to the side. For these two stacks best to select a unit at least 6 storeys high to avoid looking into the pavilion and the unexpected noise .. in the event of prayers at a wake/funeral.

For Block 356A with stacks #10 #12, try to purchase a higher floor unit. To avoid the din or noise in the event of a wake/funeral at the precinct pavilion Block 355.

HDB Ubi Grove and precint pavilions.png

  • Author
  • Staff

Part 4 - Case Study of HDB Ubi Grove with a site reserved for place of worship: Temple/Church/Mosque?

Given that there are so many 4 Bedroom stacks to choose from in this development.

It would be better to avoid selecting stacks highlighed in PINK: stacks 12, 14, 16, 28, 30, 32, 34, 82, 84, 86, 88, 90 & 92.

HDB UBI GROVE and site reserved for worship.png

As there is a stigma attachment to having a home that has a view of a temple.

There is no indication yet as to whether it will be a mosque, church or temple.

Case Study: Is there an issue if my unit directly faces the cross on a church's roof?

59955f6a2e028_Acrossontopofachurch_png_697689160652d02657efc3c9852e259e.png.90b0118ea347a1a1a6e836f81a1edb9f.png

Depending on where the church places a cross. Some churches place it on the tip of their buidling or on the face of their building.

  • Author
  • Staff

Part 4 - Case Study: Look out for units close-to Central Rubbish Bins

Units diagonal to the central rubbish bins = 54, 56, 86, 118 & 120. For example, standing outside the main door; one can see into the central rubbish bin.

Units near to central rubbish bins = 152, 154, 156 & 158

The worse case is that of stacks 16 and 30 where the central rubbish bins are sharing it's small wall.

HDB UBI GROVE central rubbish bins.png

  • Author
  • Staff

Part 6A - Case Study: History of the plot of land where this new development now occupies

From 1966 to 1975, HDB Ubi Grove would have been situated on Jalan Mempelam, Jalan Delima, Jalan Jagong .. Jagong simply means maize... Jalan Bawang means onions, Jalan Halia = Malay for ginger, Jalan Lada = pepper... Jalan Berangan means Chestnuts... Jalan Lobak = radish.. Jalan Kubis = cabbage.. Jalan Delima = pomegranate..

Interestingly, there is also another road called Jalan Tauge which literally means Beans Sprouts... these colourful road are no more. Thus in the future, if you are a resident here, do spread the word about the past names of your estate. and be proud to live in an estate that has a very colourful past.

997C00D2-7C9D-4C27-B354-9A6579368EEA.thumb.png.307b20c96e342a7329ee2ffa9282de23.png

All the above roads mainly with Malay names have totally disappeared. Jalan Kachang means Peanuts Road..

Your proposed new home at HDB Ubi Grove is within the outer perimeter of what was known as Geylang Serai Village.

The previous road names implies that this was predominantly a Malay settlement in the past.

In 1985, the government cleared this piece of land for mixed development of HDB housing /schools and industrial.FACA84BF-81A2-41FB-814B-645B2C2CDF55.thumb.png.f8eb246abd118579d89230c6be771c21.png

By 1995, HDB flats were developed and SME industrial workshops were also completed. The roads now spot dull names such as Ubi Avenue 2 running East to West; and Ubi Avenue 3 running from North to South...

65BF417C-4206-4137-BC31-C60E34BF6687.thumb.jpeg.5a648ff17cc654a97c96aa4fd4e09778.jpeg

In 2007, the school Maha Bodhi and more landmarks arrived:-

0EA7D521-2504-4DE4-9055-5DDA707C2A3E.png

Overall, this piece of land gets a “clean bill of health” as it was never a cemetery.

  • Author
  • Staff

Part 6B - The former roads have vegetable names associated with it

If you have the time, find out what was the significance of the road: Jalan Petai which is close-by to HDB Ubi Grove..

Poignantly Grove seems a perfect name for this estate given that there are maize, peanuts or kachang and petai ..

HDB’s interpretation of this piece or plot of land:

Ubi Grove  is bounded by Ubi Avenue 1, Ubi Avenue 2, and Ubi Road 3. It is located next to Ubi MRT station and comprises 12 residential blocks ranging from 10 to 15 storeys. You can choose from 1,193 units of 2-room Flexi, 3-, and 4-room flats.

The name ‘Ubi Grove’ refers to the small grove-like clusters of green landscape that are scattered throughout the development. It also draws reference to the history of the area that was once used for tapioca cultivation, where ‘Ubi’ means ‘tapioca’ in Malay.

Indeed, what a colourful past given it’s rich history.

 

  • Author
  • Staff

Part 7 - Case Study: The stima of living in close proximity of an Electrical Sub-station or ESS

Although there are no conclusive or no known bad effects of living close-to or next to an ESS, nevertheless, there is somehow a stigma attached to this.

As often during a resale environment, many would seek advice on this.

A conservative geomancer may even hail this as inauspicious!

Fortunately, good or bad, none of the stacks or units are directly above such an ESS.

In fact, it is safe to say that stacks 30, 82, 92, 114 and 116 are quite a distance away from the two ESS in this development! 

HDB UBI GROVE n ESS.png

Look at it from another angle: ESS are always low storeys mostly 1 or 2 storeys high. As such any unit that is often higher than 2nd storey would not be obstructed by it. (With the exception of the MSCP. Given that for this development both the ESS are at each of the two the MSCPs.  

  • Author
  • Staff

Part 8 - Male Breadwinner and the concern of kitchen at NW sector

1. Do a search in this forum for " Fire at Heaven's Gate ".

2. Generally, a kitchen especially if a stove is directly at the NW cardinal point will be inauspicious for the male-head of the house. Typically this can affect him.

3. This is because NW under the Ba Gua Trigram belongs to the Heaven (sign). And NW also represents the male-head elder of the house.

4. Thus in simple terms: turning on a stove at NW will burn one's Heaven luck = not lucky and also may affect the male-head elder's career.

5. If you have done so many review as I have, even in a ranking exercise; I can pick out stacks/units in my mind that has this concern. And flag it to the potential purchaser.

6. Thus for this development HDB Ubi Grove, I randomly picked one example. Here, stacks 108 & 112 as shown below has the kitchen within the NW sector:-

5a822ffce9ea5_STACKS108AND112KITCHENATNW.png.f110e4d473a594a58bfd74263f5382cf.png

7. Mind you, there are lots, lots more of similar stacks with kitchen at NW sector in HDB Ubi Grove = caveat emptor.. let the buyer beware!

8. Additional 4 bedroom type stacks with kitchen at NW:

Ubi Grove kitchen at NW.png

  • 4 months later...
  • Author
  • Staff

Part 9 - Flying Stars Feng Shui of Ubi Grove

Calculated Flying Star directions;

Majority of stacks favours the East Group persons: N1, S1, E1 and SE3.

Only a handful favours the West Group i.e. NW3.

The good news for West Group persons is that Feng Shui is based on a holistic approach involving Shapes and Forms and many other considerations.

ubi grove flying stars1.png

  • Author
  • Staff

Part 10 - Possible sharp corner of neighbouring stack aimed towards another stack

Here:
Stack 18 aimed towards 28
Stack 38 aimed towards 16
Stack 40 aimed towards 56
Stack 56 aimed towards 42
Stack 72 aimed towards 88
Stack 102 aimed towards 86
Stack 134 aimed towards 118
Stack 148 aimed towards 166
Stack 164 aimed towards 148
Stack 146 aimed towards 162
Stack 180 aimed towards 174
Stack 200 aimed towards 172

51D0DA3D-E9BE-43D6-8668-DBA85E73062D.jpeg.bc655382e0fba881c31d3de1e450b597.jpeg

Difficult to say for sure now. Need to go on-site to inspect and review. Hopefully it is not aimed towards a living room window as this is the worst case senario.

Ubi Grove is on a pretty large piece of land. From a non Feng Shui selling point is the Ubi station Downtown line.

The outline of the Two schools can be seen a distance away to the extreme left of this photo:

3EFFF960-68DE-4BBE-8952-EF8DF5AB61A8.thumb.jpeg.c6b241a0e71dc9425f5536b3a05c16a5.jpegDC43E0B1-D41B-441E-9363-27BD12FB0717.jpegDCCB50E8-8DC0-460D-AB74-F712801AAB98.jpegD414634C-979A-4523-9D5B-5E367AC9E45F.jpeg666C5793-0536-4669-9C56-8A285C4EB026.jpeg5A3124CB-F99D-4C38-B793-C6065513F4B5.jpeg88A69C23-A24C-45CF-AC92-F6E7DF563F06.jpeg3535959B-5B26-4853-BF84-6DBBA4B4BE95.jpeg66A32A45-D86D-433B-A2A0-10F741694592.jpeg46CEF38E-47E2-4336-B1AD-4379EE29F9AE.jpeg

  • 2 weeks later...
  • 3 weeks later...
  • Author
  • Staff

Geomancy.net does very detailed analysis By Ranking under Option 1:604108627_BYRANKINGUBIGROVE-FOURBEDROOMSdetailedranking(2).thumb.png.6328ed9ed96f3ccff981944e1d8cd013.png

Not only are you given rankings; you will also get a glimpse of The characteristics of that specific unit:-

129480372_BYRANKINGUBIGROVE-FOURBEDROOMSdetailedranking(3).thumb.png.08ceab18c701a808918b8e65c46155ab.png

248728883_BYRANKINGUBIGROVE-FOURBEDROOMSdetailedranking(4).thumb.png.586f25703e0c127cede083683d51233e.png

BY RANKING UBI GROVE - FOUR BEDROOMS.png

The above review is under Option 1: Brand New:-F1C7C4AB-EDE7-4FFB-83E7-C740BF3856CA.thumb.jpeg.acc9c591edb78636d68483f478420586.jpeg

  • 10 months later...
  • 4 weeks later...
  • 7 months later...
  • 6 months later...
  • 1 year later...
  • 3 months later...
  • 8 months later...
  • Author
  • Staff

Feng Shui suffers a bad reputation, today.

Many Feng Shui Masters are a Feng Shui Store. Their core business is not authentic Feng Shui.
But rather making big bucks by selling lots of useless commercial products in the name of Feng Shui.

Please give me a good reason not to buy such products. Here's one:

2067630596_FAKE(8).png.a4a889053737bed4b9f1b4db20d9dbc6.png

424511252_blacksheep.jpg.f9b140c26a45a6f4af8a26d90559d5a3.jpg

92168278-3B3E-456C-8A41-862E7EDA6537.jpeg
Okay, the above was written prior to the knowledge of COV-19. Here’s to another reason, why.

Many Feng Shui Masters and their shops are FAKES!

On Saturday, 14 March 2020, a WhatsApp from a past client

53D9DC91-B611-4142-B234-151EA0AB99EF.thumb.png.9aedba5135b3a44a8dc1e1846e5e7ba8.png7541700A-8CF1-4B59-ACCC-C98B1CB02185.png.d2002fe17c44cbf6ade5cfeb59b437ff.png

P.S. Frankly, I was just being extremely polite. Actually if one got the hint, as the British always say just throw the "bloody" thing away!

  • Author
  • Staff

25th Anniversary in 2019

1494810678_GEOMANCYNETWAYBACKMACHINE.thumb.png.29fb2c1b71ff68ad29e0fd08bafd1c45.png

How can we help you today?

GET EXPERT HELP: IMPROVE YOUR HEALTH, WEALTH & HAPPINESS TODAY

Comprehensive Home Package [A.]: On-site or [B.]: Off-site for HDB / Condo / EC & Landed Properties for New/Re-Sale House or facing financial/ marriage/ relationship/ health issues

 

Do you offer a 1 visit On-site audit? How much?

 

" As much as we see, Geomancy.net has great web presence built up over the years and is seen as one of the SG market leaders in residential house audit. "

Success starts with good Feng Shui

367287073_HEALTHWEALTHANDHAPPINESS50.png.03992f40f00dc4cd5e9453963bf0fa6c.png
Transparent Pricing & No Hidden Costs. No Purchase of Products.

 WHATSAPPx.gif.933b1f171b62310142ae17b5501fc685.gif Cecil Lee, +65 9785-3171 / support@geomancy.net

1861277562_UNDERSTANDINGMICRO.png.891959f03ef51f98ac6911212f3b30ed.png

 

House Hunting? We will help you select the most auspicious unit!
Learn More
696681019_geoamncysgicon.png.fb8c9b974fb87d32583cae8b9c22b372.png

The Experts in House Hunting

Create an account or sign in to comment

Recently Browsing 0

  • No registered users viewing this page.
Sponsored Link
 

Configure browser push notifications

Chrome (Android)
  1. Tap the lock icon next to the address bar.
  2. Tap Permissions → Notifications.
  3. Adjust your preference.
Chrome (Desktop)
  1. Click the padlock icon in the address bar.
  2. Select Site settings.
  3. Find Notifications and adjust your preference.