Skip to content
View in the app

A better way to browse. Learn more.

FengShui.Geomancy.Net

A full-screen app on your home screen with push notifications, badges and more.

To install this app on iOS and iPadOS
  1. Tap the Share icon in Safari
  2. Scroll the menu and tap Add to Home Screen.
  3. Tap Add in the top-right corner.
To install this app on Android
  1. Tap the 3-dot menu (⋮) in the top-right corner of the browser.
  2. Tap Add to Home screen or Install app.
  3. Confirm by tapping Install.
About Feng Shui at Geomancy.Net
Sponsored Link
 

OUE Twin Peaks condo

Featured Replies

  • Staff

OUE Twin Peaks condo and flying stars of the two blocks.

Block 31 appeals more towards the West group persons as the stacks/units either face NE2 (45 degrees) or SW facing (225 degrees)

onemap twin peaks flying stars 1.png

 

Block 33 = N2 or S2 facing are pure North to South facing. And under the Eight House concept appeals more towards the East group person.

onemap twin peaks flying stars 2.png

  • 3 weeks later...

Can you do a more detail review on Oue twin peaks project? 

  • Author
  • Staff

Under Shapes and Forms.. pleasing and unique...

To me, the immediate image of a person’s head and fluid lines of the body.. plus the beautiful replicated patterns in the pool.. opulence...

Left, right and bottom are beautiful circles..

309E5DE3-D55A-4B73-A706-8E1BF57ED39E.jpeg

What about the layout of the units? What do you think about the Feng shui of the project? Ist a good Feng shui project? 

  • Author
  • Staff

Case Study: Under symbolism in Feng Shui; it is less than ideal to have the shower of a bathroom sharing the same wall as the stove

Layout of Tower 2. Type B
2-Bedroom. #03-08 to #35-08

comments 1-a1-b.png

Similar examples include Tower 1, B:-

comments on 1-b.png

  • Author
  • Staff

E5F1EA23-033E-41C9-B231-B1448F1ED8AB.thumb.jpeg.e4fb3bd40bcf00b5537816bdae1431da.jpegCase Study: Before signing the dotted line, check where is the external rubbish bin(s)

As the two tower blocks have external rubbish chutes. It is unclear from the various internal layout as to the location of the rubbish chute(s).

Thus before signing the dotted line; do check where the central rubbish chute(s).

As in the earlier sample layouts of Tower 2 : Type A1 and Type B; good that the rubbish bin or bins (some new developments may have a common and recyling bin) is not beside or next to the main door.

Make sure that when standing at the main door looking outwards, the rubbish bin(s) should not be seen direclty from here.

Additional considerations some of which may apply to tis development:

 

  • Author
  • Staff

Case Study:

1. A toilet should ideally share one external wall
2. A toilet should not be in close proximity to the kitchen: stove/sink

- Tower 2. Type C1 wth #02-12 to #35-12

99057956_comments1-c1-a4.thumb.png.e3b8c4f89e798713bf5d87a81e851696.png

A. TOILET marked as "A":

1. Please refer to marking in red "A". Generally there is no issue with a toilet with sink and WC at the yard.

1.1. However it is a concern if such a toilet is so close to the Asian kitchen.

1.2. One concern is whenever one closes the lid of the WC seat; whenever, one flush the WC, water will gush into the WC airwell; and because usually many WC seats have some gap where the rubber studs hold it higher; the concern is the micro-droplets from the flush may blow out of the toilet towards the kitchen.

1.3. In addition, if the kitchen door and the Toilet marked as "A"'s door is not closed; it is less than ideal to see the toilet sink when one enters the unit.

1.4 For example in the attached illustration: Standing at marking "X", if the Asian kitchen door + Toilet door of "A" is not closed; one can see that toilet's sink.

1.4.1. Under the premise: If it is not seen, it is no longer a "threat"; then simply close this toilet door when not in use. 

B. TOILET marked as "B":

2. Under Shapes and Forms Feng Shui; a toilet should at least share ONE (1) external wall.

2.1. This is not so for Toilet/WC marked as "B". Furthermore, although there is a wall between it and the stove; again less than ideal.

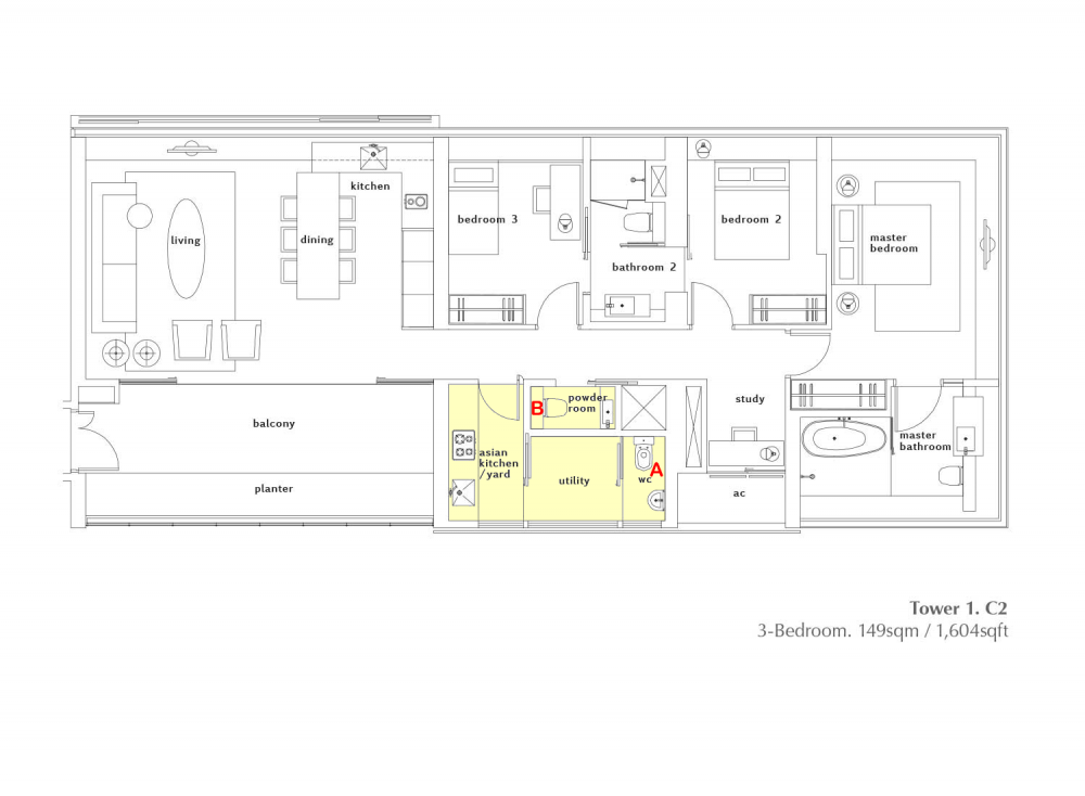
- Tower 1. C2: (See Below)

3. Good that the Toilet/WC marked as "A" is quite a distance away from the Asian kitchen as it is separated by a utility area.

3.1 Although again, the Powder Room marked as "B" should have at least share an external wall; however, it is not "facing" "B's" WC. Unlike the earlier example.  

Thus overall, this layout is not ideal; but much better layout than that of Para 1.

1857368910_commentson1-c2.pngatleastbetter.thumb.png.b50ca9aec7ee64020962c88c438ec2b4.png

 

  • Author
  • Staff

Case Study: Under Symbolism in Feng Shui, it is less than ideal with the bed sharing the same wall as the stove. It does not matter if the side of the bed or the bed-head shares this wall = not good.

Tower 1, C2:

comments 1-c2.png stove share wall as bed.png

Tower 1, C4:
112247912_comments1-c4.pngstovesharewallasbed.thumb.png.3ea47edb432c224bfb783cb66d589f47.png

  • Author
  • Staff

Case Study: Bed sharing the same wall as a TV set

1. TV sets may have varing EMF radiation (if any). Depending on the size of a TV set; we often see it from a distance. Therefore, there is no concern for those who view the TV programs.

2. Who is sleeping behind or sharing the same wall with the TV set (may or may not be a concern)

2.1. From the layout plan: looks like there is a thick wall between the TV and a bed. If so, there is no issue.

2.2. Other factors include: type of wall e.g. concrete/ concrete/ bricks / prefabricated walls. This are good as they are a shield from the TV emf (if any).

2.3. But if the wall is a dry wall or gysum wall; then there may be a concerned IF the TV set is mounted at bed or bed-head level plus coincidentally the area where the highest EMF from a TV is also found at the level.253829897_1-bsharingwallastvset.png.ca8327ca42ecb7b11247b1af271972f7.png

2.4 Fortunalely, if the bed is as shown in bedroom 2; there is no issue given that there is a small part of the "legs" position sharing extactly the same wall as the TV set.

2.5 However, some of us may sometimes switch sides: bed-head directly next to the TV, then less than ideal.

2.6 Of course the simpliest solution is not to mount a TV set within the same level of a bed + the person's sleep position is good enough.

 

  • Author
  • Staff
On ‎5‎/‎30‎/‎2018 at 7:21 PM, via said:

What about the layout of the units? What do you think about the Feng shui of the project? Ist a good Feng shui project? 

I have posted additional resources. Especially the interior layouts and what to take note of.

When we went to school, each of us have classmates that are always Top students. There are also the average students and lastly unfortunately some students are at the bottom of the class.

Thus each project will also have the good, the average and not so good ones...

This is based on the bell curve. Sample illustrations on bell curve can be found under this link:

 

  • 2 months later...
  • 10 months later...
  • Author
  • Staff

AS WE ENTER PERIOD 9 FLYING STAR FENG SHUI FROM 2024 TILL 2043

IS MY UNIT STILL LUCKY FROM 2024 ONWARDS?
OR CAN OR CANNOT BUY?

Part 1: How is the luck of the Interior Feng Shui of this unit?
Part 2: External Feng Shui luck? + Overall score/luck.
Part 3: How suitable is the unit - Frontage, Kitchen & Main Bedroom?

PART 1 = 35%

image.png.919f86ac4068816fabf147212572570b.png
Depends on the Internal Layout & Sectors - How Lucky?

XINTERNAL.gif.d9af8924f0296c58ffa61955890ffc1e.gif

image.thumb.png.14fc8f5c6936652baa87ccc8053fc638.png

T.O.P. in 2015 under Period 8 Flying Star Feng Shui

image.png.58dd1592d01cdb3259bb68d69f8d7958.png
 

Good, Better, Best!
image.png.eca59c69e7fbe6bb056ab7f13cf0332b.pngN2 = Better luck under Period 9. From 2024 till 2043.

+++

 SW2 = Depends on external features. Can be luckier under Period 9 especially depending on where is the living room.

+++

image.png.7545db4b1821123891bf5c0fbd790cb9.pngimage.png.c055d77af1e3c436eb964eaaa69d1019.pngimage.png.b6d21e760979699d8ef47f3af3fd79f0.pngS2 = Less lucky under Period 9. As formerly double #8's at it's frontage had now become Past or Gone Luck!


 

++++++++++++++++++++++++++++++++++

image.png

image.png.a1a73425ff4ede201a9afe4209a53221.png

But also need to review/consider the individual Internal Layout Plan 
& this is just part of the many considerations in a home purchase.

However the above does not take into consideration things like:
Kitchen/Stove at Inauspicious Fire @ Heaven's Gate
or Poison arrow aimed towards the unit, proximity to common bin etc..

+++++++++++++++++++++++++++
+++++++++++++++++
++++

 

PART 2 = 35%

image.png.b20d51d387ffc3fecfd1ca4536b1d2af.png
Location, location, location?
image.png.6cb715af858bd5c21b1958f73465a364.png

Sha Qi? Poison Arrow? 

image.png.592f31c61571e537bae1ecd4dc4ccd58.png


Watch Your Front, Sides & Back!

 

POOR SCORE? THESE ARE SOME CONCERNS:

Sha Qi or Poison arrow(s) from Sharp Corner(s)
天斩
煞 (tiān zhǎn shà) = Tian Zhan Sha etc...

X1EXTERNAL.gif.97cebbef84198f7d87e273035fbfb23c.gif

+++++++++++++++++++++++++++
+++++++++++++++++
++++

 

PART 3 = 30%

image.png.c5d88140dad56cb31762d8acd4313636.png
How Suitable to breadwinner?

image.png.833e364ba94fb435c80af7e9c424387c.png

image.png.a374728bf11c51f8a0f2994ce8dcbdf2.png
Please note that has yet to take into consideration:
1. How suitable is the unit to the main breadwinner &
2. External Shapes and Forms of the unit

image.png.eb1572b92ac460af725d8373f85eb51e.png

TOTAL SCORE = 35 + 35 + 30 = 100%


Get Expert Help:

++++++++++++++++++
+++++++++

How do you Feng Shui your home? Use your front door? Who are the Conservatives & the Modernist?

 

Applies to Homes that previously T.O.P. between Years 2004 to 2023...

Create an account or sign in to comment

Recently Browsing 0

  • No registered users viewing this page.
Sponsored Link
 
Background Picker

Account

Navigation

Search

Search

Configure browser push notifications

Chrome (Android)
  1. Tap the lock icon next to the address bar.
  2. Tap Permissions → Notifications.
  3. Adjust your preference.
Chrome (Desktop)
  1. Click the padlock icon in the address bar.
  2. Select Site settings.
  3. Find Notifications and adjust your preference.