Skip to content
View in the app

A better way to browse. Learn more.

FengShui.Geomancy.Net

A full-screen app on your home screen with push notifications, badges and more.

To install this app on iOS and iPadOS
  1. Tap the Share icon in Safari
  2. Scroll the menu and tap Add to Home Screen.
  3. Tap Add in the top-right corner.
To install this app on Android
  1. Tap the 3-dot menu (⋮) in the top-right corner of the browser.
  2. Tap Add to Home screen or Install app.
  3. Confirm by tapping Install.
About Feng Shui at Geomancy.Net
Sponsored Link
 

The Verandah Residences by Oxley Amber Pte Ltd @ 225 to 231C Pasir Panjang Road

Featured Replies

  • Staff

The Verandah Residences by Oxley Amber Pte Ltd is a freehold development.

This development has Four blocks of 5-storey residential flats with three 2-storey strata landed houses.

the-verandah-residences-03-EHM500.jpg

  • Author
  • Staff

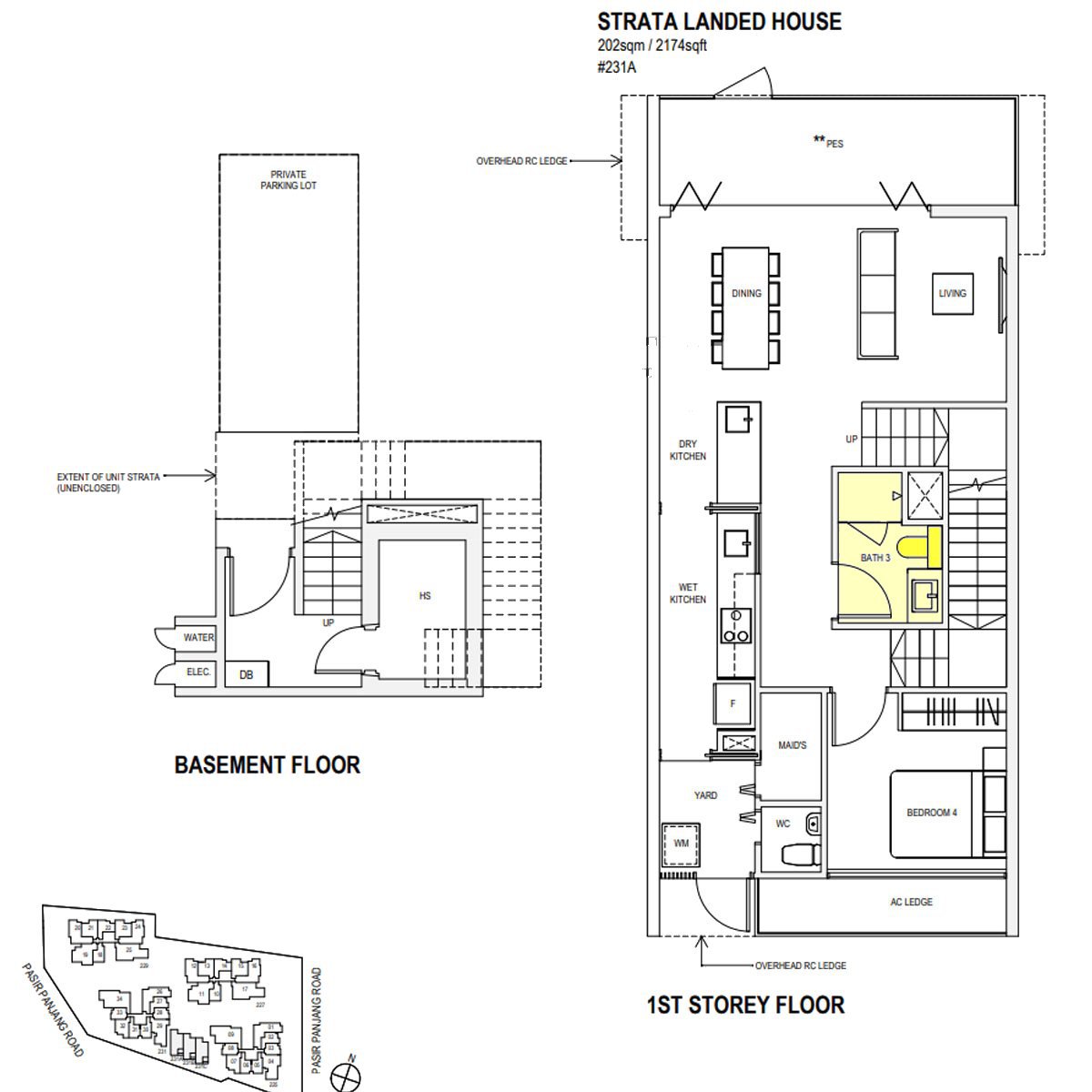
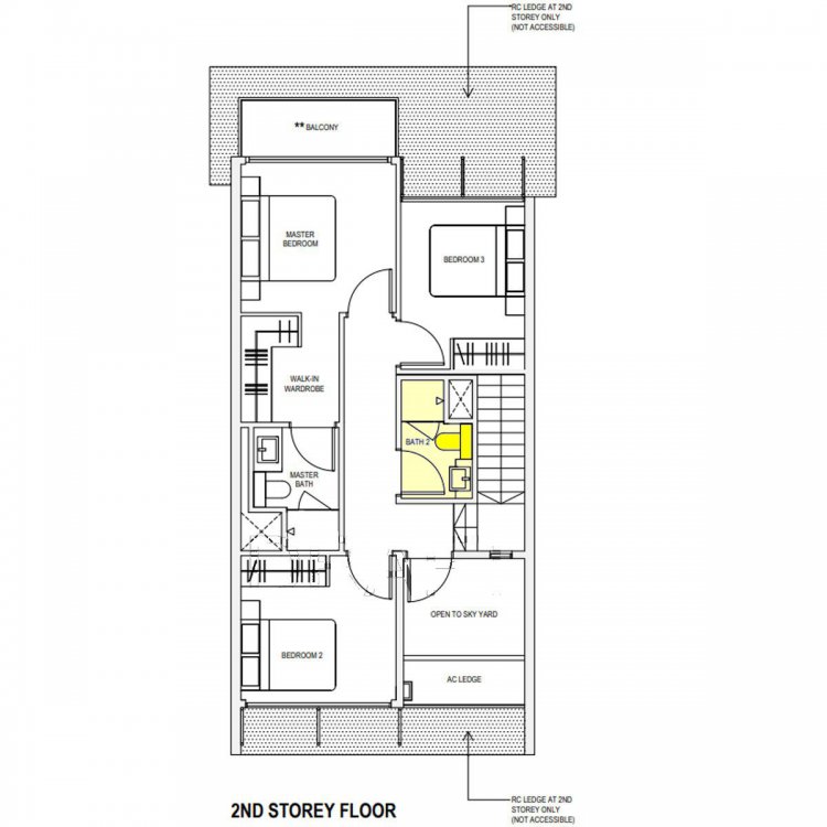
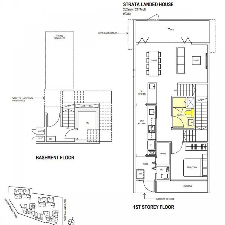
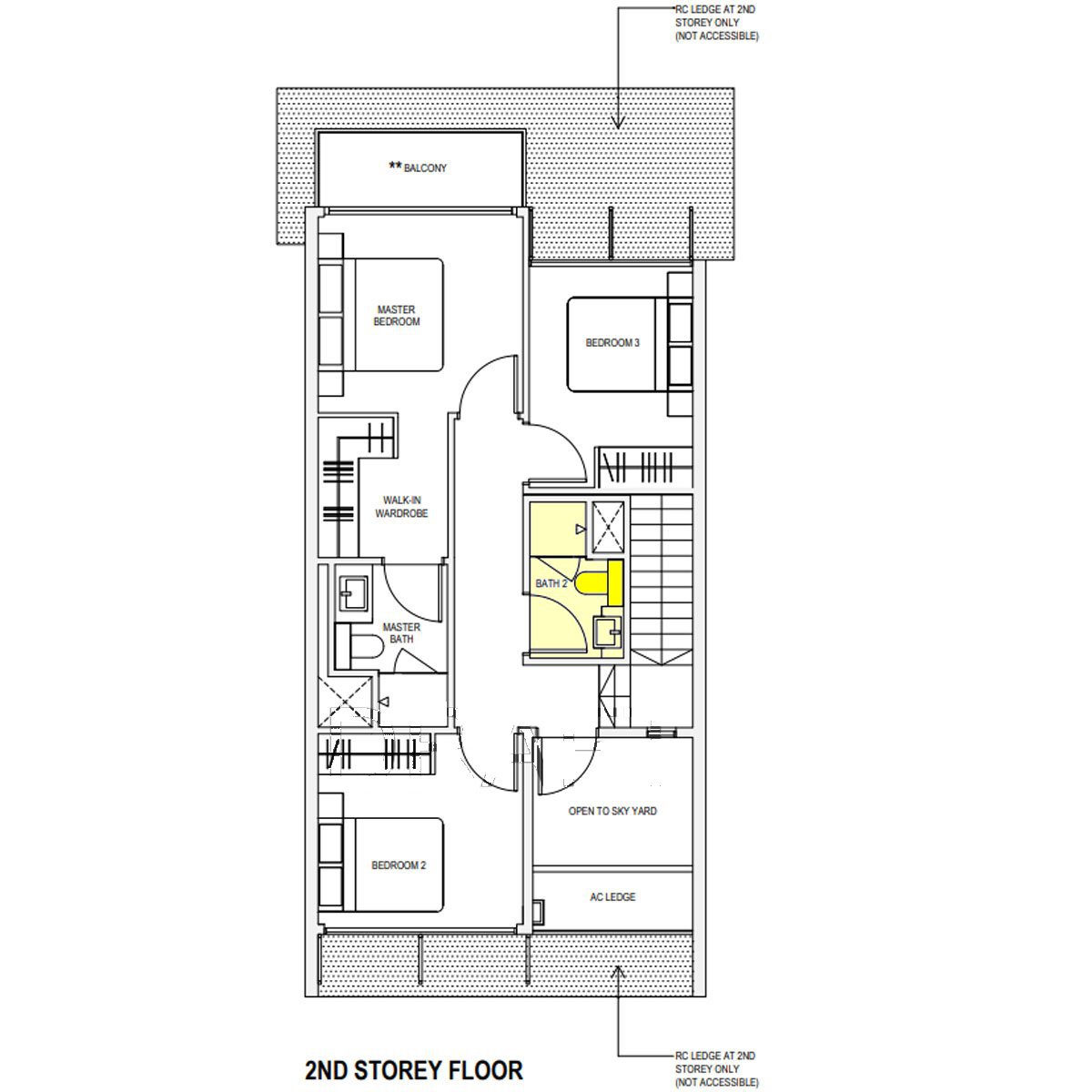
Case Study: Comments on The Verandah Residences strata landed.

Under Shapes and Forms Feng Shui, less than ideal to have a toilet at the centre of the unit.
Ideally, a toilet should share one external wall.

comments on the-verandah-residences-strata-landed.jpg

comments the-verandah-residences-strata-landed-house2.jpg

comments on the-verandah-residences-2bed-1bath-WCm200.png

  • Author
  • Staff

In 1966, there was a Dispensary near-by to the site.FCED3B5B-798B-441F-A275-F8D8A795B1D9.pngAnd the site was located at Kampong Sultan.

A seaside Hotel was at the fringe of the sea. Today, this is reclaim land and is now the West Coast Highway.

77062380-528B-4D69-A08C-5055C62578EF.jpeg

  • 1 year later...
  • 2 weeks later...
  • 4 years later...
  • Author
  • Staff

Feng Shui suffers a bad reputation, today.

Many Feng Shui Masters are a Feng Shui Store. Their core business is not authentic Feng Shui.
But rather making big bucks by selling lots of useless commercial products in the name of Feng Shui.

Please give me a good reason not to buy such products. Here's one:

2067630596_FAKE(8).png.a4a889053737bed4b9f1b4db20d9dbc6.png

424511252_blacksheep.jpg.f9b140c26a45a6f4af8a26d90559d5a3.jpg

92168278-3B3E-456C-8A41-862E7EDA6537.jpeg
Okay, the above was written prior to the knowledge of COV-19. Here’s to another reason, why.

Many Feng Shui Masters and their shops are FAKES!

On Saturday, 14 March 2020, a WhatsApp from a past client

53D9DC91-B611-4142-B234-151EA0AB99EF.thumb.png.9aedba5135b3a44a8dc1e1846e5e7ba8.png7541700A-8CF1-4B59-ACCC-C98B1CB02185.png.d2002fe17c44cbf6ade5cfeb59b437ff.png

P.S. Frankly, I was just being extremely polite. Actually if one got the hint, as the British always say just throw the "bloody" thing away!

  • Author
  • Staff

25th Anniversary in 2019

1494810678_GEOMANCYNETWAYBACKMACHINE.thumb.png.29fb2c1b71ff68ad29e0fd08bafd1c45.png

How can we help you today?

GET EXPERT HELP: IMPROVE YOUR HEALTH, WEALTH & HAPPINESS TODAY

Comprehensive Home Package [A.]: On-site or [B.]: Off-site for HDB / Condo / EC & Landed Properties for New/Re-Sale House or facing financial/ marriage/ relationship/ health issues

 

Do you offer a 1 visit On-site audit? How much?

 

" As much as we see, Geomancy.net has great web presence built up over the years and is seen as one of the SG market leaders in residential house audit. "

Success starts with good Feng Shui

367287073_HEALTHWEALTHANDHAPPINESS50.png.03992f40f00dc4cd5e9453963bf0fa6c.png
Transparent Pricing & No Hidden Costs. No Purchase of Products.

 WHATSAPPx.gif.933b1f171b62310142ae17b5501fc685.gif Cecil Lee, +65 9785-3171 / support@geomancy.net

1861277562_UNDERSTANDINGMICRO.png.891959f03ef51f98ac6911212f3b30ed.png

 

House Hunting? We will help you select the most auspicious unit!
Learn More
696681019_geoamncysgicon.png.fb8c9b974fb87d32583cae8b9c22b372.png

The Experts in House Hunting

  • 1 year later...
  • Author
  • Staff

 

image.png.67308574c647b579382054a52a58ef61.png

Type in the unit number to find out

image.png.55692c0dd29722de4778b65038a89bed.png

 

OPTION 1
Please go to this link to check a unit number:
https://www.geomancy.net/content/personalised-reports/free-feng-shui-reports/house-number-report/about-house-number-report
[Need to create a free account to access it]

 

 

or
 

OPTION 2

Go to
URL: https://login.geomancy.net
On the blue navigation on the left, click under Free Reports | House Number.

  • Author
  • Staff

Units categorized as Good, Bad, and Ugly.

1. Keep in mind that while a geomancer may deem this development favorable, the quality of a unit also relies on its specific location within the development.

 

image.png.6a1342ebc3532d44bbe3fafe3ab28a79.png

2. Is your potential unit under the Good, the Bad or the Ugly?

image.png.6d4a74917ab7d962389d96ae7985fcd5.pngimage.png.bd794d1b7f491c9b83446ea6decded1c.png

3. Consider this scenario: the unit resembles a dilapidated 1,000 cc car that has seen better days. Not even a skilled Feng Shui Master could transform it into a desirable unit!

image.png.b996e340ebd63c1430835db31862a798.png

3.1. By the way, (above) this falls under Habit Number 11.

4. Under Habit 1, one possibility is by ranking one's bedroom type by stack/unit: 1st choice, 2nd choice etc... 

546183713_HABIT1B.png.6ce21c3762026c92d7356fb74f366862.png

4.1. Reference: Habit 1 can be found under this link:-

Create an account or sign in to comment

Recently Browsing 0

  • No registered users viewing this page.
Sponsored Link
 
Background Picker

Account

Navigation

Search

Search

Configure browser push notifications

Chrome (Android)
  1. Tap the lock icon next to the address bar.
  2. Tap Permissions → Notifications.
  3. Adjust your preference.
Chrome (Desktop)
  1. Click the padlock icon in the address bar.
  2. Select Site settings.
  3. Find Notifications and adjust your preference.