Jump to content
View in the app

A better way to browse. Learn more.

FengShui.Geomancy.Net

A full-screen app on your home screen with push notifications, badges and more.

To install this app on iOS and iPadOS
  1. Tap the Share icon in Safari
  2. Scroll the menu and tap Add to Home Screen.
  3. Tap Add in the top-right corner.
To install this app on Android
  1. Tap the 3-dot menu (⋮) in the top-right corner of the browser.
  2. Tap Add to Home screen or Install app.
  3. Confirm by tapping Install.
About Feng Shui at Geomancy.Net
Sponsored Link
 

The Citron Residences @ Marne Road at 1 Marne Road under Flying Star Period 8 Feng Shui

Featured Replies

Posted
  • Staff

The Citron @ Marne Road Site plan

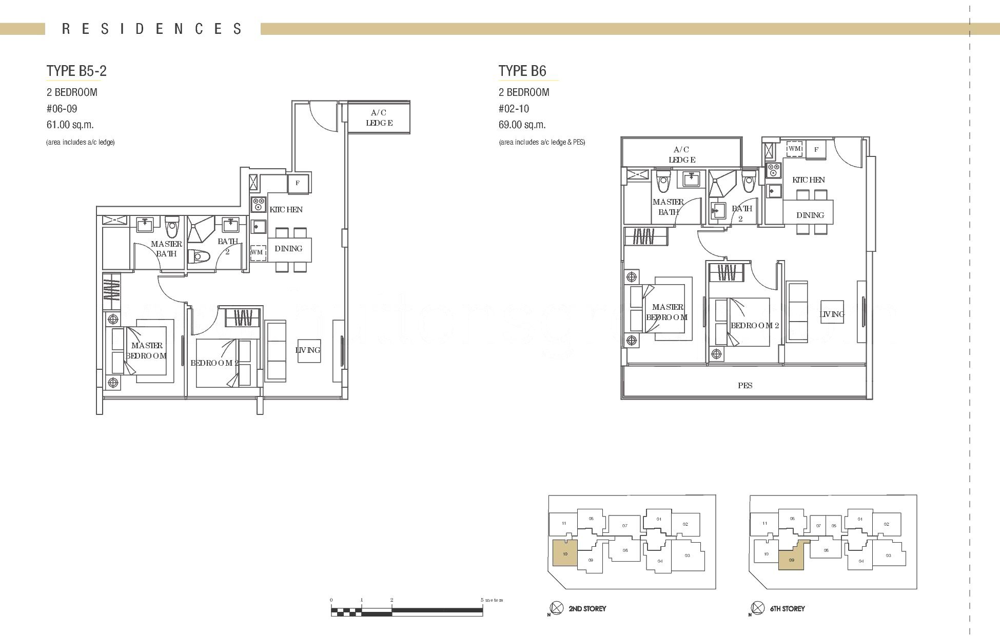
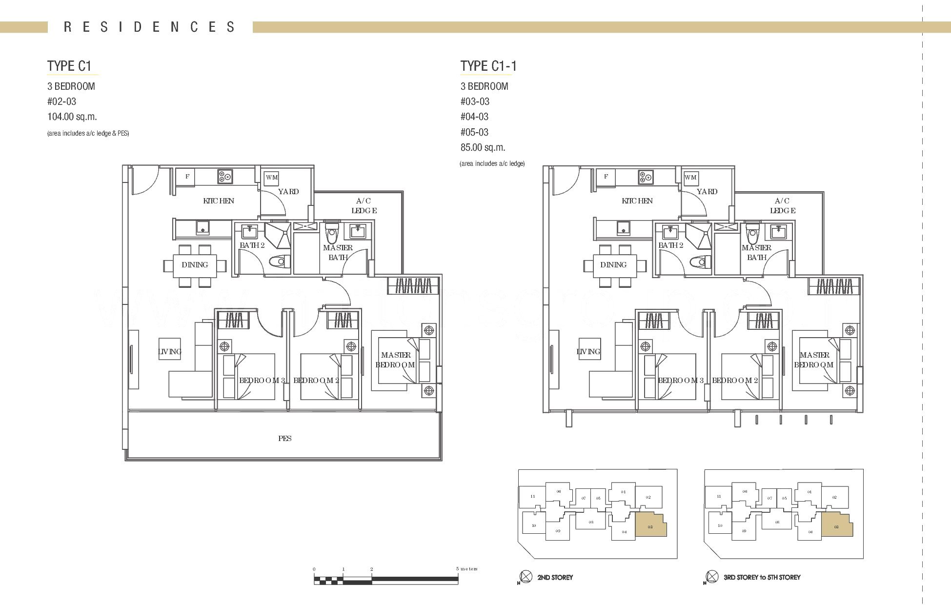
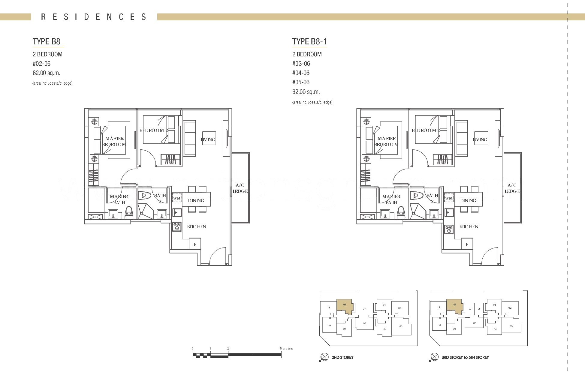
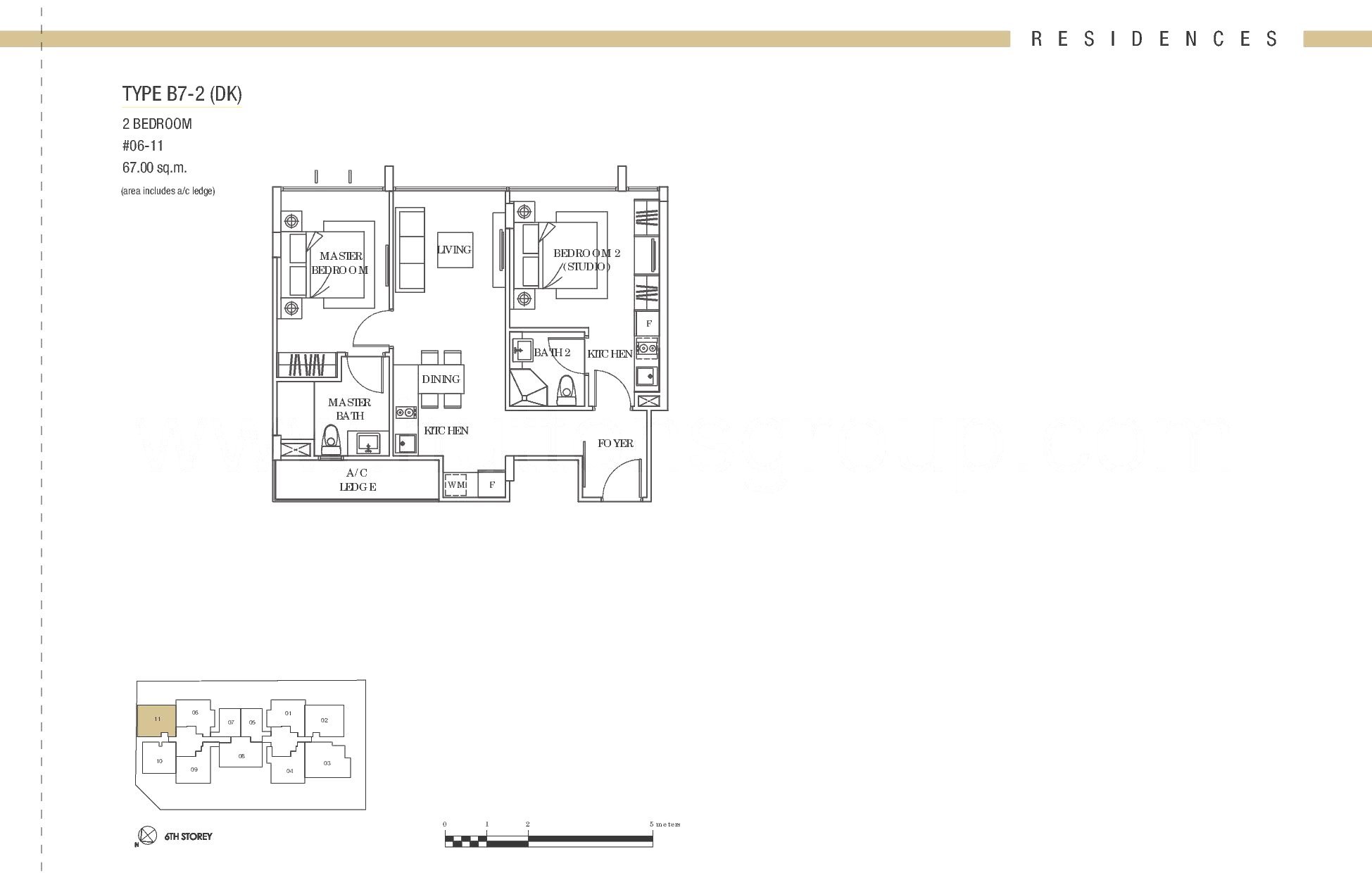
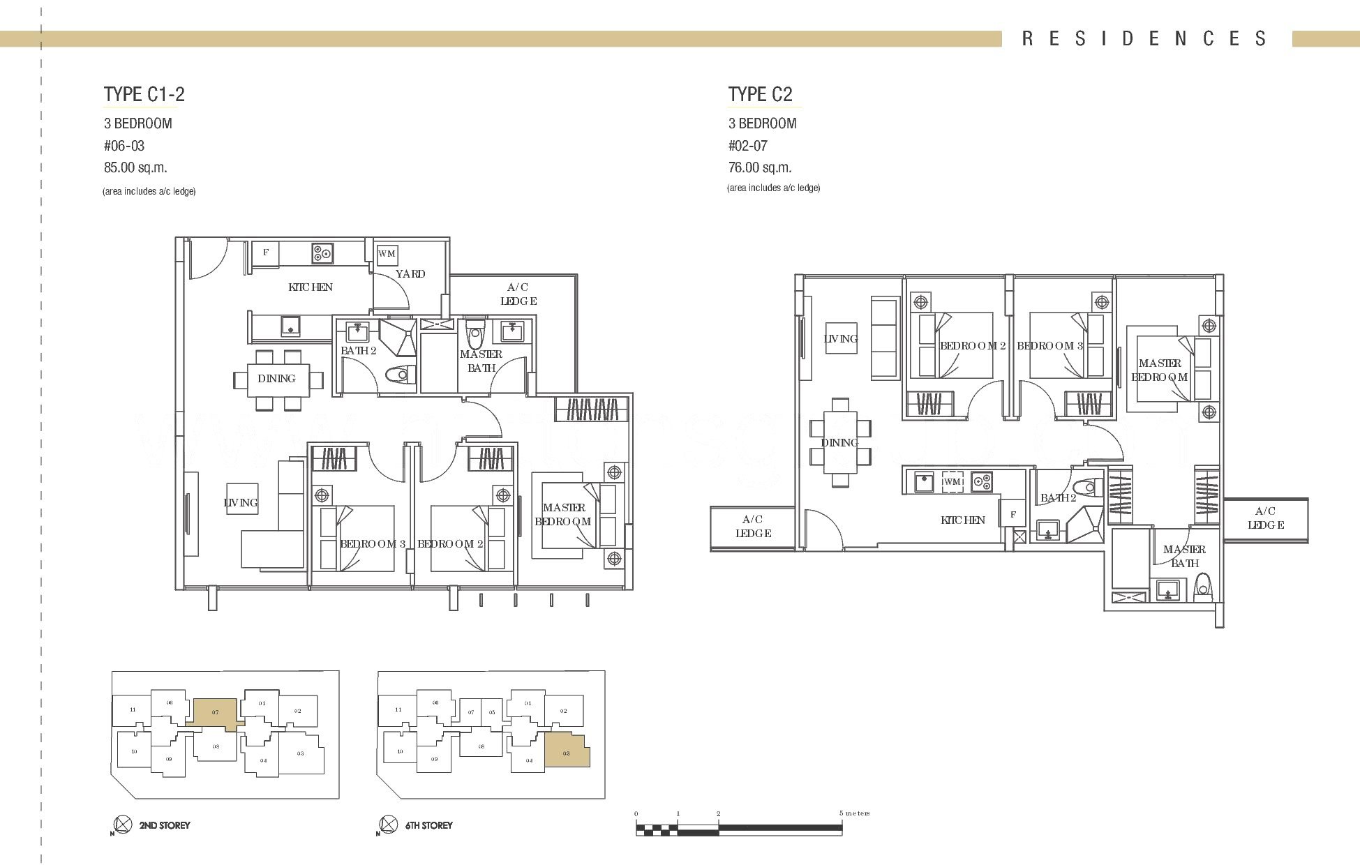
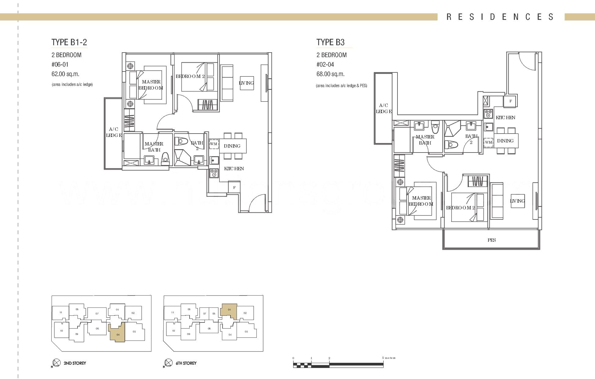
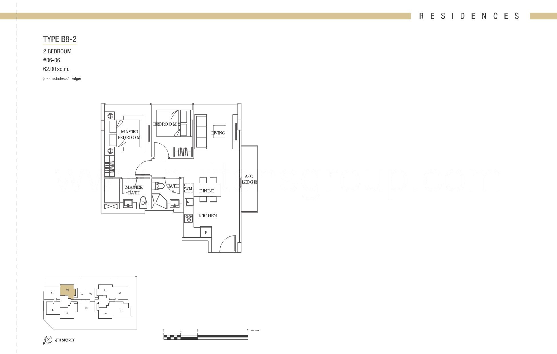
I went through the layout plans.
Generally, most or all of these layout plans are not prefect but at least they do not have major concerns with regards to Shapes and Forms Feng Shui...

Site plan.png

What is not shown is the common rubbish bin(s) at the lobby. Hopefully, it is not beside one's unit or facing it...

Majority of my concerns have more to do with common sense. Such as if the interior walls are gypsum wall; best to avoid the bed-head sharing the same wall as the mounted TV such as shown in this layout plan:-

THE CITRON REIDENCES (1).jpg

Other layout plans:

THE CITRON REIDENCES (2).jpg

THE CITRON REIDENCES (3).jpg

THE CITRON REIDENCES (4).jpg

THE CITRON REIDENCES (5).jpg

THE CITRON REIDENCES (6).jpg

THE CITRON REIDENCES (7).jpg

THE CITRON REIDENCES (8).jpg

THE CITRON REIDENCES (9).jpg

THE CITRON REIDENCES (10).jpg

THE CITRON REIDENCES (11).jpg

THE CITRON REIDENCES (12).jpg

THE CITRON REIDENCES (13).jpg

THE CITRON REIDENCES (14).jpg

 

  • 2 months later...

Create an account or sign in to comment

Recently Browsing 0

  • No registered users viewing this page.
Sponsored Link
 

Configure browser push notifications

Chrome (Android)
  1. Tap the lock icon next to the address bar.
  2. Tap Permissions → Notifications.
  3. Adjust your preference.
Chrome (Desktop)
  1. Click the padlock icon in the address bar.
  2. Select Site settings.
  3. Find Notifications and adjust your preference.