Skip to content
View in the app

A better way to browse. Learn more.

FengShui.Geomancy.Net

A full-screen app on your home screen with push notifications, badges and more.

To install this app on iOS and iPadOS
  1. Tap the Share icon in Safari
  2. Scroll the menu and tap Add to Home Screen.
  3. Tap Add in the top-right corner.
To install this app on Android
  1. Tap the 3-dot menu (⋮) in the top-right corner of the browser.
  2. Tap Add to Home screen or Install app.
  3. Confirm by tapping Install.
About Feng Shui at Geomancy.Net
Sponsored Link
 

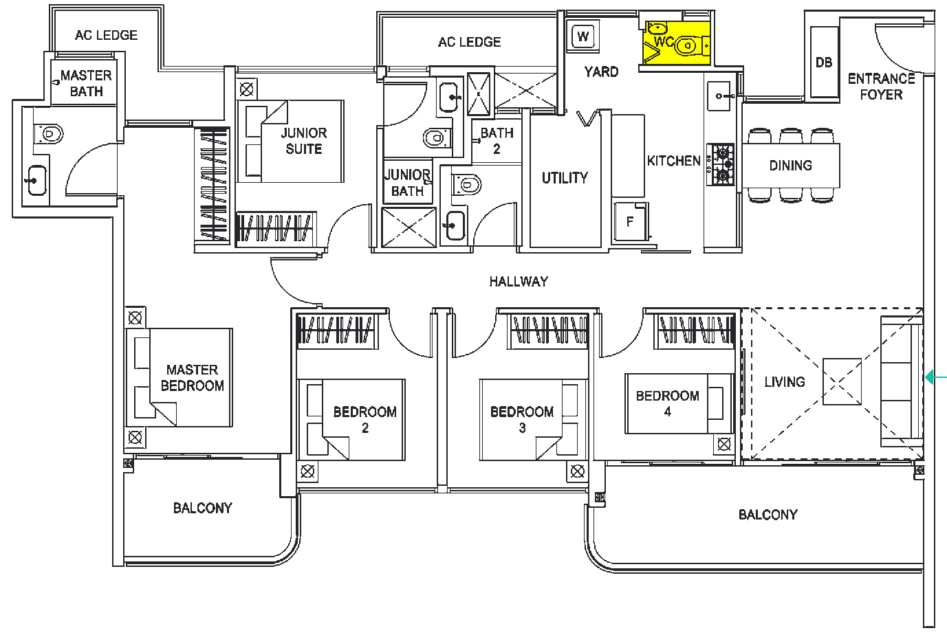
Can I seal-off my yard WC permanently? Good or bad Feng Shui?

Featured Replies

  • Staff

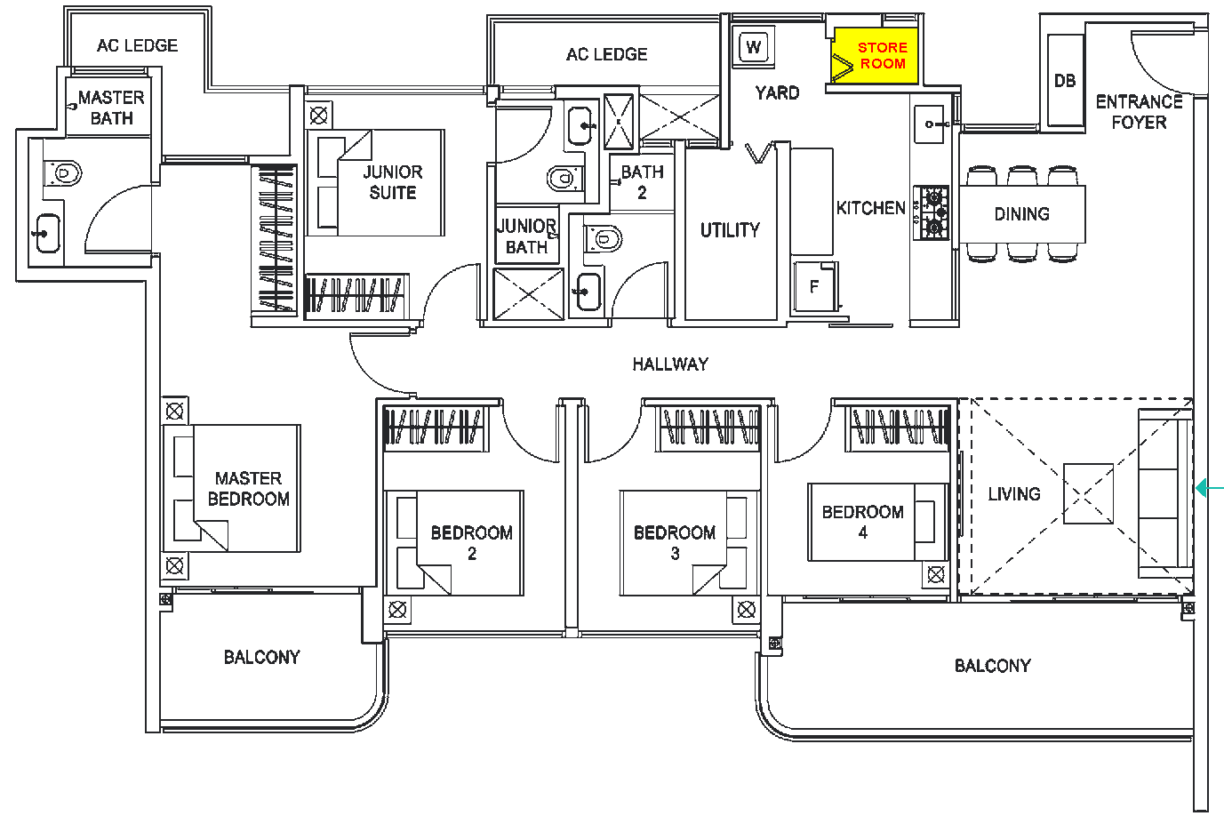
Case Study: Can I convert my yard WC into a store room?

1. The yard WC as highlighted in yellow:-

1285041515_Yardwc1.thumb.png.66d78b4750f11cacfda945110b6d09e4.png

2. Frankly, no issue if one wants to convert this yard WC into a store room.

3D0EBC2B-9453-4594-841D-228D075E5200.jpeg2.1. Generally it is considered a plus if the WC is beside the main entrance. As often the main entrance is in some instances critical to the Feng Shui of the home.

2.2. The concern is how the WC hole has been covered up.

2.2.1. For example, the correct way is to cap the WC hole as shown similar to this:-

2.2.2. Even if the capping is lower, this cap will still protude above the floor.

Yard wc2.png2.2.3. Thus if this is so, the floor has to be raised to make the new toilet cum store floor nice to look at. Instead of something like this protuding from the floor.

391370737_waterseal.thumb.png.8ae11961261cf5dca5f60dcbc4d08edc.png3. Another situation is that the yard WC ceiling is often low .. as low as the height of a condo kitchen ceiling.

3.1. If so, really, this store cannot really store much. Even that the volume of space is just too small.

4. Unfortunately, often the contractor just level the WC pipe/hole and place a plastic membrane over this WC hole.

4.1. And since the WC is no longer in use, the water trap seal does not act as a barrier for other unit's gas to flow into this hole.

867974221_waterseal1.thumb.png.1c57ff9d28b589c1d7f01c57a42aade9.png4.2. On many occassions, a new client of mine invited to to audit their home.

4.3. And coincidentally, when I reach this store room, I could smell a very bad "sewerage" type of stench in this yard store room.

  • Author
  • Staff

Can I convert this same Yard WC into a space to place a frontloading washing machine. (a washer + dryer) or a single top loading washing machine?

This is better than turning it into a store room with just a piece of membrane covering the WC hole.

The reason is that the frequent use of the washing machine means that this U trap will always be filled with water and thus a "permanent" seal.

Create an account or sign in to comment

Recently Browsing 0

  • No registered users viewing this page.
Sponsored Link
 
Background Picker

Account

Navigation

Search

Search

Configure browser push notifications

Chrome (Android)
  1. Tap the lock icon next to the address bar.
  2. Tap Permissions → Notifications.
  3. Adjust your preference.
Chrome (Desktop)
  1. Click the padlock icon in the address bar.
  2. Select Site settings.
  3. Find Notifications and adjust your preference.