Jump to content
View in the app

A better way to browse. Learn more.

FengShui.Geomancy.Net

A full-screen app on your home screen with push notifications, badges and more.

To install this app on iOS and iPadOS
  1. Tap the Share icon in Safari
  2. Scroll the menu and tap Add to Home Screen.
  3. Tap Add in the top-right corner.
To install this app on Android
  1. Tap the 3-dot menu (⋮) in the top-right corner of the browser.
  2. Tap Add to Home screen or Install app.
  3. Confirm by tapping Install.
About Feng Shui at Geomancy.Net
Sponsored Link
 

Featured Replies

  • Cecil Lee changed the title to HDB Woodgrove Ascent @ Woodlands (May 2021 Build-To-Order)
  • Author
  • Staff

HDB has a habit of posting the brochure around a month after this launch date.
In case I missed downloading it, please remind me if you are aware when it is available.
As I may be too busy and missed it.

Woodgrove-Ascent.jpg.30caeec1195b6ecd0e8d6cb2f229b543.jpg

Hope to review ASAP.
Thank you!!

Click the  [ Follow ] on the TOP right frame  - To follow future postings, here

  • 4 weeks later...
  • Author
  • Staff

Case Study 1: Avoid Low floors especially levels 2 to 4 of Block 373B Stack #977 as it directly faces the entrance.

In addition, based on pure common sense, especially in the evenings do expect the headlights of vehicles to shine into especially Master bedroom and other bedrooms of say like #02-977

E523B7B8-F7A7-4B05-BF01-9AC7B8E975FE.thumb.png.3acb944bfa0f2d08b2c071f884ec28b9.png

 

  • Author
  • Staff

Case Study 2: Should I be concerned if the emergency staircase exit door can be seen from my front door?

1. By law all emergency exit staircase door(s) must be closed at all time to prevent smoke from say a burning unit filtering into the staircase and hampering exit from these stairwell.

image.png.cca393f52693baff80bfdabbf586ab2c.png

2. Anyway, if one looks closely at this illustration: Even if at the front door of Unit 1059 can see into the staircase well, the only thing one can really see is the actual staircase door. Not the stairs! Thus what is the problem? No issue right?

image.png.31625825487d35489e9afd7d4c2cf82e.png

3. Okay, okay! Understand. Once Minimum Occupation Period or M.O.P. is up, there can be "fear mongering" potential buyer and or their Feng Shui Master who may see otherwise. Then too bad... next!

  • Author
  • Staff

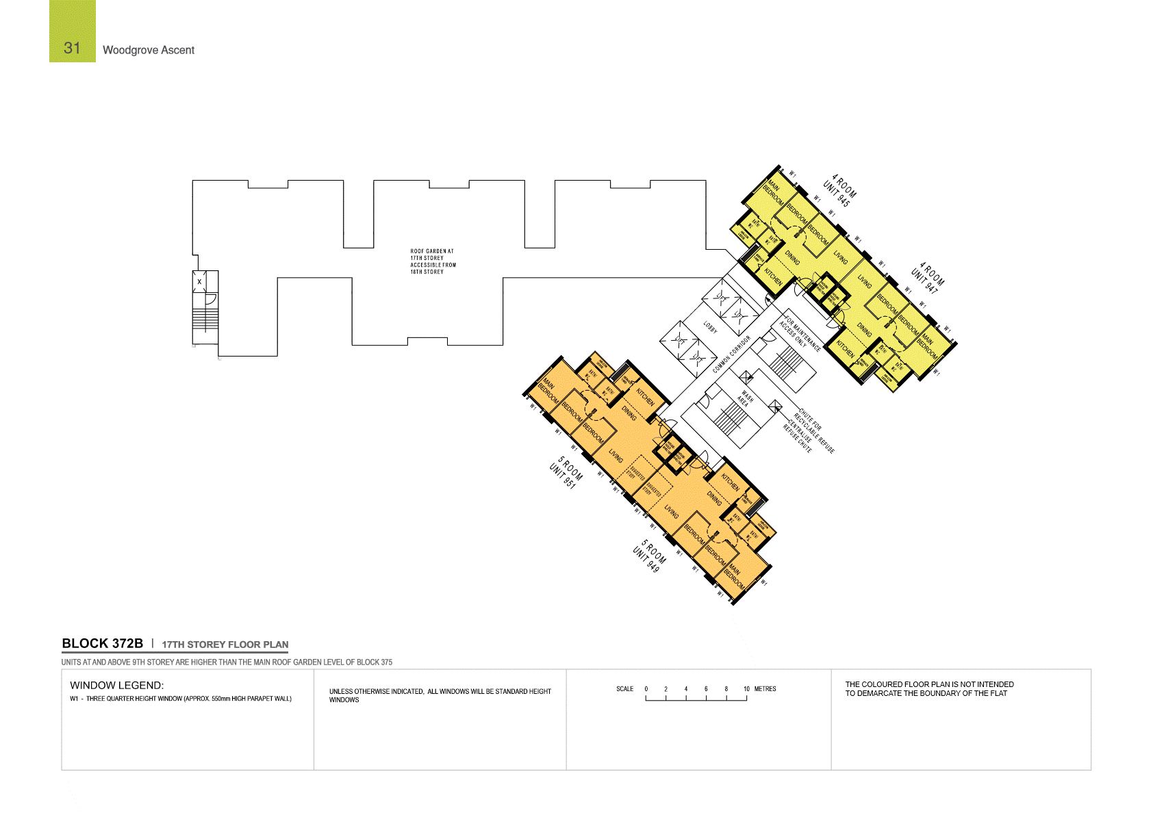
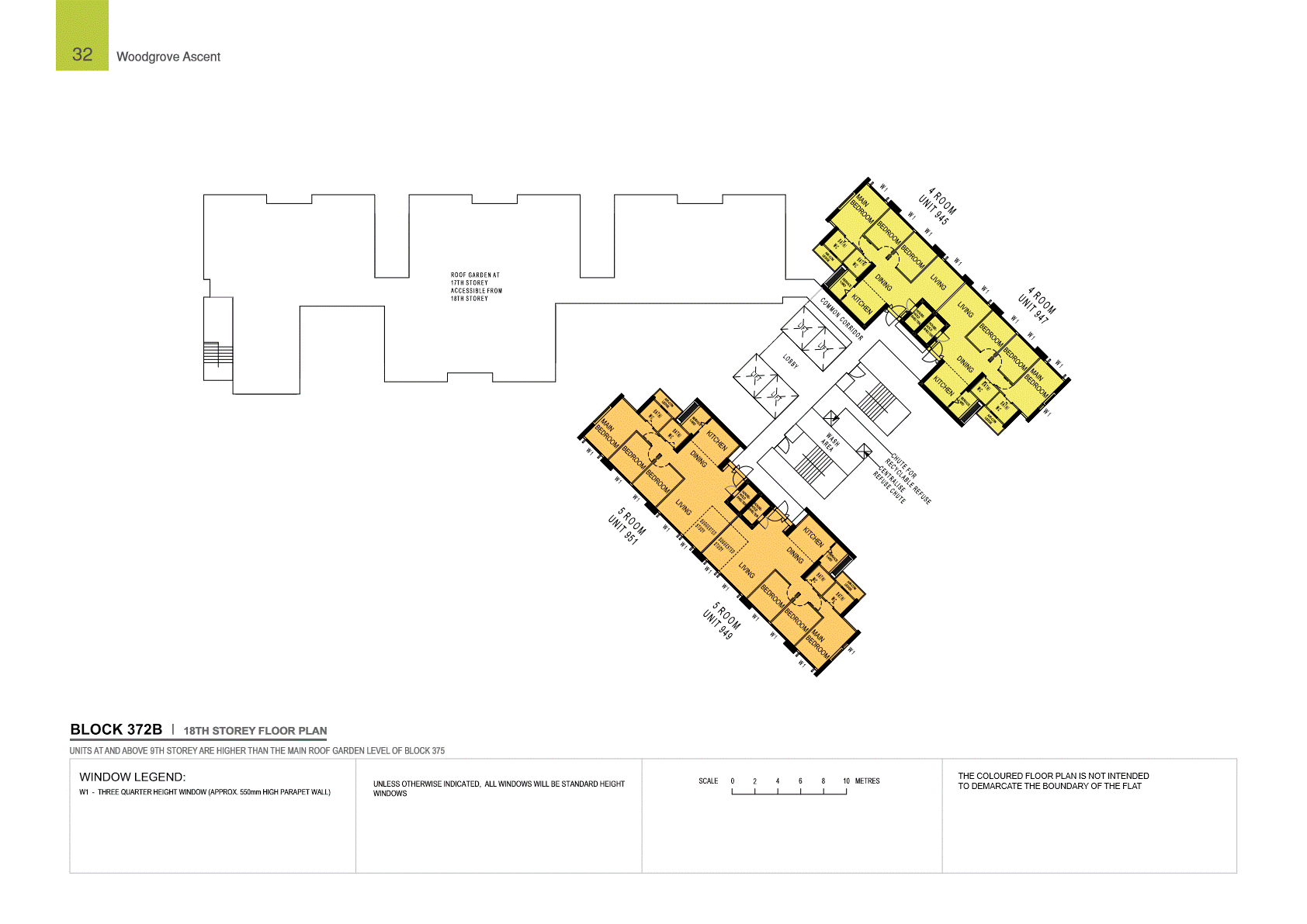
Case Study 3: Should I be concerned if the front door has a view of the two common bins?

1.  Generally, it is good that the planners of this development sandwich majority of the two common bins between the two emergency exit staircase/stairwell.

2. However, unfortunately not so for Stacks #971 and #973. 

3. As what separates both the common bin lobby and the two open air common bins (common and recycle) can be seen from the front doors of both these stacks/units:-

1176511627_1commonbinsWoodgrove_Ascent_30.thumb.png.de20fa4029b0397e9d0b934209a38125.png

4. The red dots shown above are usually the half-height safety railings and often not a solid wall to allow ventilation of the common bin lobby. Well this is often what was seen in previous developments. Well hopefully the HDB has changed this.. But in my opinion be safe the sorry.

5. For example Block 374B shows the block's common bin lobby sandwiched between two emergency exit stairwell = GOOD! 946870748_1Woodgrove_Ascent_40x.thumb.png.0372f36cdfa1c776fc99b7d07d6a302e.png

6. Oh Dear! Not fair! Block 373A Stacks 953 and 955 also share the same concern:-

 1040838649_11Woodgrove_Ascent_25.thumb.png.4cf77850a2cd1a169320bcca72280602.png

7. This is a NO, NO! If one encounters someone who only "SWEARS" by the Front Door. And even more so, if one hires a Feng Shui Master who only EATS, SLEEP, EAT and SLEEP only on the front door. They are called: THE CONSERVATIVES! 

7.1. Cannot understand? How do you Feng Shui your home? Use your front door?
Please check out this link:-

 

  • Author
  • Staff

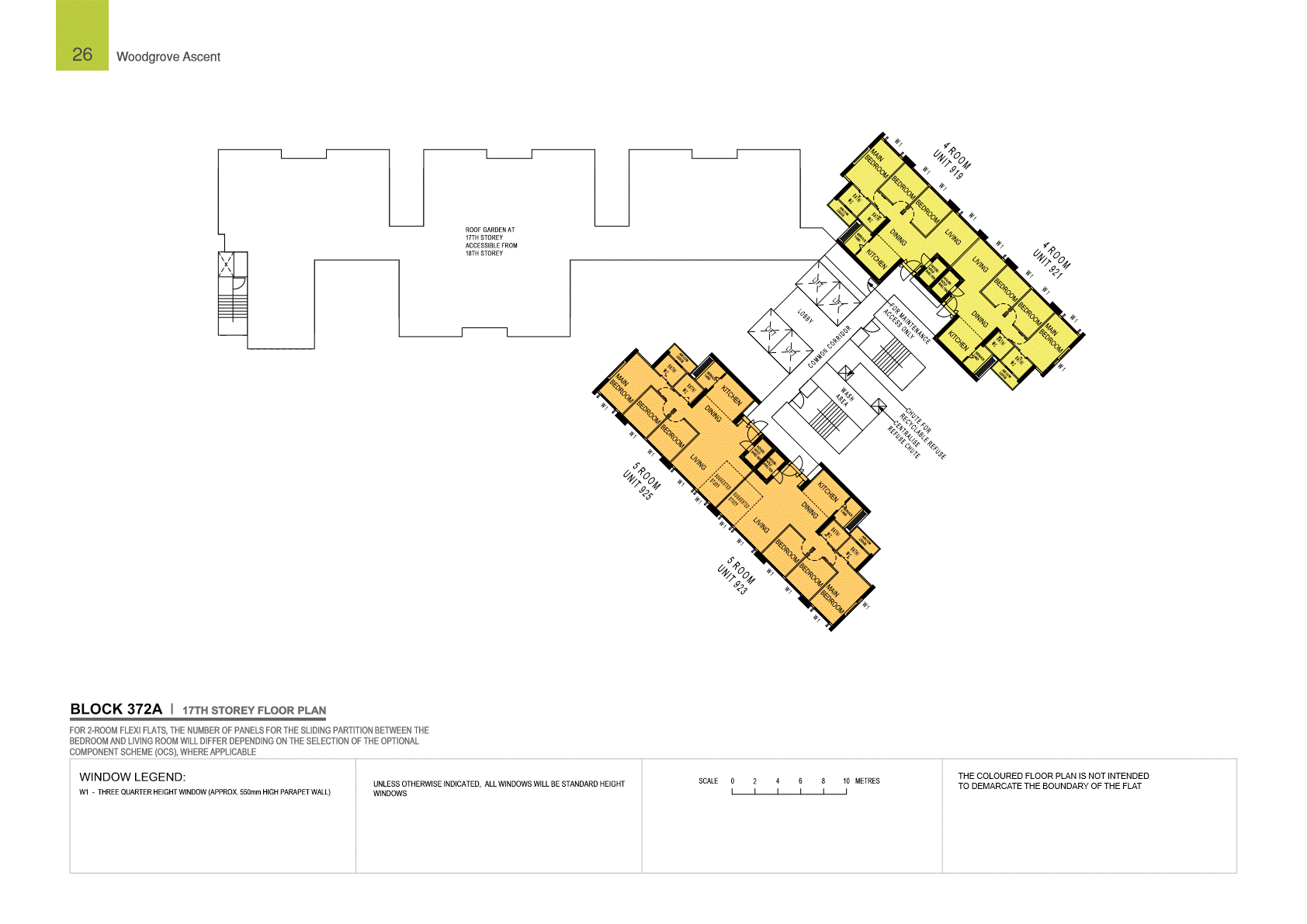
Case Study 4A: Are Stacks/units #919 and #925 of Block 372A front door facing a long corridor?

1. Generally some may still feel that the front doors face a long corridor. Thus it is rather subjective.

2. Often, if we feel that it is not long; what is there during a re-sale for someone else to feel concerned about it?

1841303320_1longcorridorWoodgrove_Ascent_16.thumb.png.2126cb738456dfb2be671fd6b744cb4f.png

Case Study 4B: In theory even if the front door of #925 is slightly off-set from the corridor, both #925 and #919 does face each other.

image.thumb.png.07eb9bec456b94831a0478d80b8cca11.png

3. Fortunately, in a "High Noon" situation, the doors are really far away. Thus even in many Western movies, both don't stand so far away to draw their guns. Furthermore, handguns (revolvers) aren't that accurate during a duel from such long distances. Got-it, get it?

4. Okay, wait till one buy a condo unit. Most condo unit's front door REALLY faces a neigbour's in CLOSE-proximity. Even as close as 1.5 metres from each other! How's that for a close-up HIGH NOON?

image.thumb.png.539a0e7bc2134828f8cf0c4b68aafec9.png

"McFly : Back to the Future III "

  • 3 years later...
  • Author
  • Staff

How can we help you today?

GET EXPERT HELP: IMPROVE YOUR HEALTH, WEALTH & HAPPINESS TODAY

Comprehensive Home Package [A.]: On-site or [B.]: Off-site for HDB / Condo / EC & Landed Properties for New/Re-Sale House or facing financial/ marriage/ relationship/ health issues

 

Do you offer a 1 visit On-site audit? How much?

 

" As much as we see, Geomancy.net has great web presence built up over the years and is seen as one of the SG market leaders in residential house audit. "

Success starts with good Feng Shui

367287073_HEALTHWEALTHANDHAPPINESS50.png.03992f40f00dc4cd5e9453963bf0fa6c.png
Transparent Pricing & No Hidden Costs. No Purchase of Products.

 WHATSAPPx.gif.933b1f171b62310142ae17b5501fc685.gif Cecil Lee, +65 9785-3171 / support@geomancy.net

1861277562_UNDERSTANDINGMICRO.png.891959f03ef51f98ac6911212f3b30ed.png

 

House Hunting? We will help you select the most auspicious unit!

image.thumb.png.286b0412312152330ebc65aefb231f73.png
Learn More
696681019_geoamncysgicon.png.fb8c9b974fb87d32583cae8b9c22b372.png

The Experts in House Hunting

 

 

AUSPICIOUS DATES FOR ONE OR TWO PERSONS

Please visit 30 Days Auspicious Date for ONE or TWO Person(s) - FengShui.Geomancy.Net

+++

image.thumb.png.3155f970bf3d04526ce487f2f859fdea.png

 

Related: Non-Religious Chinese Customs For New Re-Sale Home

 

Create an account or sign in to comment

Recently Browsing 0

  • No registered users viewing this page.
Sponsored Link
 

Configure browser push notifications

Chrome (Android)
  1. Tap the lock icon next to the address bar.
  2. Tap Permissions → Notifications.
  3. Adjust your preference.
Chrome (Desktop)
  1. Click the padlock icon in the address bar.
  2. Select Site settings.
  3. Find Notifications and adjust your preference.