Jump to content
View in the app

A better way to browse. Learn more.

FengShui.Geomancy.Net

A full-screen app on your home screen with push notifications, badges and more.

To install this app on iOS and iPadOS
  1. Tap the Share icon in Safari
  2. Scroll the menu and tap Add to Home Screen.
  3. Tap Add in the top-right corner.
To install this app on Android
  1. Tap the 3-dot menu (⋮) in the top-right corner of the browser.
  2. Tap Add to Home screen or Install app.
  3. Confirm by tapping Install.
About Feng Shui at Geomancy.Net
Sponsored Link
 

Featured Replies

Posted
  • Staff

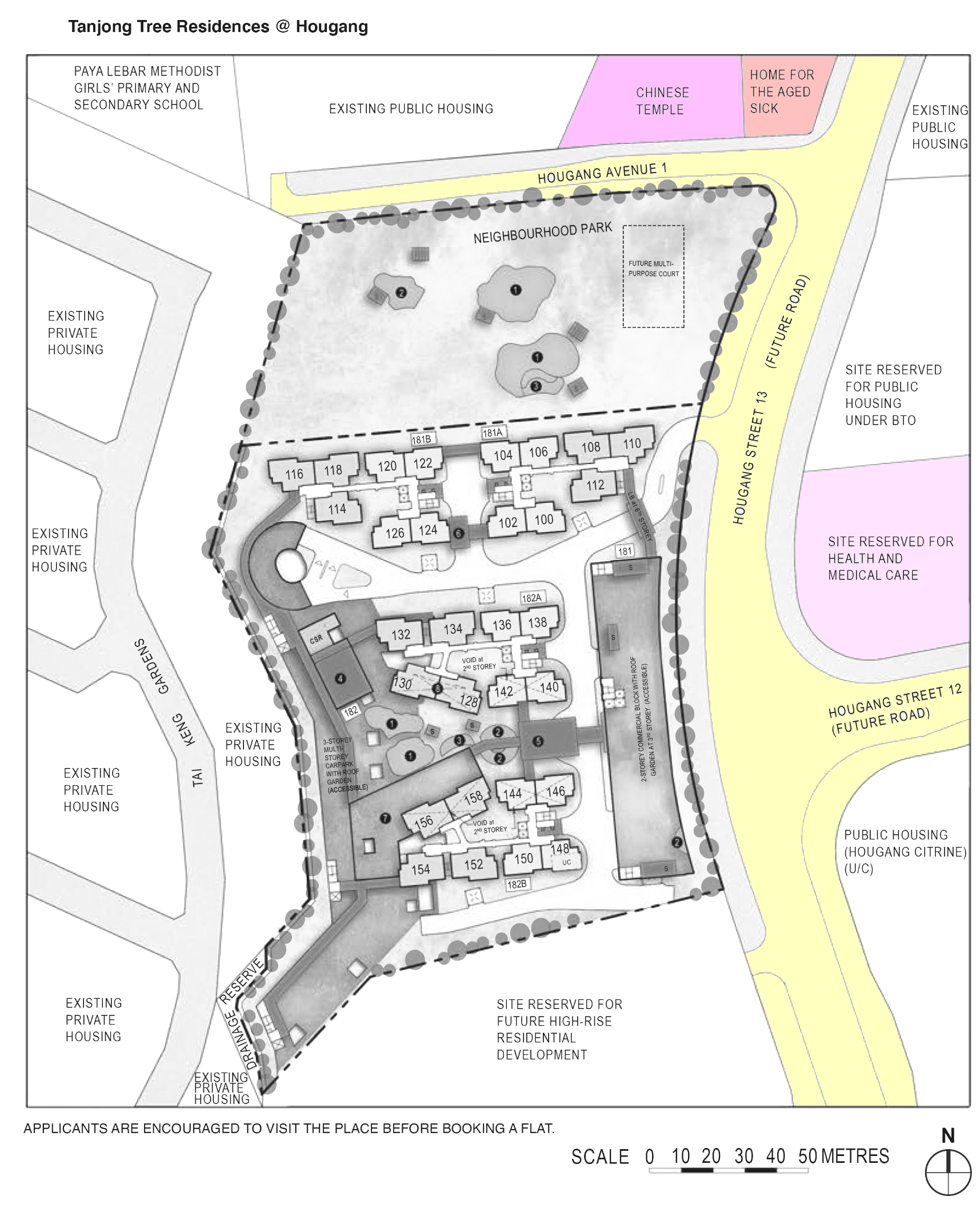
Tanjong Tree Residences Sales Brochure: tanjong-tree-residences-hougang.pdf

450093644_1PERIOD9TEMPLATEX.png.d7944680cc341d42427d25554a9f86db.png
Estimated Completion Date is 2nd Quarter 2026

Tanjong Tree Residences @ Hougang (Nov 2021 Build-To-Order) Hougang

Bounded by Hougang Street 13, Tanjong Tree Residences @ Hougang  will comprise 4 residential blocks ranging from 9 to 12 storeys in height. You can choose your home from 300 units of 4- and 5-room flats.

The name 'Tanjong Tree Residences @ Hougang' pays tribute to the Tanjong Tree, a heritage tree located in the vicinity. The development offers a wide range of green spaces, such as the lushly landscaped roof gardens atop the commercial block and the Multi-Storey Car Park, and the central courtyard where you can unwind and interact with your neighbours. You can enjoy facilities such as children’s playgrounds and adult and elderly fitness stations, and conveniently access amenities like the childcare centre, eating house, supermarket, and shops located in the development. Please refer to the site plan for the facilities provided in the development. Facilities in this development will be accessible by the public.

  • Author
  • Staff

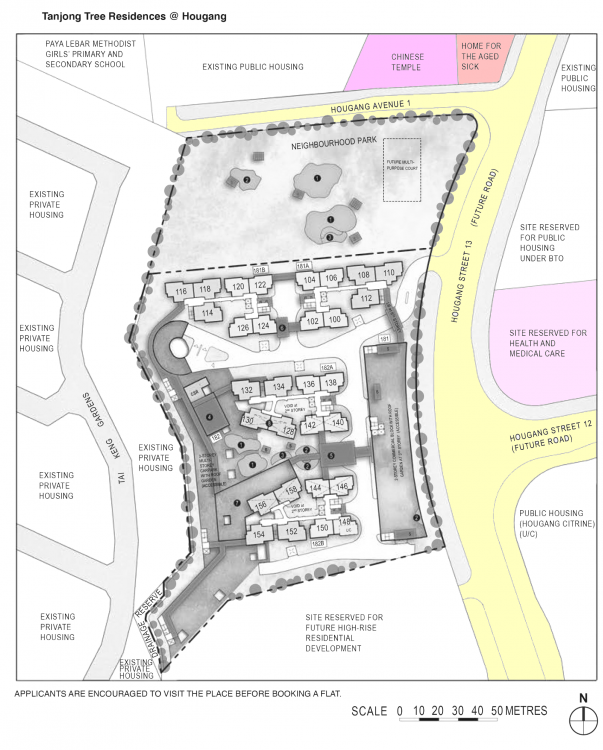
Case Study 1: The bad news? Some stacks/units facing especially the Chinese Temple + Home for the Aged Sick. Okay not so bad as the Multi Storey Car Park (MSCP) acts a a buffer to the Health and Medical Centre.

The good news? Okay it is either separated by both the neighbourhood park + road or just a road such as Hougang Street 13.

230986760_1ChinesetempleandMedicalcentre.thumb.png.eabf08112dab2edd9c71014c63e2b3c9.png

  • 1 year later...
  • Author
  • Staff

WHICH UNITS ARE LUCKY?
image.png.322619467450bea7b53a39edb3064682.png

Part 1: How is the luck of the Internal Feng Shui of this unit?
Part 2: External Feng Shui luck? 
Part 3: How suitable is the unit - Frontage, Kitchen & Main Bedroom?

 

PART 1 = 35%

image.png.919f86ac4068816fabf147212572570b.png
Depends on the Internal Layout & Sectors - How Lucky?

XINTERNAL.gif.d9af8924f0296c58ffa61955890ffc1e.gif

1PERIOD9TEMPLATEX.png.b5d1f23f222c609c348a8b89416a0448.png

Expected Lease Commencement Date is 1st March 2028
+++

There are six facing directions for this development: N1, S1, N3, S3 NW2 & SE2

with majority @ N1 or S1

TANJONGTREERESIDENCES-FLYINGSTARTOTAL.thumb.jpg.b4f342c4d133082f69a34ccc6e555d12.jpg

 

+++

 

Good, Better, Best!


image.png.eca59c69e7fbe6bb056ab7f13cf0332b.pngS1 = Very Lucky. Frontage has the auspicious double #9's. From 2024 till 2043.

 

+++

 

image.png.eca59c69e7fbe6bb056ab7f13cf0332b.pngN3 = Very Lucky. Frontage has the auspicious double #9's.

 

+++

 

image.png.eca59c69e7fbe6bb056ab7f13cf0332b.pngNW2 = Very Lucky. Frontage has the auspicious double #9's. From 2024 till 2043. 

 

 

+++

 

The Rest!

 

 

image.png.7545db4b1821123891bf5c0fbd790cb9.pngN1 = Less Lucky as wealth luck [Double 9's] wasted at the rear.

 

 

image.png.7545db4b1821123891bf5c0fbd790cb9.pngS3 = Less Lucky as wealth luck [Double 9's] wasted at the rear.

 

+++


image.png.7545db4b1821123891bf5c0fbd790cb9.pngSE2 = Less Lucky as wealth luck [Double 9's] wasted at the rear.

 

 

 

++++++++++++++++++++++++++++++++++

 

 

image.png

image.png.a1a73425ff4ede201a9afe4209a53221.png

But also need to review/consider the individual Internal Layout Plan 
& this is just part of the many considerations in a home purchase.

However the above does not take into consideration things like:
Kitchen/Stove at Inauspicious Fire @ Heaven's Gate
or Poison arrow aimed towards the unit, proximity to common bin etc..

+++++++++++++++++++++++++++
+++++++++++++++++
++++

 

PART 2 = 35%

image.png.b20d51d387ffc3fecfd1ca4536b1d2af.png
Location, location, location?
image.png.6cb715af858bd5c21b1958f73465a364.png

Sha Qi? Poison Arrow? 

image.png.592f31c61571e537bae1ecd4dc4ccd58.png


Watch Your Front, Sides & Back!

 

 

POOR SCORE? THESE ARE SOME CONCERNS:

Sha Qi or Poison arrow(s) from Sharp Corner(s)
天斩
煞 (tiān zhǎn shà) = Tian Zhan Sha etc...

X1EXTERNAL.gif.97cebbef84198f7d87e273035fbfb23c.gif

+++++++++++++++++++++++++++
+++++++++++++++++
++++

 

PART 3 = 30%

image.png.c5d88140dad56cb31762d8acd4313636.png
How Suitable to breadwinner?

image.png.833e364ba94fb435c80af7e9c424387c.png

image.png.a374728bf11c51f8a0f2994ce8dcbdf2.png
Please note that has yet to take into consideration:
1. How suitable is the unit to the main breadwinner &
2. External Shapes and Forms of the unit

image.png.eb1572b92ac460af725d8373f85eb51e.png

TOTAL SCORE = 35 + 35 + 30 = 100%


Get Expert Help:

++++++++++++++++++
+++++++++

How do you Feng Shui your home? Use your front door? Who are the Conservatives & the Modernist?

 

  • Author
  • Staff
image.png.67308574c647b579382054a52a58ef61.png

Type in the unit number to find out

image.png.55692c0dd29722de4778b65038a89bed.png

 

OPTION 1
Please go to this link to check a unit number:
https://www.geomancy.net/content/personalised-reports/free-feng-shui-reports/house-number-report/about-house-number-report
[Need to create a free account to access it]

 

 

or
 

OPTION 2

Go to
URL: https://login.geomancy.net
On the blue navigation on the left, click under Free Reports | House Number.

  • Author
  • Staff

BEWARE OF THIS AGE-OLD FENG SHUI SCAM424511252_blacksheep.jpg.f9b140c26a45a6f4af8a26d90559d5a3.jpg 2067630596_FAKE(8).png.a4a889053737bed4b9f1b4db20d9dbc6.png

01 say no to feng shui commercial products.png

 

BEWARE OF THIS AGE-OLD FENG SHUI SCAM

image.png.efcbfc100d6fc4da6a17f5a188322b9d.png

No wonder, Feng Shui suffers from a bad reputation, today

Many Feng Shui Masters are a Feng Shui Store. Their core business is not authentic Feng Shui.
But rather making big bucks by selling lots of useless commercial products in the name of Feng Shui.

Please give me a good reason not to buy such products. Here's one:

2067630596_FAKE(8).png.a4a889053737bed4b9f1b4db20d9dbc6.png

01 say no to feng shui commercial products.png

424511252_blacksheep.jpg.f9b140c26a45a6f4af8a26d90559d5a3.jpg

92168278-3B3E-456C-8A41-862E7EDA6537.jpeg
Okay, the above was written prior to the knowledge of COV-19. Here’s to another reason, why.

Many Feng Shui Masters and their shops are FAKES!

On Saturday, 14 March 2020, a WhatsApp from a past client

53D9DC91-B611-4142-B234-151EA0AB99EF.thumb.png.9aedba5135b3a44a8dc1e1846e5e7ba8.png7541700A-8CF1-4B59-ACCC-C98B1CB02185.png.d2002fe17c44cbf6ade5cfeb59b437ff.png

P.S. Frankly, I was just being extremely polite. Actually if one got the hint, as the British always say just throw the "bloody" thing away!

FAKE (3).png

686149230_BULLSHITPRODUCTS.gif.e3d6c0b7c5df6bbae5573ebb31528c56.gif

ASK! MUST I BUY FROM YOU?

 

FAKE (7).png

When the buying Stops! The selling Can!

 

EARNEDMILLIONSBUTSAIDNO.png.2a946b39453910340c6a28b672c79dc6.png

Yes! Ask: "Must I buy from YOU?"

  • 2 weeks later...
  • 1 month later...

Create an account or sign in to comment

Recently Browsing 0

  • No registered users viewing this page.
Sponsored Link
 

Configure browser push notifications

Chrome (Android)
  1. Tap the lock icon next to the address bar.
  2. Tap Permissions → Notifications.
  3. Adjust your preference.
Chrome (Desktop)
  1. Click the padlock icon in the address bar.
  2. Select Site settings.
  3. Find Notifications and adjust your preference.