Skip to content
View in the app

A better way to browse. Learn more.

FengShui.Geomancy.Net

A full-screen app on your home screen with push notifications, badges and more.

To install this app on iOS and iPadOS
  1. Tap the Share icon in Safari
  2. Scroll the menu and tap Add to Home Screen.
  3. Tap Add in the top-right corner.
To install this app on Android
  1. Tap the 3-dot menu (⋮) in the top-right corner of the browser.
  2. Tap Add to Home screen or Install app.
  3. Confirm by tapping Install.
About Feng Shui at Geomancy.Net
Sponsored Link
 

HDB Aranda Breeze @ Yishun (Nov 2022 Build-To-Order) + unit should not face the spire of a church under this Case Study 2 - Which units are lucky?

Featured Replies

  • Staff

Sales Brochure: aranda-breeze-yishun.pdf

01_perspective.jpg

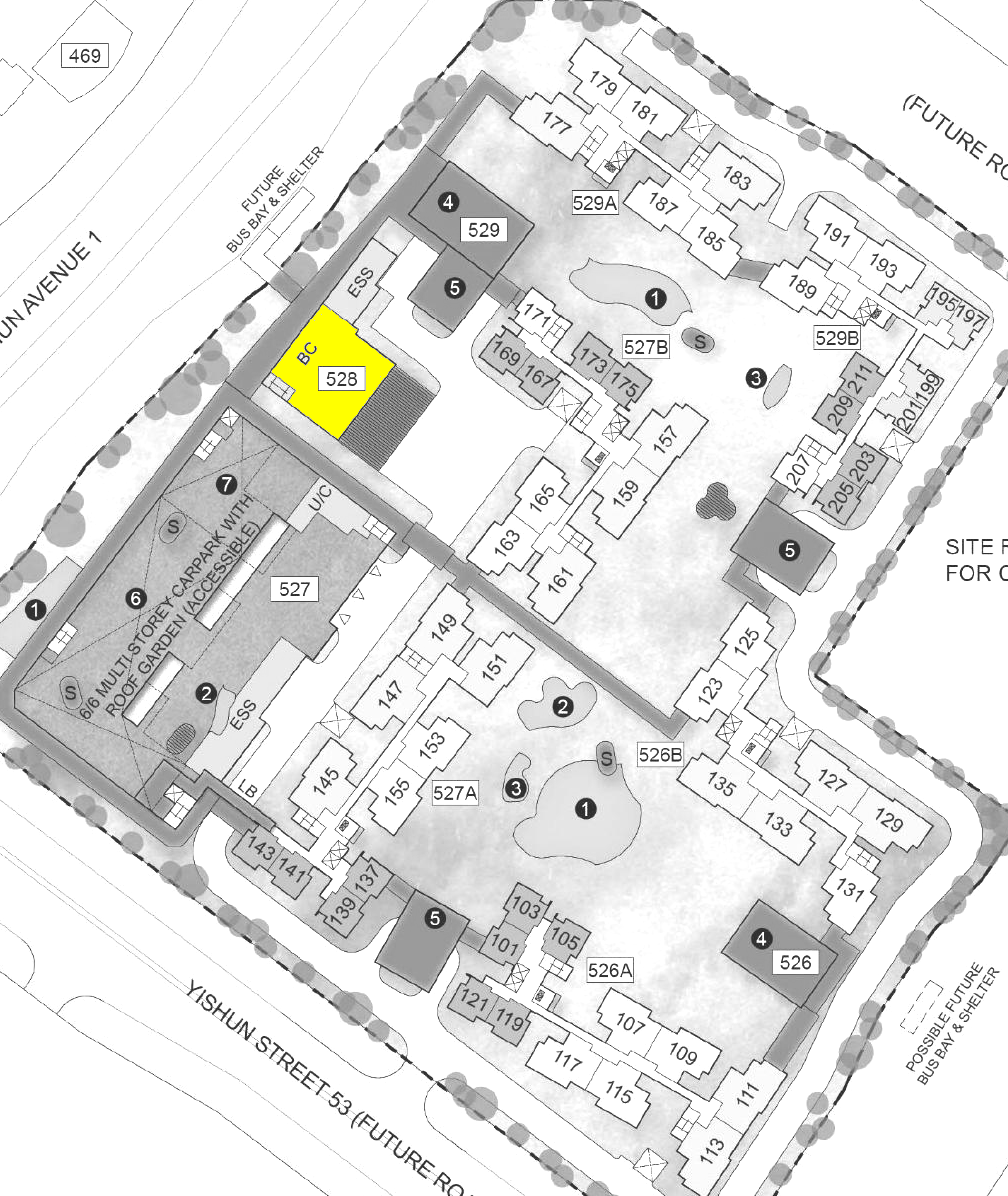
Aranda Breeze @ Yishun  is bounded by Yishun Avenue 1 and Yishun Street 53. The development comprises 6 14-storey blocks. 2 of these blocks will house some rental flats. You can choose from 699 units of 2-room Flexi, 4-, and 5-room flats.

02_perspective.jpgThe name ‘Aranda Breeze @ Yishun’ describes the development’s location near the breezy Lower Seletar Reservoir as well as other nearby parks. Just like the nearby Miltonia Breeze @ Yishun and Vanda Breeze @ Yishun, Aranda Breeze @ Yishun is also named after an orchid. Nature motifs will be throughout Aranda Breeze @ Yishun, such as on the walls of communal spaces to aid wayfinding.

Set among lush greenery at the centre of the development will be fitness corners, children’s playgrounds, and resting shelters, which provide recreational and communal spaces for the residents. The Multi-Storey Car Park comes with a roof garden and a childcare centre at the ground level.

03_siteplan_ys_n5c12.jpgtownmap_ys_n5c12.jpg

aranda-breeze-yishun.pdf

  • Author
  • Staff

Case Study 1: Flying Star Feng Shui

761790590_1PERIOD9TEMPLATEX.png.bd0bc5bc745e25501426e5524c75329c.png

Expected Completion Date is on 2nd Quarter 2028 under Period 9 Feng Shui

2083444782_ArandaBreeze.thumb.png.a0c3d51886329cf9f0a7296f2bb3ffda.png

1772280793_1FLYINGSTARTOTAL.thumb.png.277df963c4e1eb936825ce4f2e8f088f.png

 Case Study of Period 9 Stacks/units:


How do you Feng Shui your home? Use your front door? Who are the Conservatives & the Modernist?

 

  • Author
  • Staff

Case Study 2: Okay, at least it is not a Chinese Temple! Phew!

80176243_1church.thumb.png.f2d89be1d7499139d76241e4a49a6017.png
 

Hopefully standing inside the unit would not face the spire or the cross.

AE9CAE46-1085-495B-82DB-D17716985322.jpeg

E81C2E24-89A9-41EF-8BA6-6E098EFFF459.jpeg
 

Unit should not face this triangular feature or it’s cross

5542D874-C8F7-4CC0-B302-A8BFA0E3CEEC.jpeg

A5A2679F-8620-48E8-9415-E5A44E48B9AA.jpeg
 

Unit should not face this sharp tip nor it’s cross…

A029A0D6-58A7-4A3B-B787-8334C84CAA2A.jpeg

  • Author
  • Staff

Case Study 3: Inauspicious Fire @ Heaven's Gate

Sample findings show 151,  153, 155, 157. 159 & 161 affected by the above.

1989272832_1fireatheavensgate.png.10914ca0fb1a643b4b6eb04c7b8f270d.png

Okay, the above are not exhaustive. As I can easily spot a further three more stacks with the same concerns. Can you spot these?

What is Fire @ Heaven's Gate:

 

  • Author
  • Staff

Case Study 4: Luckily there are no stack numbers like 114 or 144!

600978829_1nonexistent14or44.png.c20969ce51a7836a303d1d385d77849f.png

However there is only 141 and so far not really that distinctive. So often a non-issue with such a number!

  • Author
  • Staff

Case Study 6: HDB Aranda Breeze employs the Pneumatic Waste Conveyance System or PWCS for short.

The tell tale sign is a bin centre and there are no service roads to each block where a waste disposal truck could reverse to.

510762509_1bincentre.thumb.png.2b7c026c63260d5f968abeb4f0953e7c.png

 

 

Is there a concern with this Pneumatic Waste Conveyance System?

Understand more... as it is far from being a "Smart" system. Rather, it relies heavily on utmost consideration of residents in the estate... else

  • Author
  • Staff

The Experts in House Hunting
696681019_geoamncysgicon.png.fb8c9b974fb87d32583cae8b9c22b372.png

 

What Others Say About Us

" As much as we see, Geomancy.net has great web presence built up over the years and is seen as one of the SG market leaders in residential house audit. "

Success starts with good Feng Shui

426351309_HEALTHWEALTHANDHAPPINESS50.png.0c81ed493d411e333f5788bdf56ec927.png

 WHATSAPPx.gif.933b1f171b62310142ae17b5501fc685.gif Cecil Lee, +65 9785-3171 / support@geomancy.net

586578107_UNDERSTANDINGMICRO.png.f7a1cde8a397e509d4bdb502f8d1097a.png

  • Cecil Lee changed the title to HDB Aranda Breeze @ Yishun (Nov 2022 Build-To-Order) + unit should not face the spire of a church under this Case Study 2
  • Cecil Lee pinned this topic
  • 5 months later...
  • Author
  • Staff

25th Anniversary in 2019

1494810678_GEOMANCYNETWAYBACKMACHINE.thumb.png.29fb2c1b71ff68ad29e0fd08bafd1c45.png

How can we help you today?

GET EXPERT HELP: IMPROVE YOUR HEALTH, WEALTH & HAPPINESS TODAY

Comprehensive Home Package [A.]: On-site or [B.]: Off-site for HDB / Condo / EC & Landed Properties for New/Re-Sale House or facing financial/ marriage/ relationship/ health issues

 

Do you offer a 1 visit On-site audit? How much?

 

" As much as we see, Geomancy.net has great web presence built up over the years and is seen as one of the SG market leaders in residential house audit. "

Success starts with good Feng Shui

367287073_HEALTHWEALTHANDHAPPINESS50.png.03992f40f00dc4cd5e9453963bf0fa6c.png
Transparent Pricing & No Hidden Costs. No Purchase of Products.

 WHATSAPPx.gif.933b1f171b62310142ae17b5501fc685.gif Cecil Lee, +65 9785-3171 / support@geomancy.net

1861277562_UNDERSTANDINGMICRO.png.891959f03ef51f98ac6911212f3b30ed.png

 

House Hunting? We will help you select the most auspicious unit!
Learn More
696681019_geoamncysgicon.png.fb8c9b974fb87d32583cae8b9c22b372.png

The Experts in House Hunting

  • 3 months later...
  • Author
  • Staff

Feng Shui suffers a bad reputation, today.

Many Feng Shui Masters are a Feng Shui Store. Their core business is not authentic Feng Shui.
But rather making big bucks by selling lots of useless commercial products in the name of Feng Shui.

Please give me a good reason not to buy such products. Here's one:

2067630596_FAKE(8).png.a4a889053737bed4b9f1b4db20d9dbc6.png

424511252_blacksheep.jpg.f9b140c26a45a6f4af8a26d90559d5a3.jpg

92168278-3B3E-456C-8A41-862E7EDA6537.jpeg
Okay, the above was written prior to the knowledge of COV-19. Here’s to another reason, why.

Many Feng Shui Masters and their shops are FAKES!

On Saturday, 14 March 2020, a WhatsApp from a past client

53D9DC91-B611-4142-B234-151EA0AB99EF.thumb.png.9aedba5135b3a44a8dc1e1846e5e7ba8.png7541700A-8CF1-4B59-ACCC-C98B1CB02185.png.d2002fe17c44cbf6ade5cfeb59b437ff.png

P.S. Frankly, I was just being extremely polite. Actually if one got the hint, as the British always say just throw the "bloody" thing away!

  • 1 year later...
  • Author
  • Staff

WHICH UNITS ARE LUCKY?
image.png.322619467450bea7b53a39edb3064682.png

Part 1: How is the luck of the Internal Feng Shui of this unit?
Part 2: External Feng Shui luck? 
Part 3: How suitable is the unit - Frontage, Kitchen & Main Bedroom?

 

PART 1 = 35%

image.png.919f86ac4068816fabf147212572570b.png
Depends on the Internal Layout & Sectors - How Lucky?

XINTERNAL.gif.d9af8924f0296c58ffa61955890ffc1e.gif

1PERIOD9TEMPLATEX.png.b5d1f23f222c609c348a8b89416a0448.png

1772280793_1FLYINGSTARTOTAL.thumb.png.277df963c4e1eb936825ce4f2e8f088f.png

+++

Good, Better, Best!

image.png.eca59c69e7fbe6bb056ab7f13cf0332b.pngSW1 = Very Lucky. Frontage has the auspicious double #9's. From 2024 till 2043.

 

+++

 

image.png.eca59c69e7fbe6bb056ab7f13cf0332b.pngSE1 = Very Lucky. Frontage has the auspicious double #9's. From 2024 till 2043.

 

 

The Rest!

 

image.png.7545db4b1821123891bf5c0fbd790cb9.pngimage.png.7d02d0ef034508d89d82e51e7311d6f6.pngNE1 = Less Lucky as wealth luck [Double 9's] wasted at the rear.

 

+++

 

image.png.7545db4b1821123891bf5c0fbd790cb9.pngimage.png.7d02d0ef034508d89d82e51e7311d6f6.pngNW1 = Less Lucky as wealth luck [Double 9's] wasted at the rear.

 

++++++++++++++++++++++++++++++++++

 

image.png

image.png.a1a73425ff4ede201a9afe4209a53221.png

But also need to review/consider the individual Internal Layout Plan 
& this is just part of the many considerations in a home purchase.

However the above does not take into consideration things like:
Kitchen/Stove at Inauspicious Fire @ Heaven's Gate
or Poison arrow aimed towards the unit, proximity to common bin etc..

+++++++++++++++++++++++++++
+++++++++++++++++
++++

 

PART 2 = 35%

image.png.b20d51d387ffc3fecfd1ca4536b1d2af.png
Location, location, location?
image.png.6cb715af858bd5c21b1958f73465a364.png

Sha Qi? Poison Arrow? 

image.png.592f31c61571e537bae1ecd4dc4ccd58.png


Watch Your Front, Sides & Back!

 

Our New e-Book

12 Practical Tips for Choosing a new BTO Flat with External Feng Shui Considerations

POOR SCORE? THESE ARE SOME CONCERNS:

Sha Qi or Poison arrow(s) from Sharp Corner(s)
天斩
煞 (tiān zhǎn shà) = Tian Zhan Sha etc...

X1EXTERNAL.gif.97cebbef84198f7d87e273035fbfb23c.gif

+++++++++++++++++++++++++++
+++++++++++++++++
++++

 

PART 3 = 30%

image.png.c5d88140dad56cb31762d8acd4313636.png
How Suitable to breadwinner?

image.png.833e364ba94fb435c80af7e9c424387c.png

image.png.a374728bf11c51f8a0f2994ce8dcbdf2.png
Please note that has yet to take into consideration:
1. How suitable is the unit to the main breadwinner &
2. External Shapes and Forms of the unit

image.png.eb1572b92ac460af725d8373f85eb51e.png

TOTAL SCORE = 35 + 35 + 30 = 100%


Get Expert Help:

++++++++++++++++++
+++++++++

How do you Feng Shui your home? Use your front door? Who are the Conservatives & the Modernist?

 

Applies to Homes that previously T.O.P. between Years 2004 to 2023...

 

 

  • Cecil Lee changed the title to HDB Aranda Breeze @ Yishun (Nov 2022 Build-To-Order) + unit should not face the spire of a church under this Case Study 2 - Which units are lucky?
  • 1 month later...
  • Author
  • Staff
 
image.png.67308574c647b579382054a52a58ef61.png

Type in the unit number to find out

image.png.55692c0dd29722de4778b65038a89bed.png

 

OPTION 1
Please go to this link to check a unit number:
https://www.geomancy.net/content/personalised-reports/free-feng-shui-reports/house-number-report/about-house-number-report
[Need to create a free account to access it]

 

 

or
 

OPTION 2

Go to
URL: https://login.geomancy.net
On the blue navigation on the left, click under Free Reports | House Number.

Create an account or sign in to comment

Recently Browsing 0

  • No registered users viewing this page.
Sponsored Link
 
Background Picker

Account

Navigation

Search

Search

Configure browser push notifications

Chrome (Android)
  1. Tap the lock icon next to the address bar.
  2. Tap Permissions → Notifications.
  3. Adjust your preference.
Chrome (Desktop)
  1. Click the padlock icon in the address bar.
  2. Select Site settings.
  3. Find Notifications and adjust your preference.