Jump to content
View in the app

A better way to browse. Learn more.

FengShui.Geomancy.Net

A full-screen app on your home screen with push notifications, badges and more.

To install this app on iOS and iPadOS
  1. Tap the Share icon in Safari
  2. Scroll the menu and tap Add to Home Screen.
  3. Tap Add in the top-right corner.
To install this app on Android
  1. Tap the 3-dot menu (⋮) in the top-right corner of the browser.
  2. Tap Add to Home screen or Install app.
  3. Confirm by tapping Install.
About Feng Shui at Geomancy.Net
Sponsored Link
 

Featured Replies

Posted
  • Staff

HDB Farrer Park Arena (May 2023 Build-To-Order)

01_perspective(1).thumb.jpg.32c3ab5173e31842a4e97e8b6024f4c3.jpg02_perspective.thumb.jpg.9af0683db7aa15a11435449471a8761e.jpg

Farrer Park Arena  is bounded by Farrer Park Road and Dorset Road. The project is offered under the Prime Location Public Housing (PLH) model, and comprises 3 residential blocks, each with 24 storeys. You can choose from 569 units of 3- and 4-room flats.

The name Farrer Park Arena takes inspiration from the past, as the project site used to house a boxing gym. The former boxing gym building will be repurposed into a multi-purpose community sporting space to honour its unique heritage. In addition, you can also jog amid the green surrounds of Farrer Park Arena and work out at the adult and elderly fitness stations. Those who enjoy ball games will enjoy the hard court located at the roof garden above the Multi-Storey Car Park. Other facilities within the project include children’s playgrounds, a childcare centre, and a residents’ network centre.

Residents can also enjoy more facilities located just next door, such as a proposed park and new sports centre, which will boast swimming pools, a field, as well as other sporting facilities.

Please refer to the site plan located at the top of this page for the facilities provided in the project. Facilities in this project will be accessible by the public.03_siteplan_kwn_n1c46.thumb.jpg.acddbc93c8e143cdbf49723987f262a8.jpg

  • Author
  • Staff

townmap_kwn_n1c46.thumb.jpg.c5afa85ac446264bdf075f659f91834e.jpg

About Kallang/Whampoa Town
Enjoy a wide variety of food and shopping choices at Pek Kio Market & Food Centre and shopping malls such as City Square Mall, Centrium Square, and Mustafa Centre. Visit Where2Shop@HDB to find out more about HDB’s heartland shops in this area.

Explore new hobbies at Pek Kio Community Centre and Kallang Community Club, or work out a sweat jogging at Jalan Besar Stadium and along the Rochor Canal. More sporting options will be available at a new sports centre adjacent to Farrer Park Arena, which will include swimming pools, a field, as well as other sporting facilities.

Parents with school-going children can consider nearby schools such as Farrer Park Primary School, Hong Wen School, Bendemeer Secondary School, and St. Joseph’s Institution Junior. 

 

  • Author
  • Staff

Case Study 1: Flying Star Feng Shui Facing Directions of HDB Farrer Park Arena

THE ART & SCIENCE OF CAN OR CANNOT BUY?

AS WE ENTER PERIOD 9 FLYING STAR FENG SHUI FROM 2024 TILL 2043

IS MY UNIT LUCKY?
image.png.322619467450bea7b53a39edb3064682.png

Part 1: How is the luck of the Interior Feng Shui of this unit?
Part 2: External Feng Shui luck? + Overall score/luck.
Part 3: How suitable is the unit - Frontage, Kitchen & Main Bedroom?

PART 1

image.png.919f86ac4068816fabf147212572570b.png
Depends on the Internal Layout & Sectors - How Lucky?

XINTERNAL.gif.d9af8924f0296c58ffa61955890ffc1e.gif

1PERIOD9TEMPLATEX.png.b5d1f23f222c609c348a8b89416a0448.png

Expected T.O.P. is in Year December 2027

For example: Stacks #218, #220 & #232 considered as NW3 facing.
While #202, #204, #208 & #208 are SW1.
1FLYINGSTARTOTAL.thumb.jpg.721dd12f3625ba9e225579ad033b31c5.jpg

 


Generally, most of this development's Stacks/Units are considered lucky as either some Frontage has the Double Stars #9's and/or in lieu of this can benefit instead from a Sum of Ten - either Water or Mountain star.

===

image.png.5570d6711e8e52fc757d95086e917609.png

NW 3 Double Stars [#9] + [#9] in Front.  Double Star in Front Formation
With auspicious Sum of Ten Water Star

===
image.png.f04e355395e9a167bd19c8b86b0232b6.png

SE3++ = Less Lucky as Double Stars [#9] + [#9] at the Rear
Luckily can benefit from auspicious Sum of Ten Mountain Star
Generally the only stacks suitable for EAST Group persons.

CAUTION / ACTUNG
++Note: But unfortunately, many stacks are affected by the Inauspicious "Fire@Heaven's Gate"
https://www.geomancy.net/forums/topic/16223-hdb-toa-payoh-kim-keat-beacon-bto-launched-in-may-2018-indepth-understanding-of-kitchen-at-nw-fireheavens-gate-affects-everyone/#comment-35494

===

image.png.f04e355395e9a167bd19c8b86b0232b6.png

NE1, Less Lucky as Double Stars [#9] + [#9] at the Rear
Luckily can benefit from auspicious  Sum of Ten Water Star    


===

image.png.5570d6711e8e52fc757d95086e917609.png

SW1 Double Stars [#9] + [#9] in Front.  Double Star in Front Formation
With auspicious Sum of Ten Mountain Star

===
image.thumb.png.56c602ed2a08219c58e1f517ced53c11.png
Note: Also need to review/consider the individual Internal Layout Plan 
& this is just part of the many considerations in a home purchase.

+++++++++++++++++++
++++++++++++++

 

PART 2

image.png.b20d51d387ffc3fecfd1ca4536b1d2af.png
Location, location, location?
image.png.6cb715af858bd5c21b1958f73465a364.png

Sha Qi? Poison Arrow? 

1watchyourfront.png.144f401f07432ab1316a30890c450d52.png
Watch Your Front, Sides & Back!

X1EXTERNAL.gif.97cebbef84198f7d87e273035fbfb23c.gif

 

PART 3

image.png.c5d88140dad56cb31762d8acd4313636.png
How Suitable to breadwinner?

image.png.833e364ba94fb435c80af7e9c424387c.png

image.png.a374728bf11c51f8a0f2994ce8dcbdf2.png
Please note that has yet to take into consideration:
1. How suitable is the unit to the main breadwinner &
2. External Shapes and Forms of the unit

image.png.eb1572b92ac460af725d8373f85eb51e.png


Get Expert Help:

++++++++++++++++++
+++++++++

How do you Feng Shui your home? Use your front door? Who are the Conservatives & the Modernist?

 

  • Author
  • Staff

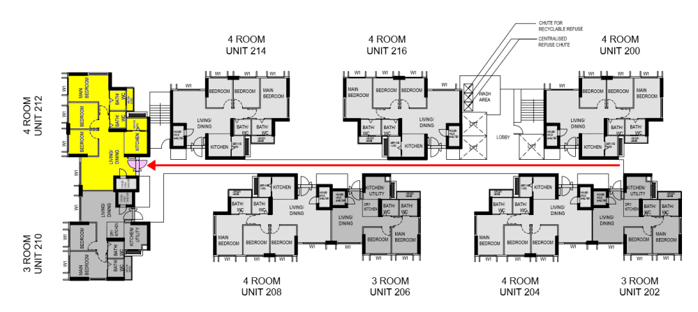
Case Study 2A: Stack #216 with Poor Shapes and Forms Feng Shui

The centralised chute sharing the same wall as the living room 

1centralisedrefusechute.gif.52e448d8e81f8a24367740c209c1a091.gif

 

Case Study 2B: Stack #238 & #240, especially #238
Hopefully both the recycle and common bins are not in full view of the front door(s) 

1centralisedrefusechute1.jpg.966ea4bd5b847939d552c8745e88471a.jpg

 

In addition, especially for Stack #238, if you love to leave the front door opened then there are privacy concerns. As unit front door is in full view of the Three lifts!

  • Author
  • Staff

Case Study 3: Any concerns if my unit faces Farrer Park Primary School?

1. Avoid the windows facing the roof-line (sha qi) of a school (if any)
2. During school operations, do expect the school bell to ring every hour on the hour.
3. Do expect noises especially kids playing during recess and or during school assembly time

1farrerparkarenaandschool.thumb.png.51ff3cef44bd39ad0aa31f112e5ef0c8.png

Learn More:

 

  • Author
  • Staff

Case Study 5: Stacks affected by the Inauspicious Fire @ Heaven's Gate

GladIskippedthisoney.thumb.png.64da9901fa04befc356cef625fd695aa.png

Stacks #222, #226, #234 and 240

FIREATHEAVENSGATE.thumb.png.23c30954ed1933fe37c80053b9d38134.png

Although Stacks #222, #226, #234 and 240 on the surface seems good buys, unfortunately the kitchen and especially difficult for such Stacks/unit's stove to be place anywhere else but in a NW sector.

1FIREATHEAVENSGATE.png.7d6f4a6a71adf62e79ad0d7caa112ff8.png

 

Reference:

Extract from the above article
image.thumb.png.7f6a151e093ba03c6e288812f806fcd0.png

 

  • 4 months later...
  • Author
  • Staff

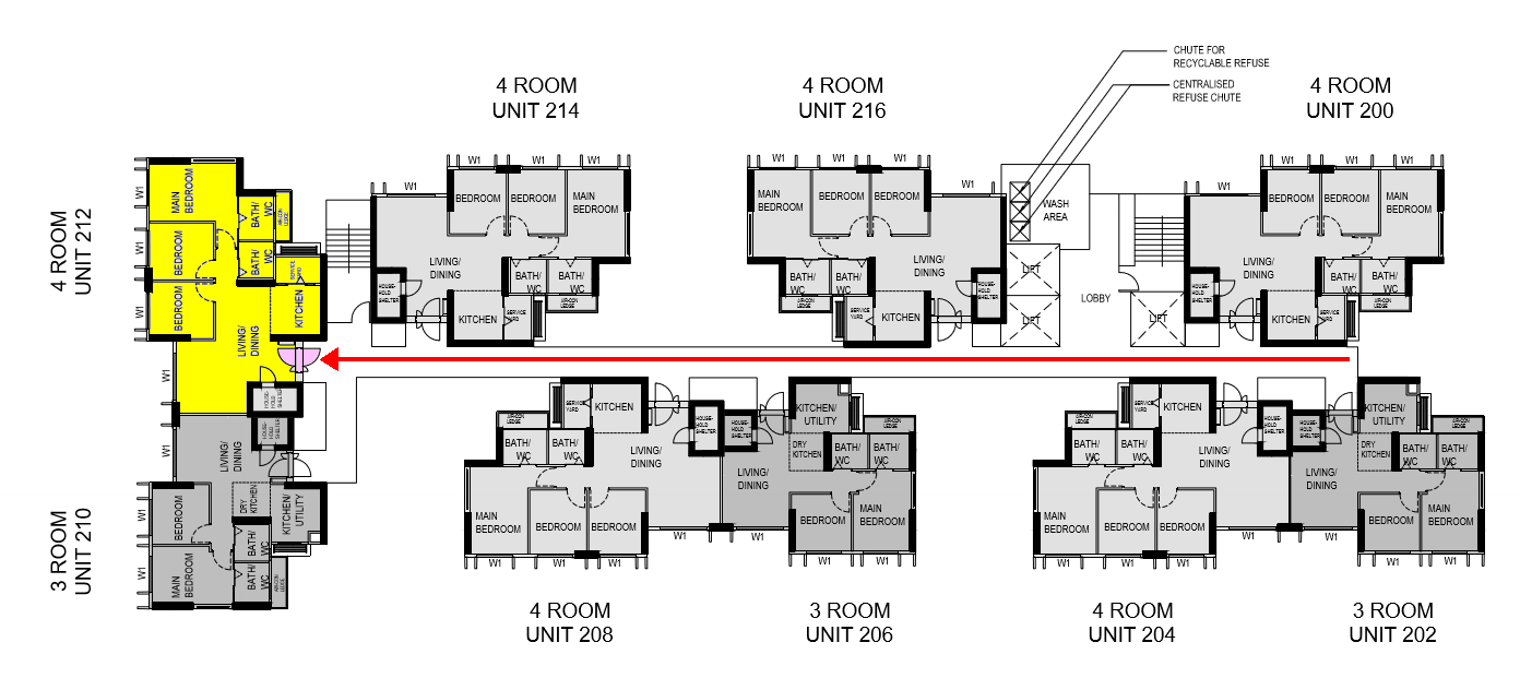
Case Study 5: Love to leave your front door open?

image.png.ab5478031e9a46b16f27df57b9d02e2c.png

Then this Stack/Unit 212 is not for you!

Sha Qi from a long corridor towards front door
1shaqifromlongcorridor.thumb.png.e6a23de48c5f66d0017498262e0751ec.png

Stack #212 is the only Stack/unit in HDB Farrer Park Arena that is affected by Sha Qi or Poison arrow from a long straight corriror

  • Author
  • Staff

We will never sell you any products!

Many Feng Shui Masters are a Feng Shui Store in disguise
Beware: Even those who claim to have a Feng Shui Lineage are equally guilty of this

grandparentstime.thumb.png.d7fdc1f19dddf7a656c234cd43435592.png

bullshit.png.8a28af50b9b4c2dbe49ac264e6dddb2b.png

Ask: "Must I buy from you?"

image.png.67766644ac0ce539d17a9ee816d21fb1.png


Find out more...

  • Author
  • Staff

Is the Sales Brochure Useful?

YESUSEFUL.png.cb07971cc00ab90733509e5f1a47d47a.png

Introduction: For brand new just launched developments, there is no physical site to visit the completed buildings and apartments. 

1. The only thing we can do is to visit the show room (which often is close-by to the site) as well as obtain a sales brochure and see the mock-up of the development. As well as try to ask questions from the sales agent (if any).

1.1. We must still try to gather as much information as we can.

2. Summary of Case Studies in this article.

If the information is overwhelming. Pick and choose selective articles...

1A & B: Common Rubbish Bin
2A & B: Interior unit Dry Walls
3: Fire at Heaven's Gate
4: Sha Qi or Poison Arrows from Club-house roof-lines
5: 3 Panel Sliding Doors at the Balcony
6: Drainage at the Balcony
7: Air-con Ledges
8: Mixed Developments + Cooling Towers
9: Termite infestations
10: Coffee-shop below or near to unit
11: Water tank at roof-top
12: Lamp Posts, Pillars, Tree Trunks
13: Spice Garden in an EC/condo
14: EC/condo Clubhouse
15A & B: Pneumatic Waste Collection System
16: Look closely at the development's scale model for clues
17: Buying a Mixed development apartment
18: Survey or study facilities surrounding the development
19: Pump Room below a unit
20: Seven Commandments of Stove Placement
21: Is there a potential poison arrow from the neighbours?
22: Should I be concerned with a near-by temple, church, mosque &/or elder care?
23: Is the compass marking on the Sales Brochure accurate?
24: Sites reserved for Schools?
25: Doors face each other? [Main Door/Bedrooms]
26: Unit numbers with 4, 44 or 444 Okay?

27: Stove or sink or WC at the Centre of the house?

3. It is always an excellent idea to spent some time to scrutinise a prospective sales brochure of our potential buy (purchase).

49651023_salesbrochureatreasuretrove.png.afca5f2b95a493eef57294c48a2b4858.png4. Recently, more and more clients have discovered to their shock (horror) that the least expected was the location of the central rubbish bin outside their unit.

5. A year ago; many had purchased a premium unit within the development .. and later shocked to learn that the central rubbish chute (for their entire floor) is just next to their main door!

6. Thus the morale of the story is to check first before signing on the dotted line.

7. In general, most developments have these:-

8.1. A central rubbish collection centre / rubbish bin collection point

8.2. Power Sub-station. Every development usually has one or more of these depending on the size of the development.

8.3. Design of club-house roof-lines / trellis / gazebo / pavilion. Are the designs a "threat" e.g. with spikes or like a razor's edge? Usually these are aimed towards lower storeys.

8.4. Any poison arrows in the form of a sharp corner of another block of neighbouring stack aimed towards one's balcony (hard to cure) or towards one's windows (if any)

8.5. Location of areas like BBQ pits and any impact e.g. the smell from these pits towards a unit.. especially low storeys such as #01  or #02 first or second storeys

8.6. Any tree trunk aimed towards a lower unit e.g. #01 or #02. Unfortunately it may be too late; especially if the development is under construction.

9. There are lots more considerations...  

9.1. Do remember "Read in-between" the lines..

TRILIVE reading between the lines.png

CLICK THIS LINK TO LEARN MORE

 

The Experts in House Hunting
696681019_geoamncysgicon.png.fb8c9b974fb87d32583cae8b9c22b372.png

" As much as we see, Geomancy.net has great web presence built up over the years and is seen as one of the SG market leaders in residential house audit. "

Success starts with good Feng Shui

367287073_HEALTHWEALTHANDHAPPINESS50.png.03992f40f00dc4cd5e9453963bf0fa6c.png
Transparent Pricing & No Hidden Costs. No Purchase of Products.

 WHATSAPPx.gif.933b1f171b62310142ae17b5501fc685.gif Cecil Lee, +65 9785-3171 / support@geomancy.net

1861277562_UNDERSTANDINGMICRO.png.891959f03ef51f98ac6911212f3b30ed.png

 

The Experts in House Hunting
696681019_geoamncysgicon.png.fb8c9b974fb87d32583cae8b9c22b372.png

  • Author
  • Staff
image.png.67308574c647b579382054a52a58ef61.png

Type in the unit number to find out

image.png.55692c0dd29722de4778b65038a89bed.png

 

OPTION 1
Please go to this link to check a unit number:
https://www.geomancy.net/content/personalised-reports/free-feng-shui-reports/house-number-report/about-house-number-report
[Need to create a free account to access it]

 

 

or
 

OPTION 2

Go to
URL: https://login.geomancy.net
On the blue navigation on the left, click under Free Reports | House Number.

  • Cecil Lee changed the title to HDB Farrer Park Arena (May 2023 Build-To-Order) - Is my unit lucky today?

Create an account or sign in to comment

Recently Browsing 0

  • No registered users viewing this page.
Sponsored Link
 

Configure browser push notifications

Chrome (Android)
  1. Tap the lock icon next to the address bar.
  2. Tap Permissions → Notifications.
  3. Adjust your preference.
Chrome (Desktop)
  1. Click the padlock icon in the address bar.
  2. Select Site settings.
  3. Find Notifications and adjust your preference.