Skip to content
View in the app

A better way to browse. Learn more.

FengShui.Geomancy.Net

A full-screen app on your home screen with push notifications, badges and more.

To install this app on iOS and iPadOS
  1. Tap the Share icon in Safari
  2. Scroll the menu and tap Add to Home Screen.
  3. Tap Add in the top-right corner.
To install this app on Android
  1. Tap the 3-dot menu (⋮) in the top-right corner of the browser.
  2. Tap Add to Home screen or Install app.
  3. Confirm by tapping Install.
About Feng Shui at Geomancy.Net
Sponsored Link
 

HDB Plantation Verge (May 2023 Build-To-Order) - Is my unit lucky?

Featured Replies

  • Staff

HDB Plantation Verge (May 2023 Build-To-Order)

Tengah

01_perspective(1).thumb.jpg.af54358834fb978eebe7b637f0e43a8d.jpg02_perspective.thumb.jpg.03c57304da57c7aeed0fea5db2c45302.jpg

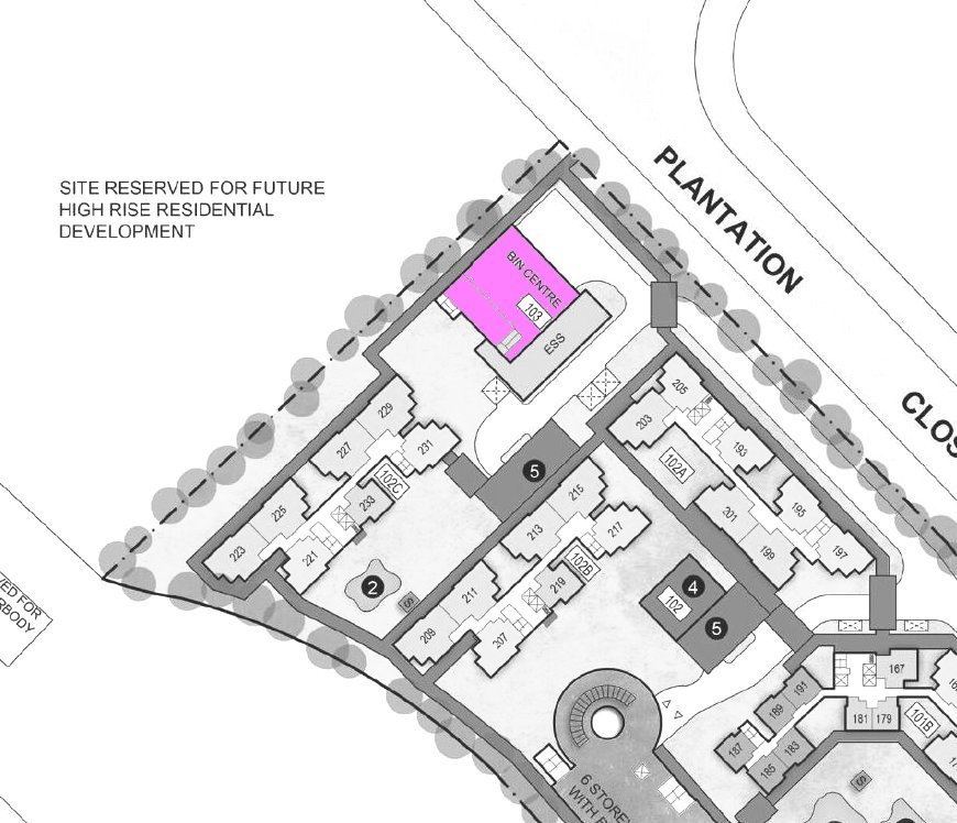
Plantation Verge  is located in Tengah Plantation district and along Plantation Close. The project spans 7 residential blocks ranging from 14 to 18 storeys. There are a total of 971 units of 2-Flexi, 3-, 4-, and 5-room flats available.

The name Plantation Verge references the project’s location along the Forest Fringe. The project features a central courtyard that offers various facilities for residents, including children's playgrounds, adult and elderly fitness corners, seats, and shelters where they can relax and interact. The Multi-Storey Car Park (MSCP) comes with a childcare centre on the second storey and a roof garden on the top floor. Please refer to the site plan located at the top of this page, for the facilities provided in Plantation Verge. Facilities in this project will be accessible by the public.

About Plantation District

Inspired by the villages and farms that once dotted Tengah in the 1950s, Plantation District will be the home of community farming. The Plantation Farmway will run through the precincts, and spaces will be set aside for residents to enjoy community gardening and urban farming in their own neighbourhood. Key amenities such as a Community Club, Neighbourhood Centre, and a shopping street will line the Plantation Farmway, making it a vibrant spot for residents to gather.

03_siteplan_tg_d1c8.thumb.jpg.fa7f7fbd1797a8b43dfb83cf78e929ec.jpg

  • Author
  • Staff

townmap_tg_d1c8.thumb.jpg.eff53080d1a9840ed0e097d1144e47b9.jpg

 

About Tengah Town

Homes in Tengah town will be surrounded by lush greenery and nature. HDB has applied its Biophilic Town Framework to guide the enhancement of existing natural assets and the design and development of neighbourhood landscapes in Tengah. Residents can look forward to nature-centric neighbourhoods that offer a greater sense of place, better well-being, and an enhanced quality of life. A variety of outdoor spaces and landscape features will be introduced to draw people closer to nature. A town-wide Active, Beautiful, and Clean Waters design strategy will also be introduced to slow down and treat stormwater runoff, while enhancing the biodiversity. Find out more details on Tengah town.

Tengah will be the first town to integrate housing projects with the area’s surrounding greenery and biodiversity. One major attraction will be the approximately 100-metre wide and 5km long Forest Corridor, which will form part of the larger network of greenery that connects the Western Water Catchment Area and the Central Catchment Nature Reserve. In collaboration with the National Parks Boards, various tree species will be planted in the Forest Corridor to transform it into a rich forest habitat.

Complementing the Forest Corridor is the Forest Fringe, a 15- to 20-metre wide linear greenscape that will provide a tranquil and rustic environment for residents to enjoy flora and fauna. In addition, extensive park spaces, such as the Central Park and Community Farmways, will string key amenities and facilities together, providing a safe environment for residents to access their daily amenities.

Tengah will be the first HDB town to have a car-free town centre nestled next to a lush green park. To encourage green commuting, there will be dedicated walking and cycling paths along all roads to create seamless connections within the town. The upcoming Jurong Region Line and bus services will serve the public transport needs of residents.

Tengah is also the first HDB town to be planned with town-wide smart technologies from the outset. Guided by HDB’s Smart Town Framework, the various districts will integrate smart technology in its design, so that residents can enjoy a quality living environment. Autonomous vehicles will be piloted in Tengah town to provide convenient first-mile-last-mile connection to key transport nodes and amenities.

Apart from existing primary, secondary, and tertiary institutions in the vicinity of Tengah town, new schools will also be built within the town. This includes Anglo Chinese School (Primary), which will be situated within 1km of Parc Meadow @ Tengah when it relocates to the town in 2030.

Vibrant commercial facilities are planned for the town centre and in the districts, complementing other shopping and dining options in the nearby Bukit Batok town.

  • Author
  • Staff

Case Study 1: Flying Star Feng Shui of HDB Plantation Verge 

THE ART & SCIENCE OF CAN OR CANNOT BUY?

AS WE ENTER PERIOD 9 FLYING STAR FENG SHUI FROM 2024 TILL 2043

IS MY UNIT LUCKY?
image.png.322619467450bea7b53a39edb3064682.png

Part 1: How is the luck of the Interior Feng Shui of this unit?
Part 2: External Feng Shui luck? + Overall score/luck.
Part 3: How suitable is the unit - Frontage, Kitchen & Main Bedroom?

PART 1

image.png.919f86ac4068816fabf147212572570b.png
Depends on the Internal Layout & Sectors - How Lucky?

XINTERNAL.gif.d9af8924f0296c58ffa61955890ffc1e.gif

1PERIOD9TEMPLATEX.png.b5d1f23f222c609c348a8b89416a0448.png

Expected T.O.P. in 2027

For example Stacks #193, #195, 197 & 205 are facing NE2.
While #155, #157 #175 & #177, #199 & #201 are facing SW2.
Stacks #107, #109 #111 & #113 are NW2 directions.  Etc.

1TOTALFLYINGSTARS.thumb.jpg.546de3d1c749277d5f5776574a072c3a.jpg

image.png.eca59c69e7fbe6bb056ab7f13cf0332b.png
NE2 = Very Double Stars [#9] + [#9] in Front.   
Plus also benefit from the auspicious Sum of Ten Mountain Star

===

image.png.192619ad0237b33657514e1b0a665634.png

SW2 = Less Lucky as Double Stars [#9] + [#9] at the Rear

===

image.png.eca59c69e7fbe6bb056ab7f13cf0332b.png
NW 2 = Very Auspicious Double Stars [#9] + [#9] in Front. 
Plus also benefit from the auspicious Sum of Ten Water Star

===

image.png.3376c28e30c3915c766a36a9ad632b90.png

SE2 = Less Lucky as Double Stars [#9] + [#9] at the Rear
Luckily can benefit from Sum of Ten Mountain Star

===

image.png.eca59c69e7fbe6bb056ab7f13cf0332b.png

N2 = Very Auspicious Double Stars [#9] + [#9] in Front. 
Plus also benefit from the auspicious Sum of Ten Mountain Star

===

image.png.5f1ce2b4ed58b96b23ccab7eed30399c.png
S2 = Less Lucky as Double Stars [#9] + [#9] at the Rear
Luckily can benefit from Sum of Ten Water Star

===
image.thumb.png.70fb073f8dd94de7ad9e5abba6d41b9c.png
Note: But also need to review/consider the individual Internal Layout Plan 
& this is just part of the many considerations in a home purchase.

===

PART 2

image.png.b20d51d387ffc3fecfd1ca4536b1d2af.png
Location, location, location?
image.png.6cb715af858bd5c21b1958f73465a364.png

Sha Qi? Poison Arrow? 

1watchyourfront.png.144f401f07432ab1316a30890c450d52.png
Watch Your Front, Sides & Back!

X1EXTERNAL.gif.97cebbef84198f7d87e273035fbfb23c.gif

 

PART 3

image.png.c5d88140dad56cb31762d8acd4313636.png
How Suitable to breadwinner?

image.png.833e364ba94fb435c80af7e9c424387c.png

image.png.a374728bf11c51f8a0f2994ce8dcbdf2.png
Please note that has yet to take into consideration:
1. How suitable is the unit to the main breadwinner &
2. External Shapes and Forms of the unit

image.png.eb1572b92ac460af725d8373f85eb51e.png


Get Expert Help:

++++++++++++++++++
+++++++++

How do you Feng Shui your home? Use your front door? Who are the Conservatives & the Modernist?

 

  • Author
  • Staff

Case Study 2: Most concern are a Chinese or Hindu Temple

Stacks facing the place of worship: #115, #121 or #165

1placeofworship.thumb.png.6bc0fac98946879522f6895343280406.png

 

Related: A near-by temple?


What if it is a Japanese Soka?

B977E450-6C10-46D4-A5BB-CCCC71C7754D.jpeg

 

  • Author
  • Staff

Case Study 3: Sample Centralised Bin Lobby (CBL) & Chutes sharing unit's living room wall 

Stack #139

1centralisedbinlobby.gif.e4dcd7dda81c8bfd7524d78a4796f17e.gif

One of the several examples found at HDB Plantation Verge BTO

Just imagine, opening the living room windows and it's beside the common bin lobby open area!

+++++++++++++++++++++++
++++++++++++++++++
++++++++++
++++++

Stacks #165, #205, #233 also share same fate as above

1cbl.thumb.gif.602a1bc4d3cb556a96174c16e867f4ee.gif

 

  • Author
  • Staff

Case Study 4: HDB Plantation Verge uses the Pneumatic Waste Conveyance System (PWCS)

1. Requires close co-operation amongst residents to avoid clogging the system.2. In some instances the PWCS in other developments had even be known to jam for 2 or more years. 2.1. Making the stench unbearable especially for households living close to the Bin Centre!

1PWCS.jpg.c8c5083075c184fdc280c2c82a2f8ca5.jpg

 

Learn:

More:

 

 

  • Author
  • Staff

Case Study 6: Expect traffic noise along the Pan-Island Expressway for units close to it.

image.png.e6465e55209523dd65438dde9f482feb.png

Sir! You are mistaken! HDB Plantation Verge is buffered by a Park.

So what! If one has sensitive ears, still can hear the traffic noise!

1PIE.thumb.png.0ff4e582d24b41afa9983cc0619bf689.png

Perhaps, can have a rough taste of how it sounds like? Skyline II @ Bukit Batok

Okay, I get you! these locations are not the same! But they are pretty close to that of HDB Plantation Verge...
image.thumb.png.aea142cf724455f9aff54287211f3a9c.png

or Places like Matilda Court / Matida Edge

image.thumb.png.d7c8c732d80f5ab570a77eb531f5bf16.png

Caution: Don't do the test during the weekends or public holidays!
Do so on working days such as Mondays - Fridays.. especially Peak Hours of the day....

or places similar to Blk 128C or 128D Punggol Field Walk ....

image.thumb.png.fa93f6cb2a911113a5279c08875a8388.png

 

  • Author
  • Staff

Need Help? We will help you select the most auspicious unit!

 

" As much as we see, Geomancy.net has great web presence built up over the years and is seen as one of the SG market leaders in residential house audit. "

Success starts with good Feng Shui

367287073_HEALTHWEALTHANDHAPPINESS50.png.03992f40f00dc4cd5e9453963bf0fa6c.png
Transparent Pricing & No Hidden Costs. No Purchase of Products.

 WHATSAPPx.gif.933b1f171b62310142ae17b5501fc685.gif Cecil Lee, +65 9785-3171 / support@geomancy.net

1861277562_UNDERSTANDINGMICRO.png.891959f03ef51f98ac6911212f3b30ed.png

 

The Experts in House Hunting
696681019_geoamncysgicon.png.fb8c9b974fb87d32583cae8b9c22b372.png

  • 4 months later...
  • Author
  • Staff

We will never sell you any products!

Acaricatureofape.thumb.png.b8f253aca51f4cb75abe99f585ae3ca8.png

Many Feng Shui Masters are a Feng Shui Store in disguise
Beware: Even those who claim to have a Feng Shui Lineage are equally guilty of this

grandparentstime.thumb.png.d7fdc1f19dddf7a656c234cd43435592.png

bullshit.png.8a28af50b9b4c2dbe49ac264e6dddb2b.png

Ask: "Must I buy from you?"

image.png.67766644ac0ce539d17a9ee816d21fb1.png

Asatiricalcaricatuu.thumb.png.b9a0676fbdb0c1b85409fca20c2ae7eb.png


Find out more...

  • Author
  • Staff
image.png.67308574c647b579382054a52a58ef61.png

Type in the unit number to find out

image.png.55692c0dd29722de4778b65038a89bed.png

 

OPTION 1
Please go to this link to check a unit number:
https://www.geomancy.net/content/personalised-reports/free-feng-shui-reports/house-number-report/about-house-number-report
[Need to create a free account to access it]

 

 

or
 

OPTION 2

Go to
URL: https://login.geomancy.net
On the blue navigation on the left, click under Free Reports | House Number.

  • Cecil Lee changed the title to HDB Plantation Verge (May 2023 Build-To-Order) - Is my unit lucky?
  • 1 year later...

Create an account or sign in to comment

Recently Browsing 0

  • No registered users viewing this page.
Sponsored Link
 
Background Picker

Account

Navigation

Search

Search

Configure browser push notifications

Chrome (Android)
  1. Tap the lock icon next to the address bar.
  2. Tap Permissions → Notifications.
  3. Adjust your preference.
Chrome (Desktop)
  1. Click the padlock icon in the address bar.
  2. Select Site settings.
  3. Find Notifications and adjust your preference.