Skip to content
View in the app

A better way to browse. Learn more.

FengShui.Geomancy.Net

A full-screen app on your home screen with push notifications, badges and more.

To install this app on iOS and iPadOS
  1. Tap the Share icon in Safari
  2. Scroll the menu and tap Add to Home Screen.
  3. Tap Add in the top-right corner.
To install this app on Android
  1. Tap the 3-dot menu (⋮) in the top-right corner of the browser.
  2. Tap Add to Home screen or Install app.
  3. Confirm by tapping Install.
About Feng Shui at Geomancy.Net
Sponsored Link
 

HDB Kembangan Wave BTO launched in October 2024 - Which units are lucky?

Featured Replies

  • Author
  • Staff

WHICH UNITS ARE LUCKY?
image.png.322619467450bea7b53a39edb3064682.png

Part 1: How is the luck of the Internal Feng Shui of this unit?
Part 2: External Feng Shui luck? 
Part 3: How suitable is the unit - Frontage, Kitchen & Main Bedroom?

 

PART 1 = 35%

image.png.919f86ac4068816fabf147212572570b.png
Depends on the Internal Layout & Sectors - How Lucky?

XINTERNAL.gif.d9af8924f0296c58ffa61955890ffc1e.gif

1PERIOD9TEMPLATEX.png.b5d1f23f222c609c348a8b89416a0448.png

image.png.8a422eb7307d76b4e0d0fb3d88368d3f.png

 

Good, Better, Best!

 

image.png.eca59c69e7fbe6bb056ab7f13cf0332b.pngN3 = Very Lucky. Frontage has the auspicious double #9's.

 

+++

image.png.eca59c69e7fbe6bb056ab7f13cf0332b.pngS1 = Very Lucky. Frontage has the auspicious double #9's. From 2024 till 2043.

 

+++

 

The Rest!

 

image.png.7545db4b1821123891bf5c0fbd790cb9.pngimage.png.7d02d0ef034508d89d82e51e7311d6f6.pngN1 = Less Lucky as wealth luck [Double 9's] wasted at the rear.

 

+++

image.png.7545db4b1821123891bf5c0fbd790cb9.pngimage.png.7d02d0ef034508d89d82e51e7311d6f6.pngE1 = Less Lucky as wealth luck [Double 9's] wasted at the rear.

 

++++++++++++++++++++++++++++++++++

 

image.png

image.png.a1a73425ff4ede201a9afe4209a53221.png

But also need to review/consider the individual Internal Layout Plan 
& this is just part of the many considerations in a home purchase.

However the above does not take into consideration things like:
Kitchen/Stove at Inauspicious Fire @ Heaven's Gate
or Poison arrow aimed towards the unit, proximity to common bin etc..

+++++++++++++++++++++++++++
+++++++++++++++++
++++

 

PART 2 = 35%

image.png.b20d51d387ffc3fecfd1ca4536b1d2af.png
Location, location, location?
image.png.6cb715af858bd5c21b1958f73465a364.png

Sha Qi? Poison Arrow? 

image.png.592f31c61571e537bae1ecd4dc4ccd58.png


Watch Your Front, Sides & Back!

 

Our New e-Book

12 Practical Tips for Choosing a new BTO Flat with External Feng Shui Considerations

POOR SCORE? THESE ARE SOME CONCERNS:

Sha Qi or Poison arrow(s) from Sharp Corner(s)
天斩
煞 (tiān zhǎn shà) = Tian Zhan Sha etc...

X1EXTERNAL.gif.97cebbef84198f7d87e273035fbfb23c.gif

+++++++++++++++++++++++++++
+++++++++++++++++
++++

 

PART 3 = 30%

image.png.c5d88140dad56cb31762d8acd4313636.png
How Suitable to breadwinner?

image.png.833e364ba94fb435c80af7e9c424387c.png

image.png.a374728bf11c51f8a0f2994ce8dcbdf2.png
Please note that has yet to take into consideration:
1. How suitable is the unit to the main breadwinner &
2. External Shapes and Forms of the unit

image.png.eb1572b92ac460af725d8373f85eb51e.png

TOTAL SCORE = 35 + 35 + 30 = 100%


Get Expert Help:

++++++++++++++++++
+++++++++

How do you Feng Shui your home? Use your front door? Who are the Conservatives & the Modernist?

 

  • Cecil Lee changed the title to HDB Kembangan Wave BTO launched in October 2024 - Which units are lucky?
  • Author
  • Staff
 
image.png.67308574c647b579382054a52a58ef61.png

Type in the unit number to find out

image.png.55692c0dd29722de4778b65038a89bed.png

 

OPTION 1
Please go to this link to check a unit number:
https://www.geomancy.net/content/personalised-reports/free-feng-shui-reports/house-number-report/about-house-number-report
[Need to create a free account to access it]

 

 

or
 

OPTION 2

Go to
URL: https://login.geomancy.net
On the blue navigation on the left, click under Free Reports | House Number.

  • Author
  • Staff

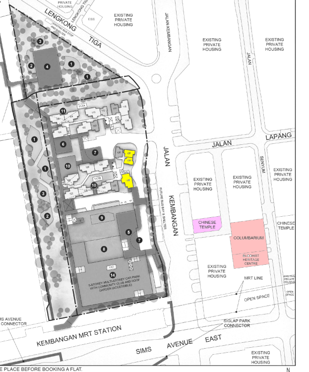
MRTLOGO.gif.e2dfb9cbe613d67f1e1f6f00ca16d96d.gif
Kembangan MRT Station

HEARHEAR.png.23de916259afed53c40cf9db178ab76a.png

The multi-storey car park serves as a buffer; however, individuals with sensitive hearing may still perceive the sound of the trains in motion.

image.thumb.png.bd0c0885916fb46d09c2b8bcfb7ce3f8.png

  • Author
  • Staff

GEOMANCY.NET IS THE OLDEST FENG SHUI FORUM IN THE WORLD

image.thumb.png.5a2621cae79d6ad5282f786acb4efd7b.png

Geomancy.net holds the distinction of being the oldest Feng Shui forum globally, serving as a significant platform for discussions and insights related to this ancient practice. Its longevity underscores its importance as a Leader in the field of Feng Shui.

How can we help you today?

GET EXPERT HELP: IMPROVE YOUR HEALTH, WEALTH & HAPPINESS TODAY

Comprehensive Home Package [A.]: On-site or [B.]: Off-site for HDB / Condo / EC & Landed Properties for New/Re-Sale House or facing financial/ marriage/ relationship/ health issues

 

Do you offer a 1 visit On-site audit? How much?

 

" As much as we see, Geomancy.net has great web presence built up over the years and is seen as one of the SG market leaders in residential house audit. "

Success starts with good Feng Shui

367287073_HEALTHWEALTHANDHAPPINESS50.png.03992f40f00dc4cd5e9453963bf0fa6c.png
Transparent Pricing & No Hidden Costs. No Purchase of Products.

 WHATSAPPx.gif.933b1f171b62310142ae17b5501fc685.gif Cecil Lee, +65 9785-3171 / support@geomancy.net

1861277562_UNDERSTANDINGMICRO.png.891959f03ef51f98ac6911212f3b30ed.png

 

House Hunting? We will help you select the most auspicious unit!

image.thumb.png.286b0412312152330ebc65aefb231f73.png
Learn More
696681019_geoamncysgicon.png.fb8c9b974fb87d32583cae8b9c22b372.png

The Experts in House Hunting

 

 

AUSPICIOUS DATES FOR ONE OR TWO PERSONS

Please visit 30 Days Auspicious Date for ONE or TWO Person(s) - FengShui.Geomancy.Net

+++

image.thumb.png.3155f970bf3d04526ce487f2f859fdea.png

 

Related: Non-Religious Chinese Customs For New Re-Sale Home

 

+++

ALL ELSE

image.jpeg.23d3d33cbecddf279491b1a96e613218.jpeg

KEEP CALM AND LET CECIL HANDLE IT

  • Author
  • Staff

BEWARE OF THIS AGE-OLD FENG SHUI SCAM

Be warned that certain Feng Shui practitioners in Singapore may misrepresent themselves by operating under the guise of a Feng Shui Store. Potentially exploiting clients through deceptive practices. It emphasizes the importance of vigilance when seeking Feng Shui services to avoid falling victim to such scams.

424511252_blacksheep.jpg.f9b140c26a45a6f4af8a26d90559d5a3.jpg 2067630596_FAKE(8).png.a4a889053737bed4b9f1b4db20d9dbc6.png

01 say no to feng shui commercial products.png

 

BEWARE OF THIS AGE-OLD FENG SHUI SCAM

image.png.efcbfc100d6fc4da6a17f5a188322b9d.png

No wonder, Feng Shui suffers from a bad reputation, today

Purchasing products from Feng Shui stores that prioritize profit over authenticity may lead to wasted resources on items that do not genuinely enhance one's environment or well-being.

It is advisable to seek out true Feng Shui practices and guidance rather than succumbing to commercialized offerings that lack real value.

01 say no to feng shui commercial products.png

424511252_blacksheep.jpg.f9b140c26a45a6f4af8a26d90559d5a3.jpg

92168278-3B3E-456C-8A41-862E7EDA6537.jpegThe text highlights the prevalence of fraudulent Feng Shui practitioners, emphasizing the need for discernment in choosing genuine experts, particularly in light of the challenges posed by the COVID-19 pandemic.

This serves as a reminder to critically evaluate the authenticity of services in the wellness and spiritual sectors.

53D9DC91-B611-4142-B234-151EA0AB99EF.thumb.png.9aedba5135b3a44a8dc1e1846e5e7ba8.png7541700A-8CF1-4B59-ACCC-C98B1CB02185.png.d2002fe17c44cbf6ade5cfeb59b437ff.png

P.S. Frankly, I was just being extremely polite. Actually if one got the hint, as the British always say just throw the "bloody" thing away!

FAKE (3).png

686149230_BULLSHITPRODUCTS.gif.e3d6c0b7c5df6bbae5573ebb31528c56.gif

ASK! MUST I BUY FROM YOU?

 

FAKE (7).png

When the buying Stops! The selling Can!

 

EARNEDMILLIONSBUTSAIDNO.png.2a946b39453910340c6a28b672c79dc6.png

Yes! Ask: "Must I buy from YOU?"

  • Author
  • Staff

Compass readings differ based on the spot from which they are taken.

Compass readings vary by location due to magnetic declination, which is the angle difference between magnetic north and true north. Understanding how to take accurate readings is essential for effective application of Flying Star Feng Shui 

EXTRACT / SAMPLE

image.thumb.png.0dae56b53aaae6ff11cd88cbb7906e6a.png

image.thumb.png.ee0a0d86b501c926f3a05a95aa8e06e5.png

Create an account or sign in to comment

Recently Browsing 0

  • No registered users viewing this page.
Sponsored Link
 
Background Picker

Account

Navigation

Search

Search

Configure browser push notifications

Chrome (Android)
  1. Tap the lock icon next to the address bar.
  2. Tap Permissions → Notifications.
  3. Adjust your preference.
Chrome (Desktop)
  1. Click the padlock icon in the address bar.
  2. Select Site settings.
  3. Find Notifications and adjust your preference.