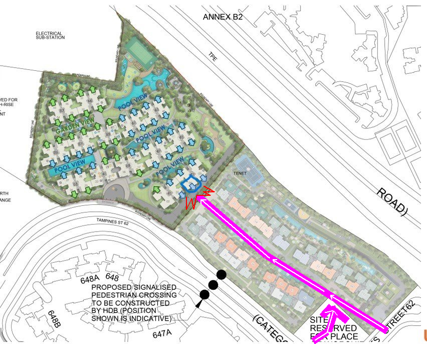
Tampines EC - I am initially considering the stack that is facing Tenet EC and seems like there is potentially 2 big poison arrow from the 2 blocks in that development facing this stack (circle in blue).
Featured Replies
Recently Browsing 0
- No registered users viewing this page.


Create an account or sign in to comment