Jump to content
View in the app

A better way to browse. Learn more.

FengShui.Geomancy.Net

A full-screen app on your home screen with push notifications, badges and more.

To install this app on iOS and iPadOS
  1. Tap the Share icon in Safari
  2. Scroll the menu and tap Add to Home Screen.
  3. Tap Add in the top-right corner.
To install this app on Android
  1. Tap the 3-dot menu (⋮) in the top-right corner of the browser.
  2. Tap Add to Home screen or Install app.
  3. Confirm by tapping Install.
About Feng Shui at Geomancy.Net
Sponsored Link
 

Featured Replies

Posted

Hi Cecil,
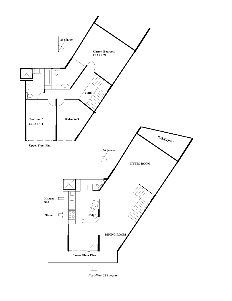
I have just started to learn fengshui and encountered this basis question. Why is the centre of my house.
I've tried sending a sketch of the floor-plan but didn't manage to copy into this message. If you know of a better way or a e-main account that I can send thru normal mail, I will just do that for your kind advice.
Thanks & Regards,

Posted

Sorry Cecil,
Some mistake in my previous message which I am making the corrections here.
1) The question is not 'Why the centre of the house' but instead 'Where is the centre of the house'.
2) The attached files were all identical due to attachment problem. Here is the other floorplan that was meant to be attached.
Sorry for the blunder.
Thanks & Regards,

Posted
  • Staff

Dear SY,
Thank you for your layout plan.
Yes, the layout is pretty `unique' and sometimes it may not be feasible to simply divide it into shapes such as eg. Two `L' shapes as they may not be such.
In your case, the preferred option is to make a photocopy of the layout plan or print it.
Paste/glue the photocopy on a cardboard.
Next `cut-out' the outline of the layout plan.
You use a nail to balance the layout. When you are able to balance the entire `cut-out' layout, i.e. centre of gravity then use this point as the centre-point of the home.
You can then from here determine the direction to the main entrance.
Warmest Regards,
Cecil

Quote
On 8/28/2001 1:19:00 AM, Anonymous wrote:
Sorry Cecil,
Some mistake in my previous
message which I am making the
corrections here.
1) The question is not 'Why
the centre of the house' but
instead 'Where is the centre
of the house'.
2) The attached files were all
identical due to attachment
problem. Here is the other
floorplan that was meant to be
attached.
Sorry for the blunder.
Thanks & Regards,

Create an account or sign in to comment

Recently Browsing 0

  • No registered users viewing this page.
Sponsored Link
 

Configure browser push notifications

Chrome (Android)
  1. Tap the lock icon next to the address bar.
  2. Tap Permissions → Notifications.
  3. Adjust your preference.
Chrome (Desktop)
  1. Click the padlock icon in the address bar.
  2. Select Site settings.
  3. Find Notifications and adjust your preference.