Everything posted by wasis
-
Placement of Objects
Dear Cecil, I'm attaching the picture of objects which are facing my main door (frontage area, inside the house). Those on upper level are a pair of wooden lions. If we stand facing them, the female one is on our right. Whereas the male one (holding a ball) is on our left. Do you see any problem with their placement? Those on lower level are a pair of ceramic figurines. As you see, those men are sitting on stones. Can they be used to activate mountain star? If so, their placement is wrong since they are in frontage area. Thanks in advance. Regards, Wasis
-
Birth chart
Dear Cecil, I'd like to ask you about the built year of my house. The foundation was first digged on 22 October 1982 and the building finished in August 1984. It took almost 2 years because the task was done small portion by small portion. In June 1985, we moved in. In 1992, the frontage garden and west garden were replaced with pavement blocks. In the same year almost all walls were repainted (not including the ceiling). In 1998, less than 10% of the roof was replaced. Based on the information I provide above, what periode does my house belong to? Thanks in advance. Regards, Wasis
-
Protusion at South-East sector
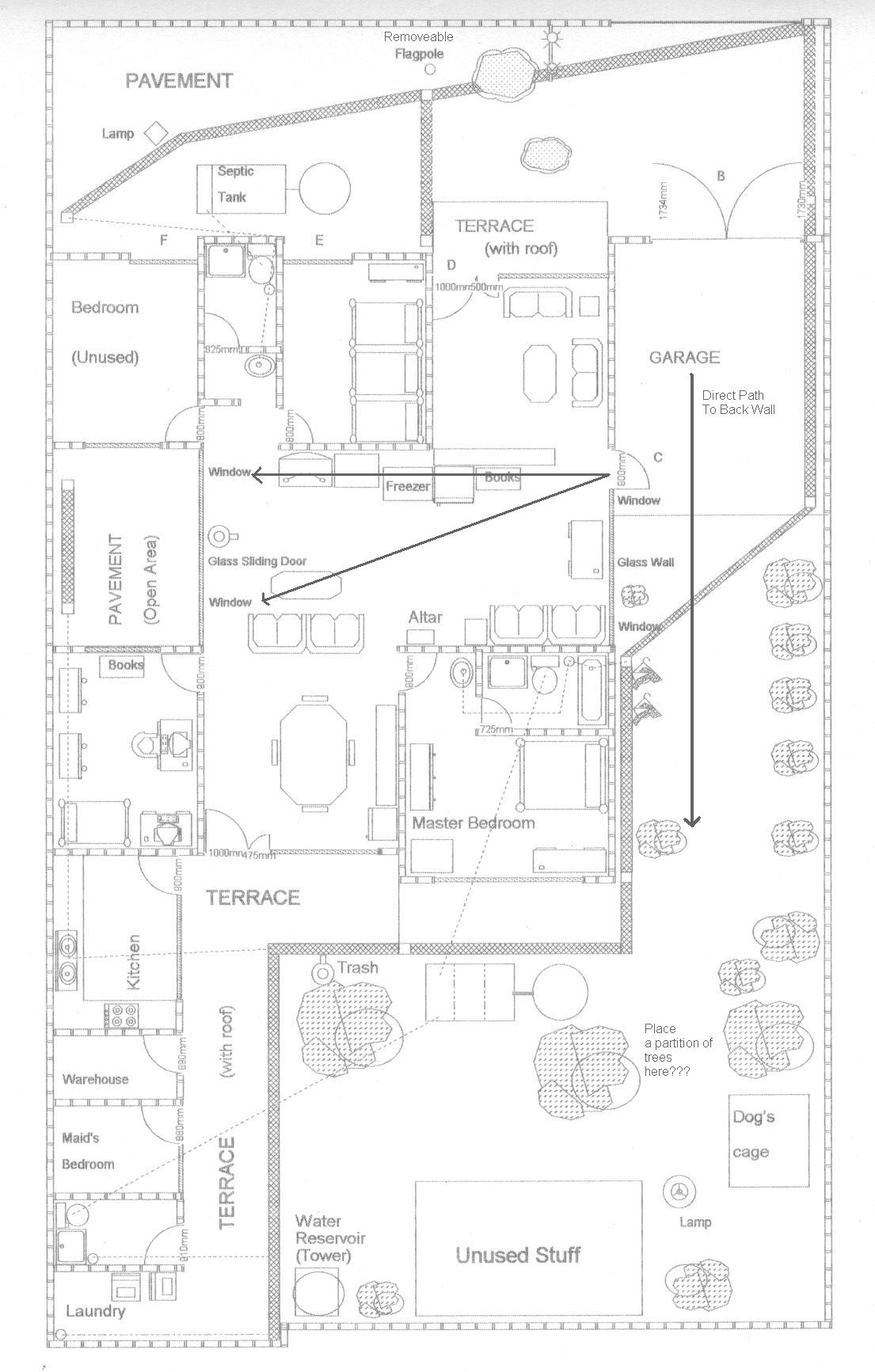
Dear Cecil I'd like to ask you if terrace with roof is considered missing corner or protusion? Please see the picture files: "Pic taken from top right corner #2.jpg" and "Missing Corner in NE.jpg". Thanks in advance. Regards, Wasis
-
A six (6) hollow-rod brass wind chime for Feng Shui use
Dear Cecil, May I know where you bought the windchime? And how much did it cost? Thanks in advance. Regards, Wasis
-
Leaks
Dear Cecil, What do you think about my planning to place a partition of trees in the backyard (please see the attached picture I sent along with my last email)? Is it effective to encounter the direct path? been removed. tops. So that one cannot see water. Thanks in advance. Regards, Wasis
-
Protusion at South-East sector
Dear Cecil, Is there a cure for an inauspicious protusion (ie: at south east)? Thanks in advance. Regards, Wasis
-
Leaks
Dear Cecil, Also, I have a water reservoir tower and laundry area at the back of the house. Is this considered leak? Thanks in advance. Regards, Wasis
-
Bottle Gourd
Dear Cecil, Today I went to Chinese art shops to find bottle gourds. All I found are attached with pictures such as swastika, Kwan Im, Ba Gua & Tiger. What do you think about the pictures on them? Some of them have holes at the top. I bought one with Kwan Im picture. I think it is more neutral than one with Ba Gua & Tiger pictures. However, mine doesn't have a hole at the top. Should I make one hole? Does size matter? Thanks in advance. Regards, Wasis ----- Original Message ----- From: "free-advice Listmanager" To: Sent: Thursday, August 08, 2002 8:00 AM Subject: Bottle Gourd
-
Leaks
Dear Cecil, We usually enter the house from the garage door. There is a direct wind path between this door and back of the house. Should we place a cover (ie: additional door) that completely closes that path? We currently use trees but they don't cover all. As for the current front door, in front of it there are 2 windows and a set of glass sliding doors (in living room). According to your tip, I should hang 2 bottle gourds. And how about the sliding doors? Any fix I should add? Just beside the front door, there are 2 windows and 1 glass wall. Is this considered "house with open mouth"? Thanks in advance. Regards, Wasis
-
Dragon
Dear Cecil, How do you determine that a dragon figurine/painting is considered auspicious or inauspicious? What are the benefits placing auspicious one in a specific location? Thanks in advance. Regards, Wasis
-
Bottle Gourd
Dear Cecil, What are the most favourable material and color for a bottle gourd? Do they depend on the sector they are hung (ie, Flying Star Chart)? Thanks in advance. Regards, Wasis
-
Windchime with Red Lantern
Dear Cecil, I've been searching 6 hollow rod whindchimes at many Chinese Art shops in my town. Almost all only have 4 or 5 rod windchimes. Eventually, today I found one. However the appearance is not the same as you have showed us. The rods are of various length and hanged at different heights. Their color is silver, perhaps they are made of aluminium. There isn't the I-Ching coin in the middle. Also there is a RED chinese lantern (with chinese characters - I don't know what it means) at the top. Is this acceptable? I'm worried if the red lantern represents FIRE since FIRE produces Earth (or Fire destroys Metal). Thanks in advance. Regards, Wasis
-
Marriage Possibility
Dear Cecil, I'm just curious about the meaning of "house with open mouth". Is it the same as "house with front door open outwards"? Do you have a picture as an example? Thanks in advance, Regards, Wasis
-
I'm new, need help, family pictures
Dear Cecil, I'm quite confused about your explanation below. Lamp post is considered wood. And you wrote the threat is water. Whereas water produces wood (productive flow). In this case, water will enhance wood, thus it will enhance the threat too. Please correct me if I'm wrong. Thanks in advance. Regards, Wasis
-
Change main door to north east
Dear Cecil, Here is the attachment. Please use HomePlan Pro to open the .PLN files. Feel free to ask me if you need more pictures. Thanks in advance. Regards, Wasis
-
Change main door to north east
Dear Cecil, Please see below and the attachment too: NOTE: My House 2.PLN is more accurate than Home Plan.JPG as you can understand the meaning of symbolic objects. I drew gutter, underground waste pipes, etc. Open it with Home Plan Pro shareware (http://www.homeplanpro.com). I also want to know what the purpose of Group Analysis report. haven't generated the Flying Star report. Thanks in advance. Regards, Wasis PS: I don't send the attachment yet since your system rejected my email if it contains large attachment.
-
Change main door to north east
Dear Cecil, It appears my mail server is being blocked by your system. So that my email was bounced back. I also cannot connect to your newsgroup server. Thanks. Regards, Wasis
-
Change main door to north east
Dear Cecil, Please see below: direction is inauspicious to the breadwinner. chart and NE - front door- Flying Star chart? Thanks in advance. Regards, Wasis
-
Change main door to north east
Dear Cecil, I'm a bit confused about changing my main door. We currently enter the house from garage. And the door connecting garage and house is at 78 degree. This direction is not suitable for my father, whose Gua is 8. So that we want to use back our former front door (29 degree). However, this direction is North East (Devil's Gate). So, is it still allowed to change the main door to north east? Do we need any additional protection? Thanks in advance. Regards, Wasis
-
North frontage
Dear Cecil, My house has a north-facing (please note it doesn't mean that the main door direction is North). Since North = Water, is it necessary to destroy the water element by planting trees? I post this question because my frontage is pavement with one or two potted plants. Are potted plants enough to destroy water? Thanks in advance. Regards, Wasis
-
Happy Buddha
-
Happy Buddha
Dear Cecil, Thank your for your quick response. The altar is used to pray to the ancestors. It is attached to the wall and 1,8 meter above the floor. As for the cabinet (facing outward), we use it to place figurines of Gods such as Kwan Im, God of Wealth, etc. However, they have never been prayed. Please see below: As for the painting of "8 Immortals", could you suggest where I should place it? Thanks in advance. Regards, Wasis (File attachment removed)
-
Happy Buddha
-
Moving of main door
Dear Cecil, When is a good time to move my main door (from door A to door B)? Is it ok to do it on moonlight (15th day)? Is there any ritual must be done? Thanks in advance. Regards, Wasis
-
Happy Buddha
Dear Cecil, Do the rulesets apply also to such figurines as Guan Gong, Buddha Maitreya, Kwan Im Po Sat, God of Wealth (Chai Sen Ye Ye)? As for an altar, is it ok to be placed on the same wall as the toilet? Thanks in advance. Regards, Wasis ----- Original Message ----- From: "Cecil Lee" Newsgroups: moderated.all.general.free-advice Sent: Thursday, May 02, 2002 3:41 PM Subject: Happy Budda

