Everything posted by Cecil Lee
-
HDB Tampines Bliss - Standard BTO (Feb 2026 Build-To-Order)
WHICH UNITS ARE LUCKY? Part 1: How is the luck of the Internal Feng Shui of this unit? [35 marks] Part 2: External Feng Shui luck? [35 marks] Part 3: How suitable is the unit - Frontage, Kitchen & Main Bedroom? [30 marks] +++ Depends on the Internal Layout & Sectors - How Lucky? Expected T.O.P. in 2027 There are only two facing directions for this development: N2 or S2 Good, Better, Best! N2 = Very Lucky. Frontage has the auspicious double #9's. +++ NW3 = Very Lucky. Frontage has the auspicious double #9's. From 2024 till 2043. Plus also can benefit from a Sum of Ten Water Star. The Rest! N1 = Less Lucky as wealth luck [Double 9's] wasted at the rear. +++ S2-3 = Less Lucky as wealth luck [Double 9's] wasted at the rear. ++++++++++++++++++++++++++++++++++ But also need to review/consider the individual Internal Layout Plan & this is just part of the many considerations in a home purchase. However the above does not take into consideration things like: Kitchen/Stove at Inauspicious Fire @ Heaven's Gate or Poison arrow aimed towards the unit, proximity to common bin etc.. +++++++++++++++++++++++++++ +++++++++++++++++ ++++ +++ Location, location, location? Sha Qi? Poison Arrow? Watch Your Front, Sides & Back! Our New e-Book 12 Practical Tips for Choosing a new BTO Flat with External Feng Shui Considerations POOR SCORE? THESE ARE SOME CONCERNS: Sha Qi or Poison arrow(s) from Sharp Corner(s) 天斩煞 (tiān zhǎn shà) = Tian Zhan Sha etc... +++++++++++++++++++++++++++ +++++++++++++++++ ++++ +++ How Suitable to breadwinner? Please note that has yet to take into consideration: 1. How suitable is the unit to the main breadwinner & 2. External Shapes and Forms of the unit TOTAL SCORE = 35 + 35 + 30 = 100% Get Expert Help: ++++++++++++++++++ +++++++++ How do you Feng Shui your home? Use your front door? Who are the Conservatives & the Modernist? +++ Type in the unit number to find out OPTION 1 Please go to this link to check a unit number: https://www.geomancy.net/content/personalised-reports/free-feng-shui-reports/house-number-report/about-house-number-report [Need to create a free account to access it] or OPTION 2 Go to URL: https://login.geomancy.net On the blue navigation on the left, click under Free Reports | House Number.
-
HDB Tampines Nova - Plus BTO (Feb 2026 Build-To-Order) - Which units are lucky?
WHICH UNITS ARE LUCKY? Part 1: How is the luck of the Internal Feng Shui of this unit? [35 marks] Part 2: External Feng Shui luck? [35 marks] Part 3: How suitable is the unit - Frontage, Kitchen & Main Bedroom? [30 marks] +++ Depends on the Internal Layout & Sectors - How Lucky? Expected T.O.P. in 2027 Expected T.O.P. in 2027 Good, Better, Best! N3= Very Lucky. Frontage has the auspicious double #9's. +++ NE2 = Very Lucky. Frontage has the auspicious double #9's. NW2 = Very Lucky. Frontage has the auspicious double #9's. From 2024 till 2043. Plus also can benefit from a Sum of Ten Water Star. +++ E3 = Very Lucky. Frontage has the auspicious double #9's. From 2024 till 2043. The Rest! SW2 = Less Lucky as wealth luck [Double 9's] wasted at the rear. +++ W3 = Unlucky as need to be extra careful of Health concerns. +++++++++++++++++++++++++++++++++ But also need to review/consider the individual Internal Layout Plan & this is just part of the many considerations in a home purchase. However the above does not take into consideration things like: Kitchen/Stove at Inauspicious Fire @ Heaven's Gate or Poison arrow aimed towards the unit, proximity to common bin etc.. +++++++++++++++++++++++++++ +++++++++++++++++ ++++ +++ Location, location, location? Sha Qi? Poison Arrow? Watch Your Front, Sides & Back! Our New e-Book 12 Practical Tips for Choosing a new BTO Flat with External Feng Shui Considerations POOR SCORE? THESE ARE SOME CONCERNS: Sha Qi or Poison arrow(s) from Sharp Corner(s) 天斩煞 (tiān zhǎn shà) = Tian Zhan Sha etc... +++++++++++++++++++++++++++ +++++++++++++++++ ++++ +++ How Suitable to breadwinner? Please note that has yet to take into consideration: 1. How suitable is the unit to the main breadwinner & 2. External Shapes and Forms of the unit TOTAL SCORE = 35 + 35 + 30 = 100% Get Expert Help: ++++++++++++++++++ +++++++++ How do you Feng Shui your home? Use your front door? Who are the Conservatives & the Modernist? +++ Type in the unit number to find out OPTION 1 Please go to this link to check a unit number: https://www.geomancy.net/content/personalised-reports/free-feng-shui-reports/house-number-report/about-house-number-report [Need to create a free account to access it] or OPTION 2 Go to URL: https://login.geomancy.net On the blue navigation on the left, click under Free Reports | House Number.
-
HDB Tampines Bliss - Standard BTO (Feb 2026 Build-To-Order)
The Remaining February 2026 HDB BTO Launch Sites Is my unit lucky? February 2026 BTO and SBF Exercises Choose your home from a wide selection of 9,012 flats offered under the February 2026 Build-To-Order (BTO) and Sale of Balance Flats (SBF) exercises. BTO:4,692 units ranging from 2-room Flexi to 5-room flats will be launched across 6 BTO projects. Standard: Sembawang Voyage, Sembawang Deck, Tampines Bliss Plus: Kim Keat Crest, Tampines Nova Prime: Redhill Peaks Close to 8 in 10 flats offered have waiting times of less than 4 years. Amongst them, the flats at Sembawang Deck, Tampines Bliss, and Tampines Nova are Shorter Waiting Time (SWT) flats with waiting times of less than 3 years. Flat buyers who are looking to move into their flats sooner may consider applying for these projects. SBF: 4,320 balance flats ranging from Community Care Apartments to 3Gen flats in various towns/ estates. About 1 in 5 flats are already completed. Kim Keat Crest https://www.geomancy.net/forums/topic/20823-hdb-kim-keat-crest-plus-bto-feb-2026-build-to-order/ Redhill Peaks https://www.geomancy.net/forums/topic/20824-hdb-redhill-peaks-prime-location-bto-feb-2026-build-to-order/ Sembawang Deck https://www.geomancy.net/forums/topic/20825-hdb-sembawang-deck-standard-bto-feb-2026-build-to-order/ Sembawang Voyage https://www.geomancy.net/forums/topic/20826-hdb-sembawang-voyage-standard-bto-feb-2026-build-to-order/ Tampines Nova https://www.geomancy.net/forums/topic/20828-hdb-tampines-nova-plus-bto-feb-2026-build-to-order/
-
HDB Sembawang Voyage - Standard BTO (Feb 2026 Build-To-Order)
The Remaining February 2026 HDB BTO Launch Sites February 2026 BTO and SBF Exercises Choose your home from a wide selection of 9,012 flats offered under the February 2026 Build-To-Order (BTO) and Sale of Balance Flats (SBF) exercises. BTO:4,692 units ranging from 2-room Flexi to 5-room flats will be launched across 6 BTO projects. Standard: Sembawang Voyage, Sembawang Deck, Tampines Bliss Plus: Kim Keat Crest, Tampines Nova Prime: Redhill Peaks Close to 8 in 10 flats offered have waiting times of less than 4 years. Amongst them, the flats at Sembawang Deck, Tampines Bliss, and Tampines Nova are Shorter Waiting Time (SWT) flats with waiting times of less than 3 years. Flat buyers who are looking to move into their flats sooner may consider applying for these projects. SBF: 4,320 balance flats ranging from Community Care Apartments to 3Gen flats in various towns/ estates. About 1 in 5 flats are already completed. Kim Keat Crest https://www.geomancy.net/forums/topic/20823-hdb-kim-keat-crest-plus-bto-feb-2026-build-to-order/ Redhill Peaks https://www.geomancy.net/forums/topic/20824-hdb-redhill-peaks-prime-location-bto-feb-2026-build-to-order/ Sembawang Deck https://www.geomancy.net/forums/topic/20825-hdb-sembawang-deck-standard-bto-feb-2026-build-to-order/ Tampines Bliss https://www.geomancy.net/forums/topic/20827-hdb-tampines-bliss-standard-bto-feb-2026-build-to-order/ Tampines Nova https://www.geomancy.net/forums/topic/20828-hdb-tampines-nova-plus-bto-feb-2026-build-to-order/
-
HDB Sembawang Deck - Standard BTO (Feb 2026 Build-To-Order)
The Remaining February 2026 HDB BTO Launch Sites February 2026 BTO and SBF Exercises Choose your home from a wide selection of 9,012 flats offered under the February 2026 Build-To-Order (BTO) and Sale of Balance Flats (SBF) exercises. BTO:4,692 units ranging from 2-room Flexi to 5-room flats will be launched across 6 BTO projects. Standard: Sembawang Voyage, Sembawang Deck, Tampines Bliss Plus: Kim Keat Crest, Tampines Nova Prime: Redhill Peaks Close to 8 in 10 flats offered have waiting times of less than 4 years. Amongst them, the flats at Sembawang Deck, Tampines Bliss, and Tampines Nova are Shorter Waiting Time (SWT) flats with waiting times of less than 3 years. Flat buyers who are looking to move into their flats sooner may consider applying for these projects. SBF: 4,320 balance flats ranging from Community Care Apartments to 3Gen flats in various towns/ estates. About 1 in 5 flats are already completed. Kim Keat Crest https://www.geomancy.net/forums/topic/20823-hdb-kim-keat-crest-plus-bto-feb-2026-build-to-order/ Redhill Peaks https://www.geomancy.net/forums/topic/20824-hdb-redhill-peaks-prime-location-bto-feb-2026-build-to-order/ Sembawang Voyage https://www.geomancy.net/forums/topic/20826-hdb-sembawang-voyage-standard-bto-feb-2026-build-to-order/ Tampines Bliss https://www.geomancy.net/forums/topic/20827-hdb-tampines-bliss-standard-bto-feb-2026-build-to-order/ Tampines Nova https://www.geomancy.net/forums/topic/20828-hdb-tampines-nova-plus-bto-feb-2026-build-to-order/
-
HDB Redhill Peaks - Prime Location BTO (Feb 2026 Build-To-Order) - Which units are lucky?
The Remaining February 2026 HDB BTO Launch Sites Which Home? February 2026 BTO and SBF Exercises Choose your home from a wide selection of 9,012 flats offered under the February 2026 Build-To-Order (BTO) and Sale of Balance Flats (SBF) exercises. BTO:4,692 units ranging from 2-room Flexi to 5-room flats will be launched across 6 BTO projects. Standard: Sembawang Voyage, Sembawang Deck, Tampines Bliss Plus: Kim Keat Crest, Tampines Nova Prime: Redhill Peaks Close to 8 in 10 flats offered have waiting times of less than 4 years. Amongst them, the flats at Sembawang Deck, Tampines Bliss, and Tampines Nova are Shorter Waiting Time (SWT) flats with waiting times of less than 3 years. Flat buyers who are looking to move into their flats sooner may consider applying for these projects. SBF: 4,320 balance flats ranging from Community Care Apartments to 3Gen flats in various towns/ estates. About 1 in 5 flats are already completed. Kim Keat Crest https://www.geomancy.net/forums/topic/20823-hdb-kim-keat-crest-plus-bto-feb-2026-build-to-order/ Sembawang Deck https://www.geomancy.net/forums/topic/20825-hdb-sembawang-deck-standard-bto-feb-2026-build-to-order/ Sembawang Voyage https://www.geomancy.net/forums/topic/20826-hdb-sembawang-voyage-standard-bto-feb-2026-build-to-order/ Tampines Bliss https://www.geomancy.net/forums/topic/20827-hdb-tampines-bliss-standard-bto-feb-2026-build-to-order/ Tampines Nova https://www.geomancy.net/forums/topic/20828-hdb-tampines-nova-plus-bto-feb-2026-build-to-order/
-
HDB Kim Keat Crest - Plus BTO (Feb 2026 Build-To-Order) - Which units are lucky?
The Remaining February 2026 HDB BTO Launch Sites February 2026 BTO and SBF Exercises Choose your home from a wide selection of 9,012 flats offered under the February 2026 Build-To-Order (BTO) and Sale of Balance Flats (SBF) exercises. BTO:4,692 units ranging from 2-room Flexi to 5-room flats will be launched across 6 BTO projects. Standard: Sembawang Voyage, Sembawang Deck, Tampines Bliss Plus: Kim Keat Crest, Tampines Nova Prime: Redhill Peaks Close to 8 in 10 flats offered have waiting times of less than 4 years. Amongst them, the flats at Sembawang Deck, Tampines Bliss, and Tampines Nova are Shorter Waiting Time (SWT) flats with waiting times of less than 3 years. Flat buyers who are looking to move into their flats sooner may consider applying for these projects. SBF: 4,320 balance flats ranging from Community Care Apartments to 3Gen flats in various towns/ estates. About 1 in 5 flats are already completed. Redhill Peaks https://www.geomancy.net/forums/topic/20824-hdb-redhill-peaks-prime-location-bto-feb-2026-build-to-order/ Sembawang Deck https://www.geomancy.net/forums/topic/20825-hdb-sembawang-deck-standard-bto-feb-2026-build-to-order/ Sembawang Voyage https://www.geomancy.net/forums/topic/20826-hdb-sembawang-voyage-standard-bto-feb-2026-build-to-order/ Tampines Bliss https://www.geomancy.net/forums/topic/20827-hdb-tampines-bliss-standard-bto-feb-2026-build-to-order/ Tampines Nova https://www.geomancy.net/forums/topic/20828-hdb-tampines-nova-plus-bto-feb-2026-build-to-order/
-
HDB Tampines Nova - Plus BTO (Feb 2026 Build-To-Order) - Which units are lucky?
The Remaining February 2026 HDB BTO Launch Sites February 2026 BTO and SBF Exercises Choose your home from a wide selection of 9,012 flats offered under the February 2026 Build-To-Order (BTO) and Sale of Balance Flats (SBF) exercises. BTO:4,692 units ranging from 2-room Flexi to 5-room flats will be launched across 6 BTO projects. Standard: Sembawang Voyage, Sembawang Deck, Tampines Bliss Plus: Kim Keat Crest, Tampines Nova Prime: Redhill Peaks Close to 8 in 10 flats offered have waiting times of less than 4 years. Amongst them, the flats at Sembawang Deck, Tampines Bliss, and Tampines Nova are Shorter Waiting Time (SWT) flats with waiting times of less than 3 years. Flat buyers who are looking to move into their flats sooner may consider applying for these projects. SBF: 4,320 balance flats ranging from Community Care Apartments to 3Gen flats in various towns/ estates. About 1 in 5 flats are already completed. Kim Keat Crest https://www.geomancy.net/forums/topic/20823-hdb-kim-keat-crest-plus-bto-feb-2026-build-to-order/ Redhill Peaks https://www.geomancy.net/forums/topic/20824-hdb-redhill-peaks-prime-location-bto-feb-2026-build-to-order/ Sembawang Deck https://www.geomancy.net/forums/topic/20825-hdb-sembawang-deck-standard-bto-feb-2026-build-to-order/ Sembawang Voyage https://www.geomancy.net/forums/topic/20826-hdb-sembawang-voyage-standard-bto-feb-2026-build-to-order/ Tampines Bliss https://www.geomancy.net/forums/topic/20827-hdb-tampines-bliss-standard-bto-feb-2026-build-to-order/
-
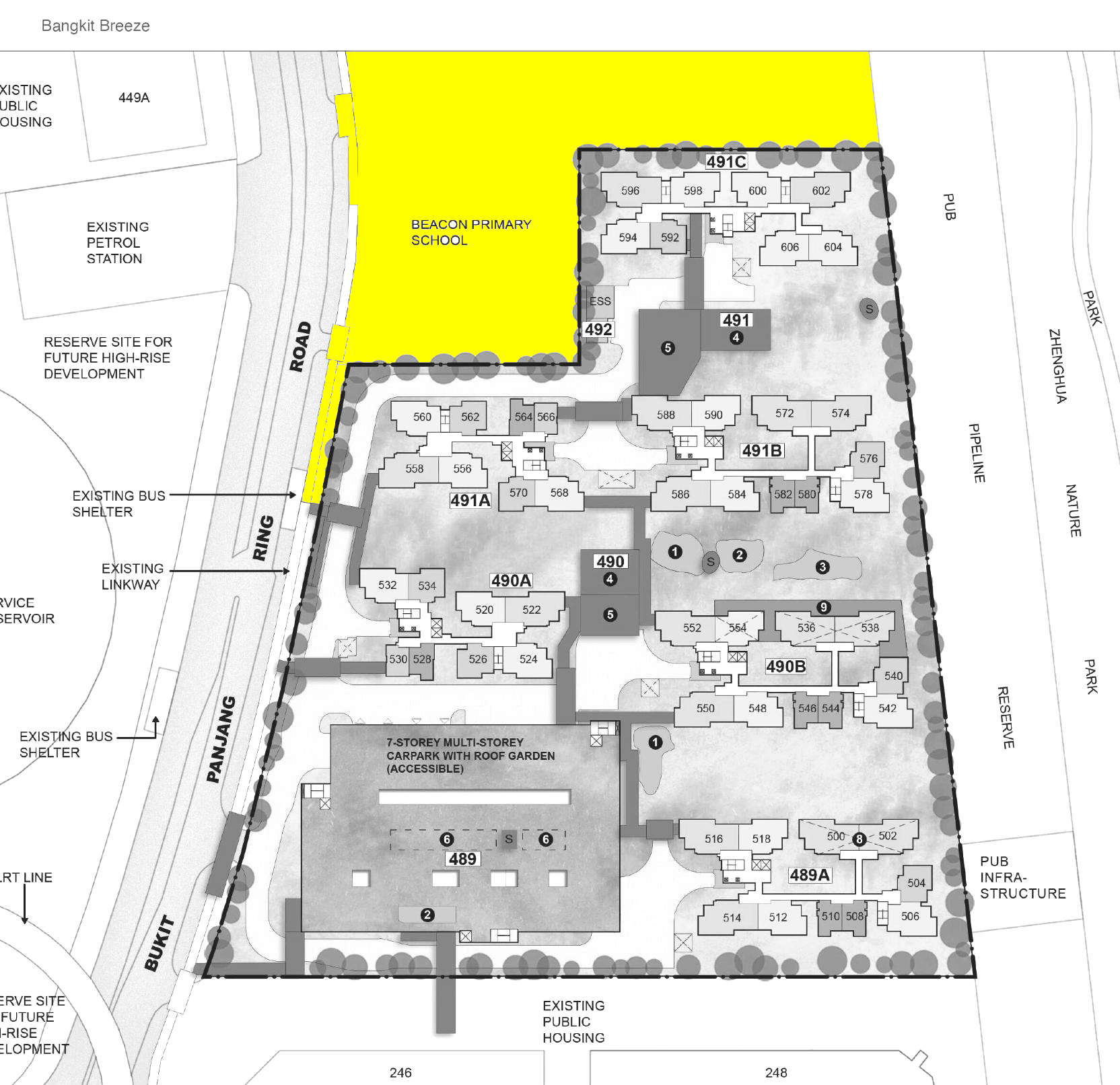
HDB Tampines Nova - Plus BTO (Feb 2026 Build-To-Order) - Which units are lucky?
HDB Tampines Nova - Plus BTO - Located between Tampines Ave 5 & Tampines Concourse Estimated T.O.P. on 1st June 2029 Tampines Nova - Plus (Feb 2026 Build-To-Order) Tampines Bounded by Tampines Ave 5, Tampines Central 8, and Tampines Concourse, Tampines Nova comprises 2 residential blocks of up to 14 storeys high, with 255 units of 2-room Flexi and 4-room flats. These flats will be offered as Plus flats under the new flat classification framework, and will have shorter waiting times of less than 3 years. The name Tampines Nova captures the project’s locale at the heart of Tampines Regional Centre, amidst the vibrant mix of public transport, retail, F&B, and recreational offerings which surround it. The project features a central courtyard, designed as a communal area with a variety of amenities, such as children's playgrounds and fitness corners. A 7-storey Multi-Storey Car Park (MSCP) will help to buffer views of the adjacent commercial development, and will house a preschool on the ground floor. The roof garden atop the MSCP provides residents with an elevated space for relaxation, featuring additional fitness facilities, a community gardening area, and scenic views of the central courtyard and its surrounding greenery.
-
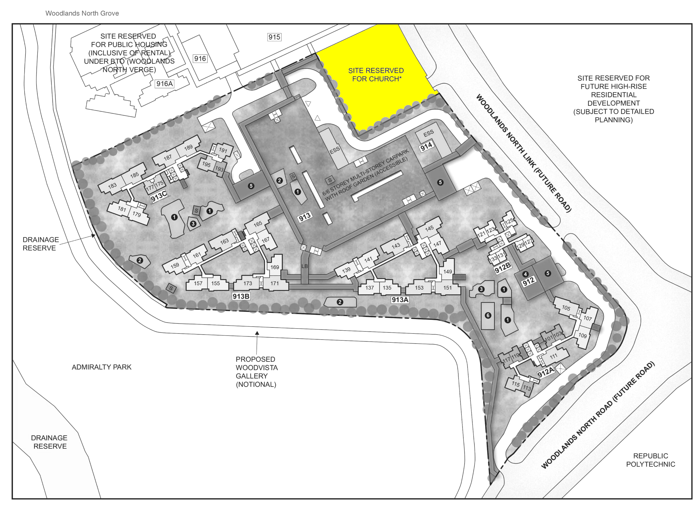
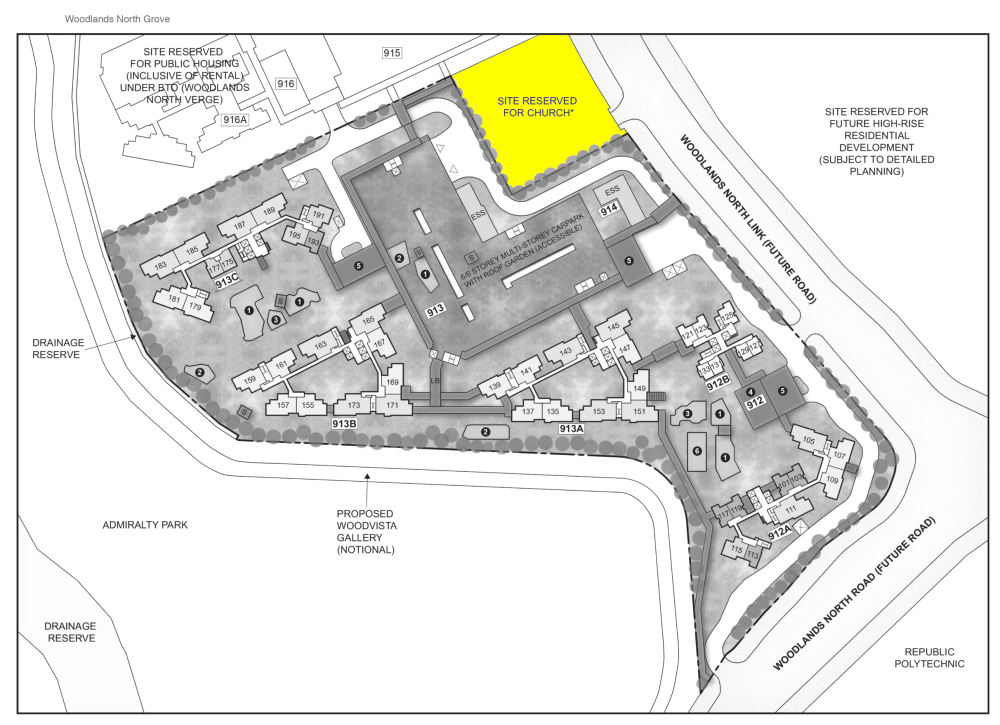
HDB Tampines Bliss - Standard BTO (Feb 2026 Build-To-Order)
HDB Tampines Bliss - Standard BTO - between Tampines Ave 2 and Tampines Street 22 Estimated T.O.P. on 1st September 2028 Tampines Bliss - Standard (Feb 2026 Build-To-Order) Tampines Tampines Bliss , bordered by Tampines Avenue 2 and Tampines Street 22, comprises 3 residential blocks of 10 storeys each, with 284 units of 3-room and 4-room flats. These flats will be offered as Standard flats under the new flat classification framework, and will have shorter waiting times of less than 2 years. The name Tampines Bliss evokes the serenity of the old kampung days, combined with the vibrancy of modern urban living. The precinct design incorporates kampung-inspired elements, featuring green spaces and communal gathering areas which provide opportunities for both relaxation and interaction with neighbours. At the heart of Tampines Bliss is a vibrant green corridor, lined with children's playgrounds, fitness areas, and sheltered spaces. This is complemented by a peaceful corner near the nursing home, which also features elderly fitness facilities and a therapeutic garden. Atop the 4-storey Multi-Storey Car Park (MSCP) is a roof garden, featuring additional fitness facilities, a community gardening area, and a scenic viewing point. A preschool and an eating house will be located at the ground level of the MSCP to serve the needs of the residents and the wider neighbourhood.
-
HDB Sembawang Voyage - Standard BTO (Feb 2026 Build-To-Order)
HDB Sembawang Voyage - Standard BTO @ Sembawang North Estimated T.O.P. on 1st June 2030 Sembawang Voyage - Standard (Feb 2026 Build-To-Order) Sembawang Sembawang Voyage is located in Sembawang North, Sembawang’s newest housing area, and is bounded by Sembawang Drive, Admiralty Street, and Admiralty Lane. The project comprises 4 residential blocks, ranging from 26 to 29 storeys, and will offer a total of 1,173 units of 2-room Flexi, 4-room, and 5-room flats. 1 of these blocks include another 56 rental units. Sembawang Voyage will be offered as Standard flats under the new flat classification framework. Named to reflect Sembawang's shipyard heritage, the project will be adorned with colonial and nautical design elements that pay homage to the area's rich maritime history. Sembawang Voyage will feature a 7-storey Multi-Storey Car Park (MSCP) with a rooftop garden that includes dedicated spaces for community gardening. Residents of all ages can enjoy a range of outdoor amenities within the project, including fitness stations for adults and the elderly, a hardcourt, and children's playgrounds. A preschool will be located on the ground level of the MSCP, providing added convenience for young families. Residents will also benefit from a new neighbourhood centre adjacent to the project, which will offer shopping and dining options, community facilities, and a linear park with playgrounds and fitness stations.
-
HDB Sembawang Deck - Standard BTO (Feb 2026 Build-To-Order)
HDB Sembawang Deck - Standard BTO @ Sembawang North Estimated T.O.P. is 1st September 2029 Sembawang Deck - Standard (Feb 2026 Build-To-Order) Sembawang Sembawang Deck is located in Sembawang North, Sembawang’s newest housing area, and is bounded by Admiralty Street and Admiralty Lane. The project comprises 4 residential blocks ranging from 20 to 25 storeys, and will offer a total of 777 units of 2-room Flexi, 3-room, 4-room and 5-room flats. These flats will be offered as Standard flats under the new flat classification framework, and will have shorter waiting times of less than 3 years. Named after a ship's deck, Sembawang Deck pays homage to Sembawang's shipyard heritage. Just like how a ship's deck is the hub of community life, Sembawang Deck is designed to foster connectivity and shared spaces. The project features a Multi-Storey Car Park (MSCP) with a rooftop garden, including spaces for community gardening. Residents can enjoy a variety of outdoor amenities within the project, such as playgrounds and fitness stations for adults and the elderly. Sembawang Deck is integrated with the adjacent linear park, providing easy access to additional green spaces for relaxation and exercise. Sembawang Deck will also offer a range of facilities at the MSCP, including an eating house, minimart, shops, and a preschool. In addition to these daily conveniences, residents will benefit from the new neighbourhood centre nearby, which will offer more amenities and services.
-
HDB Redhill Peaks - Prime Location BTO (Feb 2026 Build-To-Order) - Which units are lucky?
HDB Redhill Peaks - Prime Location @ Redhill Close Estimated T.O.P. Date = 1st June 2031 Redhill Peaks - Prime (Feb 2026 Build-To-Order) Bukit Merah Redhill Peaks is located along Redhill Close, near Redhill MRT station and amenities such as Bukit Merah Town Centre and Redhill Market and Food Centre. The project comprises 3 residential blocks of 49 storeys, with a total of 1,052 units of 2-room Flexi, 3-room, and 4-room flats offered as Prime flats under the new flat classification framework. These new blocks will form a cohesive precinct with Blocks 144A, 144B, and 145A, under the same precinct name. The project features a range of facilities, including a preschool, a residents’ network centre, fitness stations for adults and elderly, and children’s playgrounds. The roof garden atop the Multi-Storey Car Park (MSCP) and sky terraces at Blocks 146A, 147A, 148A, provide residents with spaces to connect, unwind, and enjoy scenic views of the surrounding cityscape. Residents will also have access to additional amenities at the adjacent Blocks 144A, 144B, and 145.
-
HDB Kim Keat Crest - Plus BTO (Feb 2026 Build-To-Order) - Which units are lucky?
HDB Kim Keat Crest - Plus Estimated T.O.P. Date 1st December 2029 Kim Keat Crest - Plus (Feb 2026 Build-To-Order) Toa Payoh Bounded by Kim Keat Avenue and Toa Payoh East, Kim Keat Crest comprises 5 residential blocks, including 1 block dedicated to rental flats. The remaining 4 blocks, ranging from 26 to 30 storeys, will offer 1,151 units of 2-room Flexi, 3-room, and 4-room flats as Plus flats under the new flat classification framework. 1 of these blocks will also include 42 units of rental flats. Inspired by the crest of a wave, the project's name reflects its location near Kallang River and its riverine landscape design concept. This design will feature pathways that mimic the river's meandering flow, connecting residents to green spaces and landscaped courtyards. The building facades will echo this fluid theme with interlacing lines and textured panels that create a rhythmic visual pattern across the project. Kim Keat Crest will offer outdoor amenities for residents of all ages, such as children's playgrounds, fitness corners, and a hardcourt. A 3-storey preschool will also provide added convenience for young families. The Multi-Storey Car Park (MSCP) has a roof garden, providing an additional green space for relaxation. Commercial facilities including a minimart, an eating house, and shops will also be available to serve the daily needs of the community.
-
Here are the advantages of this kind of wooden fencing: overlapping wooden fencing with interspacing gaps.
-
Here are the advantages of this kind of wooden fencing: overlapping wooden fencing with interspacing gaps.
-
Lentoria Residences @ Lentor Hills Road - Which units are lucky?
Discover the World’s Oldest Feng Shui Forum (C) Geomancy.net Geomancy.net holds the distinction of being the oldest Feng Shui forum globally, serving as a significant platform for discussions and insights related to this ancient practice. Its longevity underscores its importance as a Leader in the field of Feng Shui. How can we help you today? GET EXPERT HELP: IMPROVE YOUR HEALTH, WEALTH & HAPPINESS TODAY Comprehensive Home Package [A.]: On-site or [B.]: Off-site for HDB / Condo / EC & Landed Properties for New/Re-Sale House or facing financial/ marriage/ relationship/ health issues Do you offer a 1 visit On-site audit? How much? " As much as we see, Geomancy.net has great web presence built up over the years and is seen as one of the SG market leaders in residential house audit. " Transparent Pricing & No Hidden Costs. No Purchase of Products. Cecil Lee, +65 9785-3171 / support@geomancy.net House Hunting? We will help you select the most auspicious unit! Learn More The Experts in House Hunting AUSPICIOUS DATES FOR ONE OR TWO PERSONS Please visit 30 Days Auspicious Date for ONE or TWO Person(s) - FengShui.Geomancy.Net +++ Related: Non-Religious Chinese Customs For New Re-Sale Home +++ ALL ELSE FANNING CALM & LET CECIL HANDLE IT
-
Health Promotion SG & NEA
-
HDB Tampines GreenGlen (Tampines Green Glen) BTO launched in September 2019
-
Is it a good day to start work on Chinese New Year 2026. When do you open? What is the Fire Horse forecast for 2026?
Li Chun (立春) is the “Beginning of Spring” in the traditional East Asian calendar. It’s one of the 24 solar terms used in Chinese (and related) calendars to track the seasons based on the Sun’s position, not the lunar months. Key points: - What it is: Li Chun - It marks the **start of spring** in the traditional agricultural calendar. - Astronomically, it’s when the Sun reaches **315° ecliptic longitude**, usually **February 3–5** each year. - Cultural significance: - Traditionally seen as the time when **Yang energy begins to rise** and nature “wakes up” from winter. - Farmers used it to plan plowing, sowing, and other spring activities. - In folk customs, people may: - “**Bite spring**” (咬春) – eat spring rolls or fresh vegetables. - **Stand eggs** on their ends for luck. - In some places (especially among Chinese communities in Singapore/Malaysia), people do **Li Chun bank deposits** to symbolize “growing” wealth for the year. - Li Chun and the zodiac year: - In **astrology/Four Pillars (Ba Zi)**, some practitioners treat **Li Chun as the real start of the new zodiac year**, not Lunar New Year. - The year’s **Heavenly Stem and Earthly Branch** (e.g., Fire Horse, etc.) sometimes “start” from Li Chun in this system. - For 2026: - In 2026, Li Chun falls on 4 February 2026** (in most East Asian time zones, including China). - That date is therefore considered the **start of the spring season** in the traditional solar calendar, and in some metaphysical systems, the **start of the 2026 zodiac year**. +++ POSB/DBS Kovan Heartland Branch On 4th February 2026, at 6am people were already seated (lined up) to queue to get into the bank +++ On the evening of 6th February 2026
-
Actual directions linked with the interior walls
-
Actual directions linked with the interior walls
-
FIVE YELLOWS vs Properity in 8-House
-
Is it a good day to start work on Chinese New Year 2026. When do you open? What is the Fire Horse forecast for 2026?
-
Singapore bus stop shelter designs from the 1950s to today
Bus Stop at Outram Park in the 1980’s. it has a sundry kiosk attached to the bus shelter. Where there is opportunity to sell some sundry items to those who are waiting for bus to arrive.

