Skip to content
View in the app

A better way to browse. Learn more.

FengShui.Geomancy.Net

A full-screen app on your home screen with push notifications, badges and more.

To install this app on iOS and iPadOS
  1. Tap the Share icon in Safari
  2. Scroll the menu and tap Add to Home Screen.
  3. Tap Add in the top-right corner.
To install this app on Android
  1. Tap the 3-dot menu (⋮) in the top-right corner of the browser.
  2. Tap Add to Home screen or Install app.
  3. Confirm by tapping Install.
About Feng Shui at Geomancy.Net
Sponsored Link
 

Sengkang Grand Residences by CapitaLand and CDL at Bangkok MRT

Featured Replies

  • Staff

Sengkang Grand Residences by CapitaLand and CDL at Bangkok MRT launching 2019

A new mixed development at Buangkok MRT

Expected TOP
Estimated 2022 - 2023
Tenure
99 years
No. of Units
Approximately 682 units
Vacant possession will be 30 Nov 2023

image2_orig.jpgSengkang Central Residence.jpgscreenshot-2018-12-10-at-4-21-24-pm_orig.jpglocation-small_orig.jpg

  • 3 months later...

Hi Master Cecil, Which stack of Sengkang Central Residences is good to see and worth buying? would you be sharing with us? And also i do understand that next year is a change of period, so does the period starts from when we buy or when we move in?

  • Author
  • Staff

Thanks for the heads up!

When I am able to find time, will certainly look at this project.

Since no two projects/developments are the same.

Thus, usually, I will try to highlight major Feng Shui considerations. 

Look out for the review -:) Within or around these few weeks.

I hope the site plan and layouts will be available... LOL

4909A1B6-0F37-4E17-B639-08D96ABA86A6.thumb.png.6db36be8c2b7372f0d3b0ee66cddee0b.png

The Residental side has been updated to: Sengkang Grand Residences.

  • Author
  • Staff

Looks like the ebrochure or site plan or floor plans are not so readily available, yet.

If anyone has these or knows a link, please let me know. Thanks!

  • Author
  • Staff

Case Study 1: Stacks/units of Esparina Residences & Jewel at Buangkok facing the future Sengkang Central Mixed developments

Often buying a unit facing an empty plot of land does not always guarantee unblocked views or approximately 2.5 to 3 years of construction noise and dusts.

When I did this review for a client not too long ago; I had highlighted that one can never know when the empty plot of land will have construction.

Today, as all of us are aware... this odd shaped plot is the new Sengkang Central Mixed development... 

1130658657_CANORCANNOTBUYESPARINARESIDENCESx.thumb.png.2fc3cd396ab9fa0d1f4c88212bac18a8.png

Note: Only this "Part 4" is relevant to this topic. Thus no other Parts 1, 2 or 3 are enclosed, here.

As expected... Singapore perhaps seems bent on a population of 10 million...that is why... any empty plot of land ... has a high chance of being built.... 

I recalled.. when the UOL 1km mall formerly at the Lion City Hotel was completed... it has to compete with Paya Lebar Square, SingPost building.. now it was renamed Kinex... Simply too many malls in SGP... LOL

  • 1 month later...
  • 3 weeks later...
  • Author
  • Staff

Case Study 2: 1st Viewpoint - Organic Block design consists of: A Snake, a TRI-spoke and two standalones

1779394246_blockdesign.png.fe15aa26a06dc1d00e327e7cd0037fa5.png

1. Not an ordinary architect can come up with the condo layout plan. More of a Right-brain inclined designer of this development.

1.1. Although the block layouts on first glance looks like Chaos. But seems like creative thinking went into the development's design = A plus.

2. I believe that the architect has done a pretty reasonable job in trying to provide the maximum amount of clear space for as many stacks/units.

4storey-new-WYG700.png.5b0f55f0395f85cb757f6bb14545940b.png1509483923_6th-storey-aPw600(1).png.f3f20cfcdf4244197257d70aafee9608.png

For example, uncommon way of placing three blocks: 72, 74 & 88 in a TRI-spoke or Three-legged arrangement:-

6th-storey-aPw600.png.e798fb9295a1c6294c0af2a6c3203da3.png

7F9FCFE8-8898-4B85-9D9D-84D14F8C5594.jpeg

  • Author
  • Staff

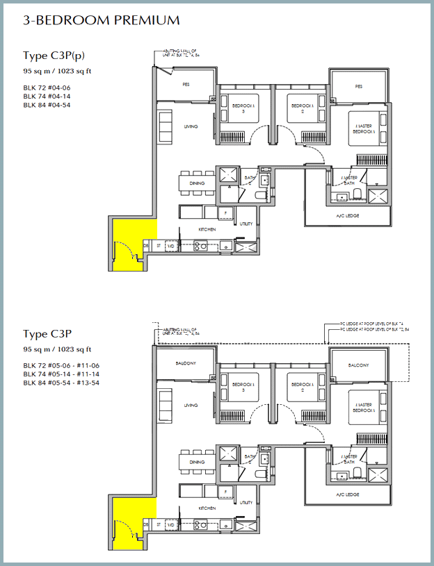
Case Study 3: Should I be concerned with the main entrance open towards an interior wall?

538224585_3-bedroompremiumC3P.thumb.png.c5fbaf0166b51703e7193efc2752fc1f.png1. There are some persons who felt that it is inauspicious to have the main entrance door opened immediately towards an interior wall.

1.1. Here, even some Feng Shui persons would say that this is symbolic of "meeting with obstacles".

1.2. Should I also be concerned? And avoid such units totally?

2. Frankly, some Feng Shui persons would say that this is a blessing in disguise. As the main entrance door does not open directly towards the balcony. Which is good.

3. Below: As shown below, qi (air-flow) can still easily flow into the home from this main door:-

1278250036_qiflow.png.6c585a7672e595f62a6cc198ad7f8c3f.png

3.1. Thus this should squell the critics of "the blockage" of qi flow.

3.2. In fact the wall does act as a natural partition bringing in qi towards the interior of the home.

4. This year alone there several developments that had T.O.P. and have similar layouts. For example, below, is from a unit at High Park Residences....2143859202_samplehighparkresidences.png.181aaa1df481eca2cd54d4d47ca03508.png  5. Thus generally, this type of layout plan can still be considered. And not avoided totally.

A15A86C2-7CA2-4373-AB94-4AC149D70978.jpeg.d555093a8b87ff0ebbdb6fb07d23073e.jpeg

  • Author
  • Staff

397388184_mercedesbenz.jpg.196e01f2916f87b5cf388f624d812b2d.jpg58279374_loosethreepointedstarstimesthree.png.9711eef39663f15b701d7372252d0026.pngCase Study 4: 2nd Viewpoint, A Better Explanation - Three-pointed stars x 3 = (Mercedes Benz Type logo)

1. In the past, there were some developments in a more orderly or pronounced three-pointed stars arrangement.

2. However, the block layouts in this case can be considered as a loose-loose three-pointed stars design x 3 sets:-

2.1 In case one has difficulty in understand, this, please see in BOLD RED the outlines...

3. The advantage of this is as mentioned in the earlier explanation is that it gives as much space for as many stacks/units unblocked views to a certain distance.

1176099634_AspenHeights.png.402681c799848b90e452068169560bf9.png4. Frankly, there is no right or wrong interpretation. If the objectives of providing clear space is the same.

5. This block design has been used before in Singapore.

5.1. For example, Aspen Heights condo has two blocks 261, 263 RIVER VALLEY ROAD.

5.2. Aspen Heights (999 years) T.O.P. in 1999 and was built by DBS Realty Pte Ltd with a total of 606 units:-

5.3. Can you see the similarity with Sengkang Grand Residences?

5.4. Actual photos at Aspen Heights:-

 

  • Author
  • Staff

Location, location, location: 1976271154_4STARS-Copy.gif.90f607a10b1dfb92b88cdb92544ce233.gif4

Although this is a mixed development and an odd shaped plot of land, this is a virgin plot of land. And today, fortunately, it is closer to Yio Chu Kang side than the congested Punggol area and Johor's (pollution estate).

Site Plan: 153638729_4.5STARS.gif.5d2352cc39c5656655e078d44541dbbc.gif4.5

Tri-spoke or Mercedes Benz type 3 pointed stars works well on this plot of land.

  • Author
  • Staff

Many Feng Shui Masters are actually a Feng Shui SHOP in disguise.

They don't care about the Feng Shui.

They only care about Sell, sell and sell  and $$, $$$ & $$$.

334972540_FAKE(7).jpg.56b3b5031bbc59315868aab88e2fa448.jpg

Ask: Must I buy from YOU?

  • Author
  • Staff

01038EB3-8247-4819-8522-A042D190C835.png.b7253e584d53bad0a2a2ec83867b82b0.png Case Study 5: A Gardeners’ Cabin to grow veggies and spices?

Really? 

Marketing Agents should know better or do proper research before posting such claims.

(Below: Even after 6 minutes after fogging, the last remaining smoke still loiter around  the third storey or higher, depending on the wind conditions...)

22A4AD91-EF7D-409E-A814-257E471A9F30.thumb.jpeg.762a72b5b52ed1dac270e6a788f764ed.jpeg

In reality, all condo developments are required to do a weekly fogging. No exceptions .. more so ... at likely mosquito breeding areas of a development.

Go cultivate, collect and cook the veggies and use the spices... that are weekly fogged... 

397D3DF1-3501-4317-BD83-0EF9D9220DE6.thumb.jpeg.bc6286b91fe3d825e811f125a472d743.jpeg
Most likely the food will certainly taste unique.. but unfortunately may be toxic... and cancerous, please.

993DE0BC-9ED2-4741-BA79-5997E75D2A85.thumb.jpeg.6d6786408bb7c036a50f6aa3c737a081.jpeg983DF932-3954-4403-8D5C-9CA8BA8EF703.thumb.jpeg.3a08ae419f5d12b3aaec568a8ed766a5.jpeg38BD897F-7456-4BC8-812F-A00AC192B930.thumb.jpeg.e0a04f1a99e10e071c03ec7bb6595225.jpegB54519CF-9CCD-43EC-8F9F-EAF9A2926019.thumb.jpeg.f638fdec310264fb76b1195a2b4686eb.jpeg

P.S. Note: Photos are not of Sengkang Grand Residences. Added by me for illustration purposes, only.

Often, even the Swimming pool gets the fogging chemicals.... takes a few hours for the water filter to do it’s work ...

More...

Location : Prive EC.. no more herbs.. just regular shrubs planted where the spices were suppose to be.

Even if herbs or spices are available: the maxim - see but not eat applies, here

Huh? These are landscape plants! Not spices.. LOL:

0F82FDE8-56E5-48E5-8432-CB4EAA669726.jpeg115FC151-C76B-446A-BF8D-6934D30D95A1.jpeg

  • Author
  • Staff

Interlude: I bet you did not know this! 

Often, I am always very curious to find out a certain word...

General Knowledge: What does GRAND mean in French?

1. Sengkang GRAND Residences, Piermont GRAND & Whistler GRAND? All these three developments; CDL (a subsidiary of Hong Leong) has a hand in it.

 2. While the English meaning of GRAND could also mean Luxurious or Luxury.

3. The French has a totally different meaning all together.

3.1. The adjective for GRAND in French is: Great, large, big, wide, high.

3.2. In the past, Renault has two versions of their Scenic. The larger 7-seater version was called GRAND Scenic. 

3.2.1. This simply means that their GRAND model is larger, bigger, wider than the standard model. LOL Nothing to do with Grandeur.. LOL LOL

3.2.2. Citroen also calls their larger model GRAND C4 Picasso 7 Seater.

3.2.3. This is more of a French thing... 

3.3. Thus if we use French, don't you think that the development's title can be misleading?

4. This is because, nowadays most floor plans are much smaller. And cannot be compared to a home built in the 1970's to 1980's. LOL

5. If one is a "French man" can perhaps go claim that the advert and the actual development's name is totally misleading..

6. Luckily, other than our mother tongue... Singapore... is inclined towards British English... not French.. LOL

P.S. Next time, if you do invite a French man to your new home... do relate this interesting fact to them... 

Also, I used to own a Renault Grand Scenic that is why I am pretty familiar with this word.. LOL 

  • Author
  • Staff

839908641_vrf-outdoor-coolingtower.jpg.e6c63fc81ea83cf5b01310b73e36b372.jpgCase Study 6A: Mixed developments always have air-con cooling towers somewhere on the roof or in this case close to the common area(s) of the residential facilities.

Before signing on the dotted line, check with your respective Agent or in this case a CDL representative that the mall air-con cooling towers are not close-by or next to your potential unit. 

Often, if one's unit is beside such a cooling tower, one may hear the noise generated by the cooling fans x ? how many? 

In addition, when the development gets older... often.. older cooling tower fans may get noisier. 

In addition, the flow of air from the cooling towers are not exactly a breath of fresh air. If you kinda get my drift..  

Sengkang Central Residence and mall air-con cooling towers.png

P.S.  VRF stands for Variable refrigerant flow. Invented by Daikin https://en.wikipedia.org/wiki/Variable_refrigerant_flow

Case Study 6B: Humming sound can be heard from nearby units of the HDB estate which are beside or close to the door of the Tampine Care Home

 

B3391878-A14E-4CB3-865A-90E98F69B315.jpeg5D488BE3-9688-44BF-914F-64EFC7471678.jpeg
 

Turn on the volume to hear the humming... 

Apologies, my phone is just an ordinary phone... cannot capture the exact pitch of the humming quite well...

IMG_2018.MOV

C0256C05-438D-4904-93B2-C67390224589.jpeg2D5558D9-59CD-4805-9DA9-71096B214460.jpeg

IMG_2021.MOV

CA90301E-26D4-47D1-8EA1-8DBFBDCB0037.jpegF1EA88C5-DC87-42A3-B238-757C5F37C4BB.jpeg
 

Click on below for a longer recording of the humming...

IMG_2024.MOV

  • Author
  • Staff

830677420_mustfeedbacktodearministerhowtohere.png.8b94d8bbb9d1c0920984a945922dd557.pngInterlude: This is Common sense! Nothing to do with Feng Shui at all!

Potential buyer 1: "Oh Dear! My mum hates your shower area! Not elderly friendly. Furthermore, it is also going to be my retirement home... "

Potential buyer 2: "OMG! How am I going to bathe my babies and infants?"

Potential buyer 3: "Hmm.... my hubby needs to slim down in order to use it! How come like this one? Expect my hubby to go to the public toilets at ground floor is it?"

Potential buyer 4: "I see that my master bedroom with the master bedroom is already so crammed.. Queen sized only... "

1020419490_SengkangGrandresidenceshowerareasize.png.33b7ae23a1976d62241c49cb1d5938fb.png

Agent: "Every layout in this development is like that one.. lah!"

Agent: "Take it or leave it! Next!"

Agent: "Once I get my commission (except buying direct development staff) I can wash my hands ... it will be your business/problem. liao..."

Developer: "Call the architect firm.. and ask them why they so honest and stupid to place queen sized beds in all bedrooms! Why make it so obvious for Geomancy.net to comment on? YOU ARE FIRED!"

There is no logic why for this development, the concealed water pipe plumbing as shown in BLUE (see below) is so large? Thus "eat-into" the shower area.... Mr/Ms Architect.. please explain to us? Hiding a hidden safe, perhaps?

927095896_SengkangGrandresidenceshowerareasize1.png.220588d6ac8b5152b92fbdd4b9de15e6.png

P.S. Fact: To be fair = many of the developments launched this two years... have shower areas slightly larger than this only... 

1294770408_Punytoilet.thumb.png.5398135a58e37d0b4adc140afe47cd49.png

WITHOUT PREJUDICE:-

Alamark! Not only condos not just Grand ones... are getting smaller.. their toilets (to me visually) are too! I could be wrong, though! Caveat Emptor ...No bath-tub nevermind... but HUh?  LOL

Caricature: But it affects oursales and marketing!

=============== MORE =================

Case Study: Sample from another recent development:

Dairy Farm Residences Condo by United Engineers:-

1. (See Below in blue) The architect of this development took a clever approach by attaching two toilets (mirrored) so that there is only one concealed air-well for the pipings:-

491769435_pipesconcealedair-well.png.063a996ef2e1362d8186bc1a213de1c6.png

2. One will noticeably see that because of this, there is more room in both Master Bath and Bath 2. Also modern HDB Master bath/toilet are around or slightly bigger than this.

3. To the architect and developer: "Even if we don't stay there....give some consideration. As both toilets like that one! Even a modern HDB Master bath/toilet can do better than that! = at least for one of the toilets, lah! Do think of bathing babies + elderly... "

  • Author
  • Staff

Blame my husband. He is so bloody fat!

He is unable to scrub his body properly.... in our Sengkang Grand Residence (SGR) Master Toilet...

1249676198_didyoubathe.png.785795c0f88df2893e36051cb780f2be.png

My wife just left me.. and served me the divorce papers!

1893590848_didyoubathe1.png.078e56652e7cd5adae1d07eb091afcc6.png
In our previous home, my ex-wife used to come into the shower and scrub my back... then we were still in intimate terms... sadly not now...

Boss: "What is that smell? It smells so horrible! IT STINKS!"

25617047_whatisthatsmell1.png.029c1b965f927fcdc19c661cb1f9011e.png

 

SGR Resident cum Staff : "It's me Sir!"

Boss: "JON, You are FIRED!" Yes, I am none other than Donald Trump!

SGR Resident cum Staff : "Pity me Sir! I am into the mortgage trap! Cannot afford being retrenched. Already demoted from a larger home to this... and now! Can I kneel down to kow-tow you, Sir!"

  • Author
  • Staff

Case Study 7: Common Sense and a Three panel balcony sliding panels

1. With a three panel balcony panels, this means that the locks are always on the sidewalls

755809445_threepanelbalconyslidingpanels.thumb.png.fe87cf43471e37e3ffc39162566a7676.png

2. Take a look at "X". For example, furniture such as the sofa should not be placed too close to "X". If so, and if the sofa is tall, the lockset at "X" may not be accessable.

3. Fortunately, at "A" the lockset is futher away from the wall.

2042427398_fourpanelbalconyslidingpanels.png.0fee2b1f0977696a774c6a6b6986eb4b.png

4. Normall a four panel is preferred so that the locksets are at the middle of the room or living room. Thus, even if the sofa is placed closes to the balcony sliding panels, it may not obtruct the daily opening and closing of the sliding panels as shown by the red arrow.

  • Author
  • Staff

Case Study 8: Majority based on Common sense - Can I place plants at the PES or Balcony?

1381526678_WheretoplacetheplantsX.thumb.png.bca68e6ff3ef8b3eae04fb7d39caab7b.png

1. In the late 1990s, most balconies had a long drain running along the outer edge.

1.1. This design allowed rainwater and other water to flow directly into the drain.

1.2. It was a windfall for external decking contractors, as many new owners installed wooden platforms or decking on their balconies.

1.3. However, even a thin layer of standing water—about the thickness of a 20‑cent coin—can breed mosquitoes.

1.4. From around 2010 onwards, new units no longer included this type of drain.

1.5. This was bad news for decking suppliers and installers, and also slightly bad news for mosquito colonies.

2. In newly completed developments today, balconies typically have only one or more drainage points. Many developers install just one drainage point (shown in BLUE) for each PES/balcony.

2.1. Some developers provide two drainage points, especially for longer balconies.

2.3. It is advisable to place potted plants close to these drainage points.

2.4. This is because after watering the plants, excess water may overflow.

2.4.1. If plants are placed in the yellow area(s), the excess water will need to flow toward the drain.

2.4.2. As a result, the water may move across the length of the PES/balcony, creating slippery and dirty surfaces.

3. In addition, since Sengkang Grand Residences uses three‑panel sliding doors, placing potted plants at or near markings “Z” and “XX” may block the passageway to and from the PES/balcony.

1103707707_Wheretoplacetheplants.thumb.png.3f3aa5e9f2d7da5611e0e5db429e1b53.png

4. Based on Flying Star Feng Shui, there are situations where one should avoid using green or placing plants on the balcony to prevent activating the #3 “bad wood” energy, which is associated with quarrels, conflicts, and legal entanglements.

4.1. For example, as shown below, it is best to avoid having too many plants on the master bedroom balcony, indicated by the green markings.

1571911398_avoidtoomanyplants.png.bbc09a9722962e82f592831b72d5022e.png

Zoom in on the text at the master bedroom balcony:-

634679777_avoidtoomanyplants1.png.f062b47b621399b565e717b7606004ca.png

 

  • 3 weeks later...
  • Author
  • Staff

Case Study 9: Is it true that a degree in common sense is free? Okay... this is another common sense, thing: Good if the bathroom glass door swings outwards. But Why?

1052532499_bathroomglassdoorswingsoutpreferred.thumb.PNG.9cd821ed079d7d8dcdb9692708dd8de5.PNG

1. Got a snapshot of this from a Facebook posting.

2. I forgot to note the source. If anyone knows where this photo came from, please let me know. If you are the copyright owner or know the source, please drop me a note at support@geomancy.net if you would like the photo removed.

3. Otherwise, this is good information to know—especially if you have a weak family member or an elderly person at home. Do take precautions and consider having the glass door swing outwards.

4. In this development, the bathroom door illustration already shows it swinging outwards. I guess this is another sign that the toilet is too small for an inward‑swinging door… LOL.

4.1. Frankly, all bathroom doors can swing either in or out. Just make sure the vertical water‑seal strip is positioned correctly.

5. Source: ?? Image shows someone fainting and others unable to push the door open to help the person.

P.S. If you are the copyright owner or know the source; please drop me a note: support@geomancy.net if you want this photo to be removed. Alternative, I will be glad to place a Source and Credit for this photo.

  • 1 month later...
  • Author
  • Staff

Case Study: I thought we had solved the tiny Toilet/Bath issue? We take turns going to the Club-house toilet for our business?

Daughter: Dad, you forgot ... our puppy will grow large size by the time we need to move to Sengkang Grand Residences (SGR)! HOW TO BATHE HER??

Daughter: How to bathe such a big dog? She ain't intelligent to bathe herself!

Mum: Sorry girl, I think need to give up when we move to SGR!

Dad: Don't worry, lah! At 3am, I will quietly bring her to the pool for a free wash.

Daughter: Wow! Dad! You are so smart! You really think on your feet. Applaud. Applaud! Clap, clap, clap.

1935369980_HumanorManluckandSengkangGrandResidences.thumb.png.c752dda752c133b5bc4ca71152bda7d6.png

 

  • Author
  • Staff

Case Study: Make sure to get your Agent to obtain the block layout plan to identify where the common bin is located.

1. In this sample illustration (not originated from this development).

778843694_samplecommonbinwhere.png.631c72ed685e17dbfacfb871b4d45bc2.png

2. See how the developer had described it as: "For Internal Circulation Only".

3. Implying perhaps that if one is not smart enough to ask, only during key collection, then perhaps stack #02 will find out that the common bin is the closest to their unit.

4. Fortunately although it is just two utility rooms away from the door.

4.1. Nevertheless, cross-fingers that a future potential buyer might not try to avoid or perhaps low-ball the sale...

4.2. Worse, if the potential buyer brings along an overzealous Feng Shui Master.

4.3 It is the end of the story. Here it becomes: "Please look elsewhere!".

Note: This layout plan does not belong to this development. Shown here as merely a sample.

  • 1 year later...

Create an account or sign in to comment

Recently Browsing 0

  • No registered users viewing this page.
Sponsored Link
 
Background Picker

Account

Navigation

Search

Search

Configure browser push notifications

Chrome (Android)
  1. Tap the lock icon next to the address bar.
  2. Tap Permissions → Notifications.
  3. Adjust your preference.
Chrome (Desktop)
  1. Click the padlock icon in the address bar.
  2. Select Site settings.
  3. Find Notifications and adjust your preference.